Renovare baie
Baia în sine merită o atenție deosebită. Trebuie să fie reparat cu un grad ridicat de responsabilitate, deoarece este adesea supus fluctuațiilor de temperatură și umiditate. De aceea, este important să aveți o succesiune clară de activități, iar pentru a face acest lucru trebuie să planificați întregul proces încă de la început.
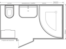
De ce să planificați renovarea
De fapt, etapa de planificare în sine determină baza pentru întreaga etapă de lucru ulterioară.
Scrierea unei secvențe competente și raționale de activități în timpul reparației vă permite nu numai să înțelegeți ce materiale de construcție vor fi necesare în acest proces, ci și să vă imaginați care va fi rezultatul final.
Întocmirea unor planuri vizuale sau a unor schițe vă va ajuta să decideți cum ar trebui să fie amplasate utilitățile și ce aparate vor fi necesare în timpul utilizării băii.
Desigur, trebuie să fiți pregătit pentru faptul că planificarea este un proces lung și nu întotdeauna ușor, chiar dacă ați ales să solicitați sfatul unui designer profesionist. Totuși, mai devreme sau mai târziu, toate elementele disparate se vor reuni. Sunteți apoi gata să treceți la următoarele domenii.
Cum să economisiți bani
Cunoașteți zicala "un zgârcit plătește de două ori", nu-i așa? Cumva, în goana după materiale mai ieftine, uităm că, de regulă, materialele de construcție de cea mai bună calitate, care vor permite reparației să dureze mai mult de un an, pur și simplu nu pot costa un ban. Un exemplu simplu: economisirea de bani chiar și pe amestecul pentru rosturile de chituire între dale contribuie la dezvoltarea ciupercilor, iar asta, credeți-mă, este plină de o altă reparație literalmente câțiva ani mai târziu.
Finisaj de perete pentru baie, cele mai bune și mai accesibile opțiuni au fost luate în considerare într-un alt articol.
Nu uitați că nu este recomandabil să folosiți materiale de construcție ieftine în baie, deoarece, din cauza fluctuațiilor de temperatură și a umidității ridicate, acestea vor dura considerabil mai puțin decât omologii lor de calitate superioară și, prin urmare, mai scumpe. Este posibil să se utilizeze adeziv de calitate scăzută pentru plăci în bucătărie, dar este absolut imposibil să se facă acest lucru în baie.
Dar, cu toate acestea, acest lucru nu înseamnă că nu există o singură modalitate de a economisi la achiziționarea de materiale de construcție. De exemplu, multe magazine de materiale de construcții oferă sisteme flexibile de reduceri, inclusiv economii. Nu ratați șansa de a profita de ele. Sau puteți face o parte din lucrări singuri, fără ajutorul specialiștilor.
În general, acest lucru se aplică tipurilor de muncă care nu necesită calificări speciale. Cu alte cuvinte, economisiți la preț, dacă este posibil, dar nu vă zgârciți la calitate.
Despre îndepărtarea băii citiți celălalt articol al nostru.
Procedura și principiul de demontare
S-ar părea că faza de dezmembrare nu necesită prea multe pregătiri. Mulți ar putea renunța și să creadă că dezmembrarea se poate face de unul singur, dar există și există anumite reguli pentru dezasamblare:
- Principiul de bază este de a dezmembra, nu de a sparge. Și nu este vorba despre conservarea materialelor de construcție vechi. Este vorba de siguranță. Gândește-te la asta: dacă distrugi tot ce te înconjoară, riști să te distrugi pe tine însuți;
- În cazul în care reparația este o lucrare majoră, urmată de înlocuirea tuturor suprafețelor, podeaua și tavanul trebuie să fie curățate imediat până la dale, de la pereți pentru a respinge gresie până la beton sau cărămidă. Nu poți face altfel în această afacere;
- În cazul în care există vopsea pe pereți, aceasta trebuie, de asemenea, îndepărtată. De ce? Răspunsul este simplu: vechiul strat de vopsea nu va ține adezivul;
- camera trebuie să fie complet curățată, inclusiv țevile vechi și cablurile electrice. Baia trebuie să fie pregătită pentru următoarele etape de lucru;
- podeaua merită probabil mai puțină atenție decât pereții, deoarece trebuie curățată cu cea mai mare grijă;
- Bineînțeles, se aplică și îndepărtarea robinetelor și a instalațiilor sanitare;
- pereții curățați trebuie tratați cu grund, iar tavanul trebuie vopsit cu material de umplutură.
Montarea liniilor de comunicare
De regulă, următoarea etapă de lucru este înlocuirea țevilor. Dacă planificați o renovare completă, începeți cu conducta ascendentă și apoi pot fi instalate noile conducte de alimentare.
În același timp, veți înlocui și cablajul. Fă-ți o listă cu locurile în care vei amplasa prizele și întrerupătoarele. Înlocuiți toate firele.
Țevile pot fi fie trase de-a lungul peretelui, fie ascunse în perete. A doua opțiune este, desigur, mai plăcută din punct de vedere estetic.
În cazul în care țevile sunt fabricate din metal, acestea au o durată de viață lungă și nu sunt predispuse la rugină. Este deja obișnuit ca în renovări să fie încorporate în perete. Tot ce trebuie să faceți este să faceți o adâncitură în perete pentru țevi, apoi să le chituiți și să le puneți deasupra.
Este recomandabil să ascundeți cablajul pentru a preveni umezeala, dar mai întâi trebuie să decideți ce fel de cabluri va avea. Principalul lucru aici este de a decide ce tip de cablare va fi folosit. Baia poate conține prize pentru uscătoare de păr, corpuri de iluminat etc. Utilizați un cablu cu izolație triplă. Acest lucru are mai mult sens în baie.
De asemenea, cablajul trebuie să fie instalat în caneluri pregatite. Rețineți că este posibil ca instalația electrică veche să nu poată rezista la sarcina diferitelor aparate consumatoare de energie. La urma urmei, încălzitoarele de apă, mașinile de spălat și uscătoarele de păr pot fi, de asemenea, conectate în baie. Merită să vă gândiți la asta.
Instalarea de noi instalații sanitare
În general, aparatele sanitare sunt instalate ca parte a etapei finale a renovării, după ce lucrările au fost finalizate. Acest lucru se face pentru a se asigura că instalațiile sanitare nu sunt deteriorate în timpul lucrărilor de renovare și finisare. În plus, veți putea accesa toate suprafețele fără probleme.
Chiuveta și cada de baie trebuie instalate cu mare atenție pentru a nu deteriora finisajul. Robinetul mixer poate fi montat în prealabil.
Etanșarea cavităților din pardoseală
Nu toată lumea înțelege ce înseamnă acest termen. Pentru a evita să intrăm în detalii, putem explica doar printr-un exemplu: dacă aveți o bună impermeabilizare în baie, până la 100 de litri de apă nu vor ajunge la vecinii de la etajul de dedesubt în cazul unei spargeri de țeavă sau a altor probleme.
Bineînțeles, trebuie să vă dați seama că, dacă o conductă ascendentă se sparge și are loc o inundație majoră, nu va fi de mare ajutor, dar vă va salva de o scurgere minoră. Vă va da timp să închideți apa.
În general, hidroizolarea este tratarea pardoselii și a părții inferioare a pereților cu mastic bituminos și izolație cauciucată, astfel încât aceste suprafețe să fie etanșate. În cel mai simplu caz, impermeabilizarea se poate face chiar și cu folie de celofan.
Aflați mai multe în articolul nostru: Hidroizolarea băii.
Netezirea suprafețelor și posibilitatea de a nu o face
Desigur, alinierea pereților este un lucru bun. Există unii "experți" în montarea plăcilor care lucrează cu un strat gros de adeziv. Dar este plină de consecințe:
- În primul rând, astfel de straturi de lipici vor pluti pur și simplu. Nu se poate vorbi de o aderență fiabilă a mortarului la suprafață;
- În al doilea rând, veți cheltui cu siguranță mai mulți bani doar pe lipici.
Cu toate acestea, ați putea, pur și simplu, să tapetați pereții cu gips-carton sau tencuială. Tencuiala este o alegere bună în cazul în care pereții sunt foarte denivelați. Și în cazul în care pereții sunt destul de uniforme, nu este nevoie de a pune mai multe straturi de material. În astfel de situații, poate fi suficientă chituirea.
Dacă intenționați să tencuiți pereții, atunci pardoseala ar trebui să fie făcută după aceea. Dacă nivelezi pereții cu plăci de ipsos, este mai bine să începi cu podeaua.
Finisare
După nivelarea suprafețelor și rezolvarea problemelor cu instalarea de utilități, puteți începe să terminați. Este util să știți că tavanul poate fi acoperit cu vopsea de emulsie: arată bine și nu se acumulează picături. De asemenea, este posibil să se instaleze panouri sau să se utilizeze un plafon suspendat. Această etapă a lucrării se face după restul decorării.
Dacă intenționați să acoperiți spațiul de sub cadă cu un paravan, puteți economisi pe gresie și faianță dacă nu îl puneți pe podea sub cadă. Este recomandabil să începeți cu pereții și apoi să treceți la podea. Rândul cel mai de jos al plăcilor de perete este așezat după ce podeaua este terminată. Vă rugăm să rețineți că, după ce au fost așezate, plăcile trebuie lăsate să se odihnească timp de câteva zile. Numai după aceea se poate face chituirea rosturilor.
Ușile ar trebui să fie instalate după ce alte lucrări de finisare au fost finalizate, ca și în cazul tavanului. Alegeți o ușă cu un finisaj bun, de exemplu, laminată sau lăcuită. Dar, pentru moment, ușile din sticlă sunt o soluție bună, deoarece tolerează umiditatea. Și apoi, spre final, rămân finisajele: instalarea corpurilor de iluminat, a unei oglinzi și a altor accesorii.
În general, renovarea băii nu este atât de descurajantă pe cât ar putea părea la prima vedere. Principalul lucru este să înțelegeți de unde să începeți, deoarece planificarea este baza succesului.

Așa este, ar trebui să începeți cu aspectul. Și ia în considerare culoarele pentru utilizarea gratuită a instalațiilor sanitare.