Construirea unui Hammam
Construcția unui hamam atrage multe persoane. Dar să știi cum să construiești un hammam cu propriile mâini acasă sau la țară este o necesitate - altfel riscurile grave sunt inevitabile. Proiectele sunt cu siguranță importante, dar dimensiunile și caracteristicile de instalare sunt la fel de importante.
Cerințele camerei
O baie turcească, sau, așa cum nu este corect numit, un "hammam", se dovedește a fi o completare excelentă pentru o casă privată. Dar încercarea de a o construi pe baza acelorași principii ca o baie sau o saună obișnuită duce inevitabil la eșec. Primul lucru pe care trebuie să-l faceți atunci când instalați o baie turcească acasă este să alegeți locația potrivită. Trebuie să căutați un spațiu pentru care o creștere a grosimii peretelui de 70-150 mm nu este critică. În caz contrar, nu este nimic de vorbit despre finisaj de calitate și de izolare împotriva pierderilor de căldură, infiltrații de apă.
Schema clasică presupune împărțirea în 3 camere adiacente:
- pentru garderobă și duș;
- o baie de aburi;
- O cameră de relaxare după procedura de îmbăiere.
În plus, veți avea nevoie de 3 bazine de înot cu apă caldă, respectiv neutră și rece. Nu este posibil să se îndeplinească toate aceste condiții într-un apartament, altfel ar costa sume absolut amețitoare. Din acest motiv, este adesea necesar să se ajungă la un compromis prin construirea unei imitații de hammam cu una sau două camere.
Piscinele sunt, bineînțeles, primele care trebuie uitate; una dintre camere este destinată relaxării, iar cealaltă pentru camera de aburi. De asemenea, merită să ne amintim că, fără materiale de finisare costisitoare și un tavan semicircular, nici măcar o imitație de hammam nu ar fi fezabilă. Zona minimă a camerei, la care merită să înceapă totul - de la 8 metri pătrați.
Trebuie să existe o masă de masaj în cameră. Dimensiunea și forma sa trebuie să fie alese în funcție de dimensiunea camerei. Înălțimea minimă a tavanului este de 2,5 metri. Atât aceasta, cât și forma domului nu au fost alese la întâmplare. Este combinația perfectă pentru cele mai bune condiții de spălare.
Umiditatea enormă, care este tipică pentru un hammam, necesită o izolare termică și de abur a tuturor suprafețelor. Podeaua este făcută strict înclinată spre scurgere. Sistemul de drenaj trebuie să fie echipat cu o supapă de închidere.
În mod normal, este nevoie de 20 de minute pentru a ventila o baie turcească. Luați în considerare rezistența termică a cablurilor și a corpurilor de iluminat, toate acestea trebuind să fie luate în considerare în prealabil în proiectare.
Planificarea și amenajarea camerelor
Nu este ușor de pregătit desene pentru hammam cu dimensiuni exacte. În mod ideal, lucrările ar trebui lăsate în seama unor constructori profesioniști care au studiat organizarea hammamului. Merită să subliniem imediat că acest proiect, spre deosebire de proiectele de cele mai multe case, nu este deloc indiferentă la materialele de construcție utilizate.
Atunci când construiți un hammam într-o cabană din lemn, există o mulțime de dificultăți: va trebui să consolidați nivelul obișnuit de impermeabilizare și nu este un fapt că ajută. Din cauza costurilor ridicate, astfel de clădiri tind, de obicei, să fie cât mai mici posibil.
O baie de aburi turcească de mari dimensiuni este costisitoare atât pentru construcție, cât și pentru întreținere. Acesta va trebui să aibă generatoare de abur puternice. Acestea consumă o cantitate mare de energie. În mod ideal, planul unei băi turcești care urmează să fie construită acasă ar trebui să fie de cel puțin 5 m2 și nu mai mult de 9 m2.
Deși se preferă un plafon clasic în formă de cupolă, pot fi luate în considerare și configurații mai complexe:
- emisferic;
- plic;
- seif simplu;
- boltă cu un capăt ascuțit;
- bolți în formă de cruce.
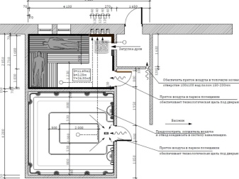
Atunci când înființați un hammam, veți avea nevoie de o cameră tehnică separată, indiferent dacă este la țară sau în altă parte. Dimensiunea camerei trebuie să fie cuprinsă între 1,5 și 2 metri pătrați.
În mod ideal, generatorul de aburi trebuie să fie instalat direct lângă camera de aburi. Cu cât lungimea conductei de abur este mai mică, cu atât pierderile de căldură sunt mai mici și eficiența finală este mai mare. Parametrii specifici depind de locul în care va fi amplasată clădirea. După asta:
- Sistemul de încălzire este proiectat;
- să pregătească planuri pentru canalizare și alimentare cu apă;
- desenul plafonului și al alocării spațiului interior;
- așezarea mobilei;
- și abia în cele din urmă decideți asupra materialelor de construcție.
Un pachet de documente de calitate include:
- o descriere tehnică de bază;
- o notă explicativă;
- planuri generale și de măsurare;
- planuri de ventilație și de tavan, echipamente instalate;
- configurația scaunelor și a pozițiilor înclinate;
- diagrame electrice de cablare;
- desene de conducte de apă, canalizare și încălzire;
- lista de cantități;
- justificarea alegerii materialelor pentru finisare și estimarea cantității acestora;
- modele vizuale;
- estimări de costuri.
Într-o cameră mică sunt instalate o bancă, un generator de aburi, un salon anatomic și un bol (cunoscut sub numele de kurna). În cazul în care zona este mai mare, în centru se plasează o masă de masaj. Un hammam adevărat este construit într-o unitate separată, eventual o anexă.
Această soluție va necesita cheltuieli considerabile și nu vă puteți aștepta ca ea să fie construită rapid. Odată ce a fost elaborat planul, poate fi pregătită imediat o listă de materiale.
Pregătirea materialelor
Pentru construirea băii turcești vor fi necesare următoarele materiale:
- piatră naturală;
- Mozaic din sticlă sau ceramică;
- Gresie porțelanată (aceste patru materiale sunt interschimbabile);
- spumă de polistiren sau polistiren expandat pentru izolare
- tipuri de impermeabilizare de înaltă calitate;
- adezivi pentru plăci ceramice;
- chitul;
- grunduri de perete;
- șuruburi autofiletante cu șaibe pentru fixarea întărită a panourilor de izolație.
În cazul pereților din lemn, va fi necesară o ramă suplimentară din beton. Deasupra se așează ziduri auxiliare din cărămidă sau blocuri. Adesea, este necesar să se consolideze fundația din cauza unor astfel de adăugiri.
O altă opțiune este de a pregăti cadrul în același mod ca și în cazul plăcilor de gips-carton, numai că în locul acestora se folosește Panouri Teplofom sau Deluxe cu ranforsare pe o singură față. Pentru fixare aveți nevoie de șuruburi și șaibe.
Tehnologie și faze de construcție
Fundația
Pentru a efectua corect lucrarea cu propriile mâini, trebuie să începeți cu instalarea conductei de drenaj. Țeava trebuie să fie deja la locul ei în momentul în care se formează fundația în care urmează să fie amplasat canalul de scurgere. Particularitățile de execuție a fundației sunt determinate de:
- climatul;
- particularitățile solului;
- regimul apelor din zonă;
- nivelul de activitate seismică.
În zonele problematice și în zonele nou comandate, un studiu geologic este esențial pentru a construi în mod corespunzător fundația unei băi turcești și alte părți ale acesteia. Da, crește prețul proiectului în plus, dar, în lipsa acestuia, uneori costurile nu fac decât să crească. Aflorimentele de stâncă sunt cele mai ușoare locuri pentru a construi - acestea pot înlocui fundațiile de la sine. Cu toate acestea, acest lucru necesită, de asemenea, calcularea exactă a sarcinilor. La determinarea acestora, trebuie introduși factori de siguranță de cel puțin 1,5 - acest lucru va elimina impactul diferitelor erori.
Este mai ușor și mai simplu să turnați o bandă de beton armat. Acesta trebuie să fie căptușit cu folie de polietilenă. Pentru această lucrare va fi nevoie de piatră spartă din fracțiuni atent selecționate. Important: pentru construcții este mai bine să comandați beton din fabrică, nu să îl amestecați singur. Trebuie acordată o foarte mare atenție organizării cofrajului; alegerea unei versiuni detașabile sau nedetașabile a acestuia este determinată de resursele financiare ale constructorilor.
Atunci când fundația este curată și gata, se așează subpodea. Totul începe cu așezarea grinzilor. Apoi se așează pe ele două niveluri de foi LSU de 14 mm. În loc de grinzi, puteți pur și simplu să nivelați terenul, să îl umpleți și să presați nisipul.
Nu uitați să protejați podeaua împotriva daunelor provocate de vânt și de apă și să o izolați împotriva umezelii.
Pereți
Pentru structurile verticale ale hammamului se pot folosi următoarele materiale:
- Piatră naturală pentru construcții;
- beton celular;
- Beton expandat;
- Cărămizi de calitate.
Toate aceste opțiuni sunt așezate aproximativ în același mod într-o baie turcească și în orice altă structură. Există o diferență mai mare între așezare de materiale specifice. În orice caz, este recomandabil să alegeți blocuri cu rezistență sporită la umiditate. Dimensiunile structurilor nu joacă un rol special și pot fi alese la propria discreție. Metoda de îmbinare a pieselor și schema de dispunere sunt, de obicei, specificate de producătorul materialului de construcție și nu are rost să încercați să inventați ceva propriu.
Cel mai adesea se utilizează mortar de ciment și nisip. Nu puteți face o fereastră în camera de aburi. Dar este posibil să se facă o fereastră în camera de odihnă. O altă fereastră - una mai mică - va fi amplasată în camera tehnică. În cele trei rânduri de blocuri se plasează o grilă metalică din oțel inoxidabil cu o plasă mică. În caz contrar, nu se va asigura o rezistență corespunzătoare.
Izolație și impermeabilizare
Indiferent cât de bine încercați să faceți pereții în sine, nu puteți face fără a face o bună protecție termică. În băile turcești, izolația termică este preponderent montată din exterior. În interior, chiar și cu o protecție sporită împotriva apei, aceasta eșuează adesea. Pe lângă spuma de plastic, se poate folosi și vată minerală pentru a reține căldura. Straturile acestor izolatori ar trebui să fie de 10-15% pentru a atenua efectele deteriorării treptate și pierderea calității.
Din cauza nivelului ridicat de umiditate, cel mai bine este să montați izolația termică pe o armătură din material plastic de bună calitate. De asemenea, trebuie aplicat un grund rezistent la umezeală. Materialul rulat este utilizat pentru impermeabilizare. Atât tipurile vechi, cât și cele la modă sunt nedorite - este mai bine să folosiți un material de impermeabilizare testat în timp, dar nu depășit. Abia după aceea se poate aplica adezivul pentru instalarea garniturii finale.
Încălzire
Atunci când hammamul este construit, este timpul să instalați dispozitive de încălzire. Încălzirea poate fi asigurată de un sistem de apă sau electric. Apa trebuie să fie furnizată prin conducte de plastic cu rezistență termică ridicată. Acestea sunt conectate la un cazan separat. Astfel de conducte trebuie să fie încorporate chiar și în masa de masaj și în interiorul băncilor de spălare. Nu este permisă încercarea de conectare la sistemul general de încălzire al unei case de țară. Această regulă este respectată în mod clar de către toți constructorii profesioniști, chiar dacă există o rezervă suficientă de ieșire de căldură. Un sistem de încălzire electric este mai simplu de instalat și mai ușor de utilizat.
Acesta se bazează pe un cablu termorezistent din același sistem care este utilizat de obicei pentru încălzirea prin pardoseală. Este necesar să se înfășoare toate suprafețele cu acest tip de cablu, de aceea sunt necesare destul de multe. Conductele de apă sunt așezate într-o șapă întărită din ciment și nisip. Acesta acționează ca un "intermediar" pentru transferul de căldură. Sistemul de conducte se supune reglementărilor generale privind instalațiile sanitare. Un calcul termotehnic înseamnă că toate suprafețele scaunelor trebuie să fie încălzite la 30 de grade.
Nu are rost să încălziți tavanul - acest lucru rezultă direct din fizica elementară.
Finisare
Este foarte posibil să vă proiectați singur o saună de tip turcesc:
- plăci ceramice tradiționale;
- smalt;
- plăci de marmură.
Marmura pură este cea mai autentică. Păstrează căldura mai bine decât alte variante și slăbește trepidațiile de temperatură, ceea ce este valoros pentru hammam. Plăcile de marmură de înaltă calitate durează mult timp. Cu toate acestea, trebuie, de asemenea, să investiți mult în el. Smalt folosit în principal pentru decorațiuni interioare, acest mozaic de sticlă "se așează" pe lipici.
Din motive de economie, mulți oameni folosesc o simplă placă ceramică. Cu alegerea potrivită, pare foarte interesant. În orice caz, compoziția trebuie să fie făcută în motive orientale. Diodele luminoase colorate pot fi recomandate ca supliment; instalațiile sanitare trebuie să fie din cupru sau alamă. Dar hammamul poate fi decorat și într-un mod modern.
Cu toate acestea, Cel mai bine este să alegeți în continuare stilul turcesc încercat și testat. Ornamentele și motivele potrivite vor contribui la accentuarea culorii. Modelele geometrice sunt cele mai frecvente.
Găsirea modelelor este ușoară - trebuie doar să căutați materiale despre cultura tradițională turcă. Scenele de inspirație orientală sunt, de asemenea, adesea o completare binevenită a decorului; designul ar trebui să fie relaxant din punct de vedere vizual și o sursă de tensiune psihologică.
O opțiune foarte elegantă este combinația alb-roșu-albastru. Aceste culori pot fi combinate în diferite proporții. Dacă scopul este de a pune accentul pe lux și bogăție, sunt potrivite incluziunile galbene sau aurii. Atmosferele chic pot fi create și prin adăugarea de forme geometrice verzi și maro. La formarea conceptului de design, se ține cont de simetrie pe cât posibil.
În spațiile mari, culorile tradiționale pot fi accentuate prin utilizarea:
- cochilii;
- fântâni;
- coloane de piatră;
- Bănci elegante.
Iluminat
Un hammam nu este o clădire a cărei construcție și decorare poate fi un fleac. Corpurile de iluminat trebuie să creeze un efect relaxant și armonios. După cum este deja clar, acestea trebuie să fie absolut rezistente la căldură intensă, la umiditate de 100% și la expunerea la vapori saturați. Nu este necesară o iluminare slabă - dacă doriți, puteți accepta și o lumină colorată. Cu toate acestea, selectați opțiunile electrice și de cablare cu o rezistență electrică nominală de cel puțin IP65 și un curent de funcționare de 24 V. Lămpile cu halogen sunt lăudate pentru economia lor. Dar, într-o baie turcească, este, de asemenea, dificil să se facă fără lămpi cromoterapeutice.
Uneori, nișele sunt iluminate cu aplice și LED-uri. Puteți crea o ambianță autentică cu o torță sau cu un candelabru de cupru de modă veche. Un cer înstelat poate completa efectul de iluminare. Ori de câte ori este posibil, ar trebui să cumpărați corpuri de iluminat de la mărci de top; nu este dificil să le identificați - acestea sunt mărcile care domină orice catalog. Un candelabru și un corp de iluminat luminos sunt indispensabile pentru hol. O lumină slabă, cu un abajur închis, este ideală pentru salon. Atenție: Dacă este posibil, este mai bine să folosiți un sistem de iluminat de 12 volți în loc de 24 de volți.
Desigur, totul trebuie să fie conectat într-un sistem de cablu separat, cu întrerupătoare cu siguranțe separate și descărcător de scântei.
Mobilier și decorațiuni
Kurna ideală este confecționată din EPPB. Este mult mai ușoară decât piatra și ceramica, dar este mai ieftină și mai rezistentă. Canapelele din piatră sunt de obicei folosite ca fotolii de relaxare. Geometria și dimensiunea lor au fost alese strict în funcție de gusturile lor. Cu cât canapeaua este mai ușoară, cu atât mai bine. Din moment ce marmura de calitate slabă într-un an va începe să se oxideze, este mai bine să alegeți paturile pe bază de panouri de polistiren, acoperite cu mozaic.
Restul mobilierului este realizat în principal prin atașarea plăcilor de gips-carton la cadrul de aluminiu. După ce suprafața a fost pregătită (este tratată cu chit și nivelată), se poate aplica finisajul final. Aceste structuri sunt destul de grele și dificil de mutat singure. De aceea, mobilierul din spumă de polistiren extrudat devine din ce în ce mai popular. De asemenea, este mult mai durabilă.
Pentru decor, cel mai bun sfat este să folosiți:
- Ferestre în stil oriental;
- adâncituri grațioase;
- panouri;
- gliptice.
Următorul videoclip vă arată cum se construiește o baie turcească.
