Realizarea unui font de botez cu propriile mâini
Relaxarea în baie este atât plăcută, cât și utilă. Multora le place să facă o baie de aburi și să se scufunde în fontul baptismal. Este posibil să o faceți și să o instalați singur nu numai în incinta saunei, ci și în exterior. Despre acest lucru vom vorbi mai jos.
Alegerea materialului
Pentru a crea un font baptismal de casă pe proprietatea din apropierea casei sau în mediul rural, primul lucru pe care trebuie să-l faceți este să alegeți materialele potrivite. Să vedem din ce sunt făcute astfel de construcții în majoritatea cazurilor și ce proprietăți au.
Lemn
Fonturile din lemn făcute în casă din lemn și scânduri sunt foarte răspândite. Construcțiile cele mai fiabile și de cea mai bună calitate sunt obținute din cedru, stejar sau larice. Un preț mai mic ar fi un font făcut din pin. Partea superioară a materialului natural este în mod necesar tratată cu soluții speciale de protecție sau cu ceară.
Datorită utilizării unor astfel de tratamente, baza în cauză nu este afectată de contactul cu apa.
Să aflăm mai multe despre diferitele tipuri de lemn, care sunt cel mai des folosite în asamblarea fonturilor.
- Cedru. Acest lemn se caracterizează prin eliberarea de uleiuri esențiale, care au calități curative deosebite. Apa dintr-un rezervor de cedru de calitate va fi plină de fitoncide și va fi capabilă să curețe delicat pielea umană.
- Larch. Un material natural excelent. Chiar și în condiții de saună care nu sunt cele mai ușoare, acest lemn nu suferă de efectele temperaturilor ridicate sau ale umidității ridicate. Lemnul este robust, de lungă durată și nu putrezește.
- Stejar. Un lemn robust și de lungă durată. În contact cu apa, stejarul eliberează așa-numitele taninuri care pot avea un efect antiinflamator.
Dulapurile de apă din lemn nu sunt bune doar pentru mediu, ci și pentru aspectul lor luxos. Materialele naturale pot avea un efect benefic asupra sănătății umane. Adesea, bolurile din lemn masiv includ o inserție din PVC (membrană din PVC).
Pentru a evita ca un astfel de bazin să se usuce, va trebui să fie umplut cu apă cel puțin o dată pe săptămână. Tigaia trebuie apoi acoperită cu un capac, o punte de lemn sau o folie de aluminiu. De asemenea, va trebui să vă asigurați că partea inferioară a structurii este ventilată corespunzător.
În vânzare puteți găsi fonturi din lemn pre-făcute, prețul variază de la 22 la 80 de mii de ruble (și uneori mai mult). Faceți un astfel de rezervor pe cont propriu va fi de multe ori mai ieftin.
Oțel inoxidabil sau fontă
Rezervoarele din fontă sau din oțel sunt puse în aplicare ca o cuvă. Bazinul este fixat atât pe groapă, cât și pe un trepied, cu picioare de susținere. Nu este neobișnuit să se fixeze bazinul pe lanțuri grele sau chiar deasupra unui aragaz cu lemne în saună.
Fundul acestor fonturi este de obicei acoperit cu pietre sau cu plăci de lemn special pregătite.
Ar trebui să se țină cont de faptul că instalarea unui font din font de fontă poate fi foarte dificilă și consumatoare de timp. Acest lucru se datorează greutății mari a acestor containere. Structurile sudate se dovedesc a fi mai ușoare, dar mulți utilizatori le consideră mai puțin spectaculoase și atractive la exterior.
Fonturile prefabricate din fontă și oțel sunt destul de scumpe. O structură sudată este singura modalitate de a o face cu propriile mâini și numai dacă știți cum să lucrați cu o mașină de sudură.
Beton
Betonul este una dintre structurile din fontă cele mai rezistente la uzură și de lungă durată. Modelele din beton au aspectul unor piscine compacte. Acestea pot fi instalate exclusiv într-o groapă pregătită în prealabil. În exterior, părțile laterale ale containerului sunt vopsite cu o vopsea specială de cauciuc sau căptușite cu plăci ceramice, mozaic, concepute pentru instalarea în piscină.
Pentru a instala un font baptismal din beton în baie, trebuie să faceți un design detaliat și să alegeți locația ideală pentru instalarea unui astfel de vas.
De asemenea, este important să se ia în considerare poziția sistemelor de alimentare cu apă și de canalizare.
Polipropilenă
În multe băi veți găsi rezervoare din polipropilenă. Astfel de căzi sunt disponibile în două versiuni: cu pereți de 5 și 8 mm grosime. Costul unei băi de polipropilenă este relativ ieftin. Bolul poate fi întărit și mai mult prin rigidizarea nervurilor sau prin utilizarea unui cadru metalic.
Eurocube .
Din Eurocube se pot crea instanțe deloc rele. Această opțiune este un recipient din plastic cu anumite dimensiuni. Adesea, eurocubul este utilizat în industrie și pentru transportul de mărfuri în vrac sau lichide. Adesea, aceste rezervoare au o ladă exterioară din oțel, ceea ce le face cât mai robuste și mai rezistente posibil. În această ladă este așezat recipientul de plastic în formă de cub.
Opțiuni de umplere
Puteți construi cu propriile mâini o piscină de înaltă calitate și estetică. Trebuie să cumpărați mai întâi materialul potrivit și apoi să începeți.
Lemn
Înainte de a începe, este important să calculați spațiul disponibil în saună sau în grădină (în funcție de locul în care doriți să instalați rezervorul). Va trebui să echipați bazinul cu o trapă de scurgere specială cu un deversor. Apoi va trebui să o conectați la o rețea de alimentare cu apă, astfel încât să nu mai trebuiască să transportați apă manual.
Alegeți o zonă pentru structura din lemn în care liniile de alimentare fiabile să fie cât mai aproape posibil. Dacă se dorește, rezervorul poate fi dotat cu un jacuzzi sau cu o sobă cu lemne cu combustibil solid (ceea ce face din el un font baptismal încălzit perfect). În cazul unui vas încălzit, trebuie să se pregătească în prealabil cabluri electrice și un coș de fum.
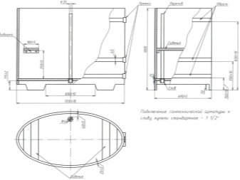
Toate fonturile din lemn sunt realizate din componente de panouri cu grosimea de 35 mm până la 50 mm. Există două modalități de fixare a panourilor unul de celălalt.
- Lipire adezivă. Capetele pieselor care urmează să fie îmbinate sunt fixate cu ajutorul unui mortar adeziv rezistent la căldură sau la umiditate. Construcția rezultată se strânge cu ajutorul a 3-4 cleme de fier. Dacă printre utilizatori se află persoane astmatice sau alergice, este mai bine să nu se construiască un astfel de vas.
- Canelură de navă. Elementele sunt fixate unele de altele pe baza principiului de zăbrele. Astfel, se obține o suprafață perfect plană, care nu va avea goluri sau îmbinări vizibile, chiar dacă materialul este puțin slăbit.
Să vedem cum se face un model din lemn. Pentru a face acest lucru, trebuie să vă pregătiți:
- Plăci cu limbă și canelură cu o grosime de 40 mm;
- Plăci de 150 x 40 mm;
- cleme metalice mari;
- sifon de scurgere și țeavă de polipropilenă;
- lemn de 40 x 40 mm (pentru picioare);
- Adeziv PVA;
- Cuie și șuruburi pentru a ține cercurile în poziție.
Să trecem în revistă etapele de fabricație.
- Mai întâi faceți piesa de jos din plăci cu limbă și canelură. Acestea sunt dispuse într-un rând, îmbinările de limbă și canelură sunt unse cu adeziv și structura de panouri a structurii dreptunghiulare este fixată împreună. Clemele sunt folosite pentru a fixa plăcile și pentru a le lăsa pe loc până la uscare.
- Pregătiți plăcile pentru baza de perete a bolului. Cu ajutorul unei freze, pregătiți o canelură semicirculară pe o parte a suprafețelor laterale și o canelură similară pe partea opusă. Se taie caneluri transversale în jumătatea inferioară a plăcilor cu o lățime de 42 mm și o adâncime de 20 mm.
- Formați placa de bază din partea plăcii. Desenați un oval pe el cu un creion și tăiați excesul cu un puzzle. Înșurubați 2 șuruburi pentru lemn de jos, lăsând un mic spațiu între ele pentru a forma un suport.
- Faceți o gaură în piesa de jos pentru scurgere. În partea de jos petrece o țeavă, conectați-l la un sifon, înșurubat la placi cu șuruburi. Zona în care sifonul se apropie de lemn este tratată cu un material de etanșare.
- În continuare, construiți bazele de perete ale fontului. Plăcile trebuie să fie stivuite în jurul fundului, cu elementele proeminente în fante.
- După ce toate lucrările sunt finalizate, pereții vor trebui să fie strânși cu ajutorul unor cleme. Marginile sunt bătute în cuie pe scânduri cu cuie mici și strânse cu un bolț. Instalați cercul în partea de jos, în mijloc și în partea de sus în acest fel.
- Șlefuiți toate elementele fontului cu șmirghel. După ce rezervorul finit a fost instalat, conectați conducta de sifon la conducta de drenaj sau conduceți-o la orificiul de scurgere. În plus, puteți instala bănci de sine stătătoare în interiorul fonturilor.
Iată cum se face o bancă din lemn, în formă de butoi, pentru fonturi.
- Mai întâi trebuie să marcați suportul. Folosiți un creion pentru a marca partea inferioară a rezervorului. În cazul în care dimensiunea rezervorului o permite, băncile pot fi amplasate de-a lungul pereților. În containerele mai mici se pot amplasa 2 până la 4 bănci. Pentru a le realiza, folosiți un lemn de 40x40 mm și o lungime de 20 cm.
- Folosiți șuruburi autofiletante pentru a fixa picioarele direct pe pereții fontului. Capetele vor trebui să fie înfipte doar câțiva milimetri în plăci.
- În funcție de configurația băncii, marginile plăcilor vor trebui să fie tăiate la 45 de grade sau rotunjite cu ajutorul unui fierăstrău electric. După terminarea lucrărilor de prelucrare a marginilor de construcție, scândurile sunt îmbinate cu lamele în perechi, iar apoi sunt șlefuite bine.
- Scaunele sunt așezate pe bază, piesele de capăt adiacente sunt îmbinate și înșurubate. Capetele trebuie să fie înfipte în lemn. Apoi, golurile sunt sigilate cu un material special de umplere a lemnului rezistent la apă.
Multe fonturi prefabricate, vândute în magazine, băncile sunt inițial prezente și proprietarul nu trebuie să le instaleze.
Beton
Pentru a vă face propriul font de botez din beton, este recomandabil să aveți un mixer de beton. Există mai multe etape implicate în procesul de construcție a unui astfel de rezervor.
- În primul rând, se sapă o groapă de excavare. Adâncimea gropii trebuie să fie de 1,5 până la 2 metri.
- Apoi, pe pereții și pe fundul gropii se pune o plasă de sârmă. În primul rând, plasa de sârmă este așezată în jos, menținând un decalaj de 5-7 cm față de fund. După aceea, structurile de armare sunt plasate pe pereții rezervorului.
- Următorul pas este instalarea cofrajului pentru pereții interiori și exteriori ai fontului și turnarea mortarului de beton. Cofrajul în sine poate fi construit din OSB sau placaj. Aceste materiale trebuie să fie consolidate suplimentar cu lemn.
- Cofrajul ar trebui să fie așezat mai sus decât plasa de armare. Pereții cofrajului sunt umpluți cu beton gata preparat 1 dată, după care se toarnă fundul.
- După ce cofrajul este decofrat, puteți începe finisarea rezervorului. Este necesar să se tencuiască pereții și partea de jos a rezervorului cu un strat de impermeabilizare.
Recomandări
Nu este dificil să construiți singur un font. Tot ceea ce este necesar este sârguința, răbdarea și consecvența. Dacă este pentru prima dată, este recomandabil să aveți la îndemână instrucțiunile detaliate pas cu pas și să urmați câteva sfaturi utile.
- Atunci când alegeți o formă potrivită pentru viitoarele fonturi improvizate, nu vă opriți doar la modele rotunde sau ovale. Groapa poate fi pătrată, dreptunghiulară sau chiar unghiulară. Așadar, optați pentru unul care să fie cât mai confortabil și care să nu pară greoi.
- Pentru a construi un font de botez, luați în considerare faptul că dimensiunea sa depinde de numărul de persoane care îl vor folosi în același timp. Bazinul poate fi completat cu diverse dotări opționale, cum ar fi bănci, o scară, un filtru de apă special, un mecanism de încălzire și chiar un hidromasaj.
- Atunci când se construiește o piscină din beton de bună calitate, se recomandă să se finiseze pereții cu un material care are proprietăți rezistente la apă. Aceasta poate fi o placă ceramică cu un design adecvat sau o folie de acoperire. Pentru ca coborârea în bazin să fie cât mai confortabilă, se recomandă să se folosească scări de fier solide sau trepte monolitice până la marginea bazinului pentru coborâre și scufundare.
- Înainte de a începe lucrările pregătitoare, este recomandabil ca în toate cazurile să se facă desene detaliate ale viitoarei construcții. Acestea ar trebui să indice toate dimensiunile și caracteristicile rezervorului planificat. Având la îndemână o schiță a bazinului, va fi mult mai ușor să îl construiți corect.
- Atunci când pregătiți un șanț pentru instalarea ulterioară a unui bazin de beton, îl puteți săpa făcând o pantă ușoară spre groapa de gunoi și să introduceți o conductă în ea. Mulți utilizatori se simt mai confortabil cu acest tip de sistem de drenaj.
- Când se face un font de beton, mortarul se toarnă de jos. Aici se recomandă să se recurgă la o prelucrare suplimentară a mortarului cu ajutorul unui vibrator special de imersie. Nu ar trebui să neglijați acest pas, deoarece crește capacitatea de respingere a betonului de a rezista la apă.
- Mulți meseriași consideră că realizarea unui font de mortar de beton este prea complicată și necesită mult timp. În acest caz, inelele din beton armat pot fi o soluție. Le puteți utiliza pentru a crea un font. Aceste materiale sunt la fel de fiabile și de lungă durată.
- Dacă nu aveți chef să construiți un font de botez propriu-zis, puteți opta pentru o opțiune mai simplă și să aveți o găleată mare de duș comun. Acest dispozitiv simplu este așezat pe peretele din baie, iar de găleată este atașată o frânghie. De îndată ce utilizatorul trage de el, cupa sau găleata fixă se răstoarnă și apa se varsă pe persoană.
- Căzile de baie mai adânci arată mult mai spectaculos. Pentru a le face și mai originale, puteți instala un sistem de iluminat. Astfel de construcții nu sunt niciodată neglijate. Cu toate acestea, este aproape imposibil să le mutați dintr-un loc în altul.
- Dacă vă decideți să construiți un font de lemn bun, este foarte important să acordați atenția cuvenită calității materialelor pe care le alegeți. Asigurați-vă că lemnul nu prezintă semne de putregai, atacuri de insecte care se hrănesc în mod natural, mucegai sau ciuperci. De asemenea, lemnul nu trebuie să prezinte urme de lovituri sau crăpături - astfel de piese nu pot fi utilizate pentru construcția rezervorului.
- Cel mai izbitor și atractiv finisaj pentru un bazin din beton este reprezentat de plăcile de mozaic. Dacă doriți să vă decorați sauna sau grădina (în cazul unui rezervor în aer liber) cu un rezervor elegant și cu aspect scump, este recomandabil să folosiți mozaicuri. Cu toate acestea, un astfel de material de finisare de înaltă calitate poate să nu aibă cea mai democratică etichetă de preț.
Fonturile de înaltă calitate realizate de unul singur din lemn natural, beton sau materiale improvizate adecvate necesită rareori mult timp liber. Trebuie să aveți la îndemână toate uneltele și instrucțiunile pentru construcția piscinei.
Dacă nu știți cum să construiți un font baptismal sau dacă aveți îndoieli cu privire la eficiența procesului de construcție, ar trebui să luați în considerare obținerea unei soluții gata făcute sau angajarea unui profesionist care să construiască un vas fiabil și de lungă durată pentru dumneavoastră.
Vedeți următorul videoclip pentru mai multe informații despre cum să construiți o cadă de baie cu propriile mâini.
