6x6木屋:完整项目和布局
今天,在很多地方都可以找到美丽而高质量的木屋。有许多不同的尺寸和布局。 看看下面一些现成的6x6米木屋。
特点
6x6的澡堂的尺寸被认为是最佳的。 所有必要的房间和区域都可以很容易地在这样的区域内得到满足。在一个6x6的澡堂里,业主将能够放置所有计划中的家具,安装加热设备。在这样的建筑里,8-10个人可以休息。
原木屋是生态清洁的。 即使在高温的情况下,木材也不会散发出任何有害的烟雾或化学气味。木材是一种理想的材料,对健康无害,并在房间里创造一个舒适的微气候。即使是用于浸渍自然结构的药剂也是无害的。
木制框架桑拿房的另一个优点是 由于木材的特性,它们可以完美地保持热量. 原木不仅有热量,而且还具有隔音效果。空气将是可渗透的,这就是为什么它被称为 "呼吸",对用户来说,它很容易呼吸。
原木小屋是持久的,有吸引力的。当然,必须在木材上进行防腐处理的化合物才能确保建筑物有很长的使用寿命。
原木屋不仅有优点,也有某些缺点。
- 木材不能被称为高强度的材料,特别是与金属或石头相比。随着时间的推移,木屋可能会变得倒扣,甚至开裂。
- 在高湿度的条件下,木材会开始腐烂。木材寄生虫会攻击这种材料。这种问题只能用防腐剂来控制。
- 要减少木屋的火灾风险是非常困难的。木材是一种易燃材料,因此在安装灶具和桑拿房加热器时必须极其小心。
材料的选择
一个尺寸为6x6的桑拿房 可以用不同类型的原木建造. 让我们熟悉一下最受欢迎的选项。
圆柱形原木
这是最受欢迎的材料之一,大量的浴缸都是用它建造的。 圆柱形原木不仅可靠、牢固,而且结构也很有吸引力。 这种材料本身是一种磨制的原木,在特殊的机器上加工而成。原木在整个长度上具有相同的直径。
在建造浴室和私人房屋时,切割原木可以节省很多时间。 当然,这种优势只有在材料正确和仔细准备的情况下才能实现。
切碎的原木
原木小屋也是用砍下的原木建造的。这种材料的主要特点是其直径的差异,以及不平整的表面。这并不能使建筑物变得完美,但与现场的其他结构相比,它们将看起来同样有吸引力和坚实。
砍伐的原木,像圆木一样,是一种生态的、高质量的材料,具有很高的质量. 用它建造的浴池非常舒适和温馨。
尽管有其积极的品质,但砍下的木材也必须用防腐剂处理,以防止其腐烂、干燥并成为寄生虫的目标。
规划的微妙之处
在你处理任何建筑工作之前,非常重要的是准备一个良好和详细的 计划 未来的建筑。一个原木桑拿房可能有好几层,有阁楼,有阳台和许多其他有趣的组成部分。 考虑到一些选项的规划的微妙之处。
一层
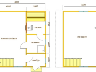
一个尺寸为6x6的单层浴场可以容纳一个前庭、一个休息间、一个蒸汽室和一个浴室。 最好的建筑是那些有阳台的建筑,在阳台上可以为客人放置额外的桌子和椅子。
所有这些组件都可以安排在一个单层的桑拿房中,从视觉上将其分为两半 - 右手边和左手边。与淋浴和卫生间分开的桑拿房可以放在右手边,前庭和放松室放在左手边。为放松室、桑拿房和露台提供尽可能多的空间是有意义的。
两层楼
一个6x6的澡堂可以有两层而不是一层。 一楼的布局可以与之前的类似。 一楼的一个大空间可以作为休闲室使用,前面的整个空间可以用墙隔开,并配备蒸汽房、洗涤室和前庭。房间的布局非常方便和实用。而通往一楼的楼梯应该安装在娱乐室里。
第一层 你可以随心所欲地安排二楼。这最常用于一两间卧室、儿童房或台球室。有时还装有一个阳台。
有一个露台
带露台的桑拿房就像带阳台的房子一样酷。 一旦桑拿房建成并投入使用,可以在其上加建一个露台。对于小型建筑来说,这是一个很好的解决方案,所以6x6的浴缸很适合。
阳台上可以安装太阳椅、扶手椅、一张桌子,周围还有原木长椅。
有一个阁楼
带阁楼的桑拿房的平面图与两层楼的建筑相似。 所有的桑拿组件,如蒸汽室、洗涤室和放松室都必须在一楼,其他一切都可以包含在阁楼上。
在某些情况下,可以在阁楼上建立一个小的睡眠或休息区。不应忘记,阁楼和阁楼是一样的,所以它的建造通常不会太困难。
施工阶段
一个原木桑拿房的建造分为几个阶段。 首先,需要购买建筑材料和选定类型的原木,要有足够数量的立方体。
- 有必要确定 基金会的类型。 桑拿房所处的位置。可靠的是条状粉底,但它很贵,而且其收缩需要3至6个月。许多人选择桩式地基。它的可靠性并不低,但它的积累速度更快。然而,对于木屋来说,还是建议选择条状的版本。
- 接下来是准备工作 桑拿房的底部。 为此只需要高质量的木材。
- 在建造结构本身之前,必须将木材烘干。 应将原木放在院子里,并在户外晾晒一段时间。然后,原木的表面应该用表面保护剂进行处理。
- 当地基和木材都准备好了,你就可以继续进行 为未来的大楼献上启动花圈. 用屋顶毡从上面覆盖地基。
- 木材必须是 一堆 一个接一个地达到框架的计划高度。然后,该结构将不得不站立一段时间 ......站立和干燥......。. 只有这样才能采取下一步行动。
- 你必须照顾好 隔热材料 和安装一个高质量的屋顶。可以建造一个普通的单坡屋顶。这很容易制作,而且成本较低。
- 澡堂 提供一个炉子和所有必要的设备. 那么它就是 绝缘的 - 墙壁、地板和天花板。裂缝用亚麻布、麻布和苔藓填充,并用密封剂密封。
- 门窗框架安装完毕 ...和内部... 内部配件.
已完成的建筑实例
一座6 x 6米的木屋可以成为乡间的一颗真正的明珠。有了正确的方法,这样的结构可以成为一个真正的桑拿房,一个家庭可以舒适地生活在其中。 让我们看看这种建筑的几个好例子。
- 并非所有的浴缸都是由浅色的木材制成。这可能是 坚固的结构,深巧克力色的阴影,有一个露台和一个用酒红色装饰板装饰的屋檐。
该结构可以安装白色框架的塑料窗 - 它们不会破坏建筑物的外观。
- 一个微型的单层桑拿房 可能没有露台,入口处可能只有几个带扶手的台阶。你不大的建筑如果有高质量的浅色原木、木门和带绿色框架的窗户,看起来会非常聪明。同样绿色阴影的屋顶材料将是合适的。
- 你会在一个良好的基础上有一个真正别致的效果。 原木小屋有一个由白色栅栏围起来的阳台。 窗户和门也应保持白色。屋顶可以是双坡的,用灰色或深绿色的屋顶材料修饰。一张木制的桌椅,整齐的绿植和一条平整的花园小路,在建筑前看起来会非常和谐。
- 用暗梁搭建的两层楼高的浴场,可以用一个小门廊来补充。. 这样的建筑的门和窗应该是对比鲜明的--雪白的。然后它们将在黑暗的背景下脱颖而出,看起来非常有吸引力。具有柔和的绿色调的屋顶材料适合用于修饰檐口屋顶。在桑拿房前放置一个带有桌子和椅子的小坐区。
如果建筑物周围有开花植物和修剪整齐的灌木丛,看起来会更有吸引力。
下面的视频中展示了一个6x6的原木桑拿房项目。
