公寓内的土耳其浴室
如今,每个人都可以在自己的公寓里舒适地体验土耳其浴室的好处。因为土耳其浴室非常紧凑,所以即使在一个小浴室里也很容易建造一个土耳其浴室。你所需要做的就是起草一份设计,制定一份施工计划,并购买优质的建筑材料。
特点
土耳其浴室是罗马浴的改进版。 它的效果与Thermae相似:在那里,人体不仅被蒸汽加热,而且还被地板、床和墙壁加热。 这种蒸汽浴的主要特点是其空气温度不高于+60°С。由于其温和的效果,东方桑拿被推荐给患有各种健康问题(肾脏、心脏和胃病)的人。湿润的蒸汽可以改善新陈代谢,并使神经系统得到平静。
要享受土耳其桑拿浴,你不需要去遥远的东方国家,你可以在家里通过在公寓里安装土耳其浴室来实现。 在规划这种桑拿房的设计时,必须注意到它完全用天然石材装修(这是与俄罗斯桑拿房的主要区别,俄罗斯桑拿房的表面是用木材衬垫的)。大理石通常用于建造土耳其浴室,缟玛瑙则用于装饰。土耳其浴室的内部必须有一个带冷热水的盆子,用于清洗。
建筑要求
土耳其浴室是一种尺寸紧凑的工程建筑,因此它不仅可以建在乡村住宅中,也可以建在公寓中。 要在浴室里建造一个土耳其浴室,你只需要一个1.5或2平方米的空间。 此外,你还必须在浴室中找到空间来放置过滤器和蒸汽发生器。土耳其浴室可以安装在天花板高度不超过三米的房间里,这些房间配备了冷热水、下水道系统和良好的抽风机。同样重要的是,要牢记 在公寓里安装迷你桑拿房之前,你必须让其设计得到当局的批准。
从法律的角度来看,这种结构只能建立在能够承受高负荷的新建筑中。
可能的布局
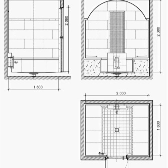
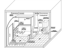
在公寓里安装东方蒸汽房之前,必须仔细检查浴室的布局。无论大小和设计如何,土耳其浴室必须分为四个具有不同功能的区域:放松区、淋浴区、蒸汽室和设备室。 对于三至五人的家庭,可以选择2.5平方米的蒸汽房。 在计划建造蒸汽房(harar)的房间部分,必须仔细准备天花板、墙壁和地板,以便铺设瓷砖。土耳其浴室还应该有一个自来水的来源,用于将水倒入碗中。
建设的各个阶段
如今,许多公寓业主决定在浴室里建造一个土耳其浴室。这不是一个简单的过程,但如果你有耐心,设计正确,购买高质量的建筑材料,你一定会成功。 在家里安装土耳其浴室包括一整套的活动,即
- 在淋浴房中,一切都需要测量,并需要选择更合适的布局,根据这些布局将创建项目。
- 在拟定估价后,购买设备和材料,检查淋浴房的通风情况和通信系统的可操作性。
- 在这之后,准备工作得以进行,蒸汽房的框架也被组装起来。
- 完成施工,进行收尾工程和调试。
项目的创建
任何一个土耳其浴室,无论其大小,也无论它是放在一个独立的结构中还是配备在一个平坦的浴室中,都有一个相当复杂的结构。因此,必须特别注意在建筑工程开始之前创建一个设计。除此以外。 必须绘制未来的蒸汽房图纸,同时考虑到公寓的布局。
所有的细节,包括可见的和不可见的,都必须在图纸上显示出来,因为这将决定今后土耳其浴室的运行时间和安全性。
绝缘材料
在给建造土耳其浴室的房间的所有表面涂上底漆后,要安装绝缘材料。框架由金属型材制成,插入隔热材料,用石膏板固定材料。 这个过程应从地板开始,最后到天花板结束。
防水
有必要在浴室的表面覆盖防潮的石膏板(它们有一个特殊的标记GKLV)。为了提高材料的防潮性能,建议另外用疏水性防腐剂处理床单。 石膏板之间的接缝用加固胶带密封,或者你也可以为此使用层状防水材料。
暖气
在土耳其浴室里,电加热和热水加热都是可以的。后者被认为是经济的。 后者更经济,可以由一个单独房间的电锅炉或热水器提供。 此外,还可以使用电热垫来加热土耳其浴室,电热垫放在地板上,从上面填入熨斗。
照明和装饰
为了突出东方桑拿房的设计和装饰的美感,必须正确选择照明。 由于蒸汽房的温度变化和湿度一直很高,所有的电器配件都必须适合并防止潮湿。 此外,墙体必须配备特殊的电线,有防潮的护套。还应安装一个变压器,以避免在欠压期间发生短路。
长椅、墙壁、天花板和地板都应该用大理石或瓷砖装饰,并以通常的方式铺设。 在土耳其浴室的马赛克设计看起来很豪华;为了增加设计的独创性,你可以在马赛克的墙壁上放置带有东方图案的作品。
东部浴场房间的门应该由钢化玻璃制成,其安装方式是与地板有一个小的间隙,这是保证空气流通的必要条件。
提示来自
最近,许多公寓业主决定将土耳其浴室放在浴室里,因为这可以让他们在任何时候都能享受到东方浴的所有魅力,而不用离开家里的墙壁。 对于那些第一次打算安装这种桑拿房的人来说,你应该考虑有经验的工匠的以下建议。
- 土耳其浴室的天花板必须至少有2.5米高;它必须是圆顶的形式,以便沉淀在天花板上的冷凝水可以慢慢地顺着墙壁滴下来,而不会滴到你的头上。
- 为了保持蒸汽房的理想温度,可以使用一般的加热系统,也可以安装电加热系统;蒸汽发生器和锅炉必须安装在技术室。
- 可以用独立的装饰品和东方的装饰品来装饰桑拿房,以创造一个真实的室内环境。
美丽的例子
今天,土耳其浴室在那些关心自己的健康和喜欢在家里洗蒸汽浴的人中已变得非常流行。 在一个公寓里,这样的东方浴缸可以放在浴室里,使用几种设计理念。
- 用于小房间。 你将需要最多2.5平方米的空间来做土耳其浴室。墙壁应该用浅色调的天然大理石装饰,床铺用实心石砖,座椅和床铺的水平面用带有东方图案的玻璃马赛克装饰。你可以选择任何颜色的方案,最好是明亮和对比的。
适当的照明将帮助你突出这个土耳其浴室的味道;你应该尽可能地使用照明设备。他们将强调饰面和闪亮的马赛克的美丽。
- 用于大型浴室。 如果房间面积允许,你可以把土耳其浴室做成这样的设计,这将创造一种东方童话的感觉。天花板应采用弧形或多层拱顶的形式,并对其进行装饰,使用 "星空 "的技术。石头水碗将完成设计,它们需要用灯光来装饰。银色的水桶将为内饰增添一丝奢华。
下面的视频告诉你如何在自己家里做一个土耳其浴室。
