Allt om 4 x 6 badhusstugor
För den ryske mannen är bad inte bara ett namn som framkallar förväntningar på en fantastisk njutning. Det är en kult som har sina rötter i en avlägsen historia, en rening inte bara av kroppen utan även av själen. I bastun träffas vänner och kollegor, och man tar itu med både privata och yrkesmässiga frågor. Det trånga badkaret, som en gång var en dröm för privatpersoner, har sedan länge förlorat sin attraktionskraft. Människor har sträckt ut sig inte bara till landet utan också till sina egna rötter och seder. Den träiga doften av en varm bastu och rykande kvastar är ett mirakel som vi kan ge oss själva. Men den måste vara rätt utrustad. En av de mest populära är timmerstugan 4x6.
Funktioner
Dimensionerna på timmerstugor 4x6 anses vara idealiska, eftersom denna storlek kännetecknas av den minsta värmeavgivningen. De skurna hörnen släpper inte in kylan: de verkar enligt principen om stötdämpare och stöter bort den. Ett sådant rum är lätt att värma upp, det är lättare att hålla värmen. Storleken har ett stort inflytande på uppvärmningshastigheten - med en bra bastuaggregat värms den upp på 30-40 minuter. Den totala ytan är 24 m2. Med ett genomtänkt tillvägagångssätt vid planeringen kan man bekvämt rymma upp till 10 personer, och det inre utrymmet kan användas så mycket som möjligt.
En träbastu är pålitlig, robust, praktisk och multifunktionell. En timmerstuga för bastu bör tillverkas av s.k. vinterträ.
Den har minimal fukthalt och är nästan immun mot bakterier och insektsangrepp. Allt detta gör att det är rätt val. Det finns dock ett antal särdrag som kräver att vissa regler följs. Till exempel behöver du ett golv av god kvalitet för din golvbeläggning. Fördelarna är:
- Utmärkt utseende;
- lång livslängd;
- behaglig haptisk känsla;
- Den är halkfri, miljövänlig och lätt att sköta.
Terrassbrädan behandlas med speciella föreningar och oljor för att förhindra svamp, mögel och olika mikroorganismer.
De bästa bastudörrarna är gjorda av trä. De kan vara gjorda av massivt trä (det bästa alternativet), inramade eller med paneler. De sistnämnda är den minst lämpliga lösningen eftersom de består av många delar, och ökad fuktighet påverkar konstruktionens utformning kraftigt.
En dörr i massivt trä bör vara 4-5 cm tjock för att hålla värmen säkert inne i rummet. Välj de arter som är minst benägna att svälla, varav kalk anses vara den mest framgångsrika. Skivor används för tillverkning av: brädor med tunga och spår, golvbrädor, limmade paneler. Ramkonstruktioner fungerar bra: de kan till och med isoleras.
Enligt rysk tradition är dörren till tvättrummet och ångbastun mindre än entrédörren. Detta bidrar till att hålla temperaturen inne. Fönster i tvätt- och ångbasturerna är frivilliga: om du behöver naturligt ljus, om du ser en vacker utsikt bakom fönstret eller om du ser fönstret som en nödutgång.
Översikt över typer
Ett badhus i trä är en dröm för en stadsbo. Efter en stelnad "säck" är en träbyggnad med ett speciellt mikroklimat en naturens fläkt. Miljövänliga konstruktioner smälter inte bara in i omgivningen och naturen. De är också ett relativt billigt konstruktionsalternativ.
De byggs snabbt, de behöver inte lång tid för att krympa och de är inte lika bekväma som sten- och tegelbyggnader.
Arkitekturen kan vara så varierande att det är svårt att hitta några begränsningar i detta avseende. Men det finns något gemensamt - vissa tekniker för timmerhus.
Vilda timmerstugor av enkla skalade stockar är de mest populära. Den ständiga efterfrågan på dem beror på deras demokratiska pris. Följande staplingstekniker används:
- hörnet "i skålen";
- skål "i kurduk";
- Finsk kopp med spik.
Trots att "skålhörnet" anses vara relativt billigt behåller det värmen bra, så det väljs oftast för konstruktion. För komplexa konstruktioner, t.ex. med en vind, används den tredje metoden. Kurdukskålen är den sibiriska versionen av den finska skålen, som skiljer sig åt i form av spetsen.
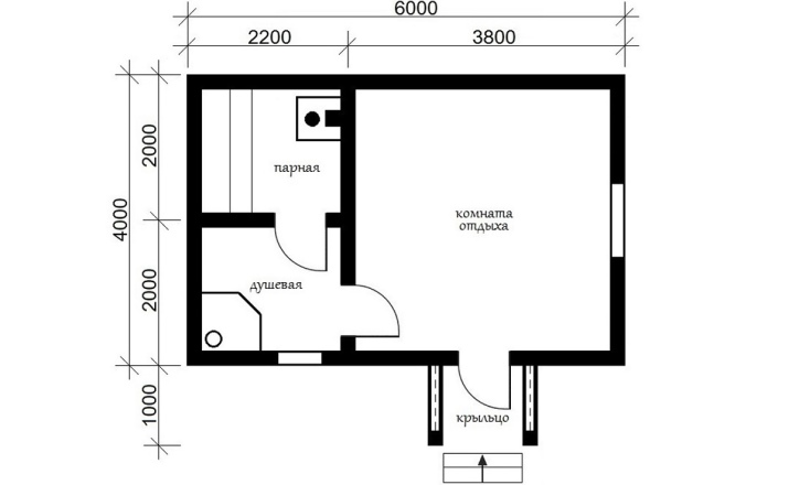
Layout
Det finns obligatoriska rum för bastu:
- ångbastu;
- duschrum;
- förrum;
- relaxrum.
Ett 4 x 6-badhus kan byggas i en eller två våningar. Lägg till en veranda, i stället för en fullfjädrad första våning kan du göra en vindsvåning. En intressant lösning skulle vara en terrass runt badet, så att du kan gå barfota runt huset efter ångbadet: dina fötter kommer tack och lov att reagera på en sådan massage. Många kompletterar första våningen med en balkong.
En 6x4 med en våning är den klassiska varianten, men en lösning med två våningar passar bättre för gästvänliga värdar. En balkong på första våningen gör bastun till ett riktigt gästhus.
En terrass med veranda ger utrymme för en sommaruppehållsplats.
För att kunna bygga ett 6 x 4-komplex måste varje meter användas på ett rationellt sätt, eftersom det blir mycket svårare, ibland omöjligt, att bygga om något. Den faktiska utformningen av bastuns interiör beror på ägarens önskemål. Vissa vill ha ett rymligt ångbad, medan andra föredrar ett separat duschrum. För många är det viktigt med en rymlig relaxavdelning. I detta fall kan förbadet minskas.
Goda exempel
Ett fantastiskt exempel på en 6x4 timmerstuga med utskjutning.
En tvåvåningsversion av samma storlek. Den övre delen av huset kan användas som fritidsområde.
Denna variant av timmerstuga 4x6 kan jämföras med den skotska chalet-stilen.
Den guldhåriga strukturen verkar bada i solsken även i molnigt väder.
En bastu på vinden.
Den är kompakt och tar inte mycket plats på tomten.
En sådan arkitektur skapar oundvikligen en känsla av att röra vid en saga.
Träbyggnader ger dig värme, doften av tallskog och sibirisk taiga. De är fyllda av den syrliga och hälsosamma doften av skogsharts. Barrträd har en desinficerande effekt och skapar ett gynnsamt inomhusklimat.
Se hur en bastu på 4 x 6 meter ser ut nedan.
