Vse o lesenih kopaliških hišah
Ne more vsakdo najti skoraj pravljične hiše iz hlodov na zemljišču, in to celo v kombinaciji s savno. Kako zgraditi takšno lepotico? Katere vrste lesa so na voljo? Ali je takšno kombinacijo dovoljeno kombinirati? Ta vprašanja bomo poskušali razumeti v našem članku.
Značilnosti
Hiša v kombinaciji s savno ima veliko posebnosti; vsekakor ni običajna zgradba. Preden se odločite za takšen projekt, morate pretehtati prednosti in slabosti, ugotoviti, koliko vam je pomembno udobje in katera tveganja je treba upoštevati.
V prid kombiniranemu projektu lahko govorijo naslednje točke.
- Parcela, namenjena za gradnjo hiše, ne zadostuje za gradnjo prostostoječe savne. Morate jih združiti.
- Savno je priročno uporabljati tudi v hiši, zlasti če so v družini starejši ljudje in majhni otroci. Ni vam treba čakati v hladnem predprostoru, dokler se soba ne ogreje, saj bo čakanje na domu potekalo veliko bolj udobno.
- Prihranki pri gradbenem materialu zaradi sosednjih sten, strehe in temeljev ter skupnega komunikacijskega in energetskega sistema.
- Celoten projekt bo izvedla ena sama mizarska ekipa.
Oglejmo si nevarnosti, ki jih prinaša savna pod isto streho kot hiša.
- Najpomembnejša točka je nevarnost požara. Savna mora biti od stavb oddaljena 10 metrov. V nujnem primeru bo savna zagorela, hiša pa ne bo poškodovana.
- Savna v hiši mora biti temeljito hidroizolirana, sicer bosta vlaga in plesen v bivalnem prostoru postala stalna težava.
- Kombinacija s savno lahko povzroči vlago v toplotni izolaciji, vgrajeni v stene stavbe.
- Prezračevalna sistema za dom in savno morata biti zgrajena ločeno, vendar morata delovati usklajeno.
- V sobi za savno v kombinaciji s hišo se je bolje odpovedati štedilniku in ogrevanje preusmeriti na plinske ali električne naprave. Uporaba sadov civilizacije je lažja in čistejša, vendar se morate pripraviti na višje račune za komunalne storitve.
- Slaba stran je pomanjkanje zasebnosti. Hrupne seanse savn bodo slišala gospodinjstva v stanovanjski soseski.
- Za odobritev projekta bodo potrebna posebna dovoljenja. Poleg tega lahko zavarovalnice zavrnejo zavarovanje kombinirane stavbe.
Lesene hiše so stanovanjske stavbe iz naravnega lesa, masivnega ali lepljenega lesa. To so okolju prijazne stavbe, v katerih je prijetno in varno živeti. Ne kopičijo radioaktivnih in strupenih snovi ter odlično ohranjajo toploto.
Iglavci in nekateri drugi gozdovi oddajajo eterična olja, ki blagodejno vplivajo na naš dihalni sistem. Zaradi "dihajočih" sten in dobrega kroženja zraka se v hiši stalno vzdržuje ugodna mikroklima in ni zastarelega vonja. Lesene hiše so trpežne in imajo dolgo življenjsko dobo.
Ena od pomanjkljivosti lesenih hiš je veliko krčenje, ki se lahko pojavi v prvih 1-2 letih po gradnji. V tem obdobju je bolje, da ne opravljate notranjih zaključnih del ter ne vgrajujete oken in vrat. Krčenje lahko povzroči razpoke v lesu.
Stene lesenih hiš so obdelane s posebnimi impregnacijskimi sredstvi - zaviralci ognja. Ti bistveno zmanjšujejo nevarnost požara. Impregnacijam so dodani antiseptiki, ki preprečujejo gnitje lesa. Električna napeljava v takšnih stavbah je položena v izolacijskih ceveh.
Glede ureditve "mokrih točk" v hiši (kopalnica, kopalnica, kuhinja, kopalnica) je pri njihovi opremi nekaj težav. Ploščice in druge vodoodbojne materiale je treba namestiti na poseben okvir. Uporabljajo se vodoodporne barve za krov. Polaganje ploščic lahko opravite šele po tem, ko se hiša popolnoma skrči. Mokre točke v leseni okvirni hiši so precej dražje kot v kamniti hiši.
Vrsta lesa
Deblo je žagan les iz hlodov. Izdeluje se na različne načine, tako da je lahko skobljan ali neskobljan, masiven ali lepljen. Les je izdelan iz cedre, macesna, smreke, bukve, jelše in lipe. Najpogostejši in cenovno najugodnejši material je bor.
Rezan les
Klasični skobljani tram je izdelan iz suhega masivnega lesa, ki tvori gladko in enakomerno površino ter ima strogo geometrijsko obliko. Ker je les že posušen, se sčasoma ne deformira. Hiša iz takšnega lesa se skrči le za 5 %, zato na njeno dokončanje ni treba čakati celo leto, temveč le nekaj mesecev.
Rezan les
Medtem ko ima navaden skobljan les štiri gladke površine, je profilirana različica nekoliko bolj zapletena. Dve stranici imata profilirane robove za montažo, drugi dve pa imata čelne površine.
Ta obdelava omogoča tesnejše spajanje lesa, ki skoraj ne pušča vrzeli, kar hišo varuje pred prepihom in vlago. Poleg tega profilirani leseni blok praktično ne povzroča odpadkov.
Dvojni
Dvojni les je tradicionalno ime za izdelek, sestavljen iz dveh plošč s pero in utor, med katerima je toplotna izolacija. Ta konstrukcija zagotavlja dobro toplotno izolacijo hiše. Uporabljena izolacija je 130 mm debela volna ali polistirenska pena.
Hiša iz hlodov
V starih časih so hiše gradili iz navadnih hlodov. Prilagajanje hlodov drug k drugemu je bilo težavno in dolgotrajno. Današnja tehnologija omogoča sestavljanje različnih vrst drevesnih debel v popoln valj hlodov.
Za hitro in enostavno gradnjo tople hiše brez napeljav potrebujete okrogel les premera 240 mm.
lepljeni nosilec
Lep in trden tram je narejen z lepljenjem več lesenih delov iste ali različnih drevesnih vrst. Izdelek je narejen iz dobro posušenega materiala, hiša je topla. Krčenje lepljenega lesa je minimalno in se upošteva pri sestavljanju hiše.
Negativni vidiki so stroški materiala; gre za najdražjo vrsto lesa. Poleg tega sestavina lepila zmanjšuje njegovo ekološko vrednost.
Projekti
Hiše s savno pod isto streho so lahko majhne, gostinske ali tople, zimske, s podstrešjem in verando, ustvarjene za stalno bivanje. Upoštevajte, kako sta urejena.
- enonadstropna hiša za goste (7x9 kvadratnih metrov) s savno, parno kopeljo, sobo za sprostitev in prostorom za peko na žaru, razporejenimi v eni liniji. Soba za goste se nahaja v središču kompleksa. Desno in levo od nje sta savna in kuhinja.
- V drugi različici kopalnica je povezava med dnevno sobo in jedilnico. Stavba stoji pod pravim kotom.
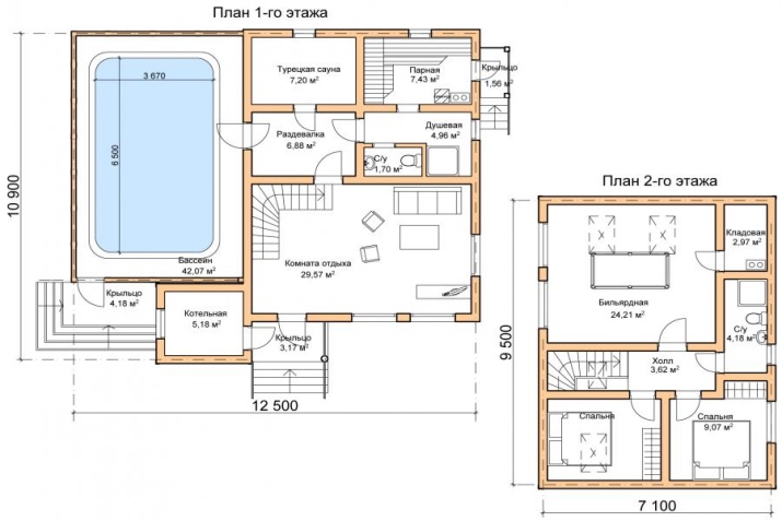
- Zasnova hiše savn s celotnim kompleksom: bazen, savna s kotlovnico, garderobo in prostorom za sprostitev.
- Tloris hiše savn s podstrešjem V prvem nadstropju je soba za sprostitev.
- Majhna koča s podstrešjem in integrirano savno v pritličju.
Kako graditi?
Gradnja savne pod skupno streho lahko poteka na dva načina:
- je vključena v zasnovo hiše, skupna konstrukcija pa je zgrajena od spodaj navzgor;
- Savna je dodana in integrirana v obstoječo hišo.
Pri prvi možnosti zasnova vključuje skupne temelje, skupno streho, integriran komunikacijski sistem, električno napeljavo in izpušne kanale. Odločiti se je treba, ali bo hiša zgrajena na običajen način ali pa bo uporabljena kompletna hiša.
Pri drugi možnosti se izvede monolitni pasovni temelj in zgradijo stene. Prezračevanje in vse komunikacije potekajo ločeno. Za stene izberite enak les, kot je bil uporabljen pri gradnji hiše.
Fundacija
Postavitev temeljev je treba jemati resno, v tej fazi gradnje ne smemo narediti nobene napake. Od tega sta odvisni zanesljivost in trajnost hiše. Na izbiro temeljev vplivata vrsta tal in raven podtalnice.
Če se odločite za pasovni temelj, se izkoplje jarek do globine prodora zmrzali, temelj pa se izdela iz opeke in betona ter dvigne 20 cm nad tla, da lesene stene ne pridejo v stik s tlemi in da ne zgnijejo.
Šele ko se temelji dobro posušijo, je mogoče nekaj mesecev pozneje zgraditi stene.
Stene
Za gradnjo sten pripravite okrogel les zahtevane velikosti (širok najmanj 15 cm, širši kot je les, toplejša bo hiša). Na temelju je zgrajen opečni podstavek. Pri tem ne smete pozabiti na prezračevalne odprtine v kleti. Ko se cement posuši, se podstavek prekrije z Ruberoidom in nanj se položijo deske. Deske se predhodno obdelajo z mastiko, da se prvi les zaščiti pred gnitjem.
Prva vrsta desk z vezjo v vogalih je nameščena na deske. V naslednjem krogu se na nosilce namestijo nosilci za kletno ploščo. Tretja vrsta je položena na vrh nosilcev.
Pri polaganju nosilcev jih navpično navrtamo in pritrdimo po 3 kose med seboj z lesenimi čepi premera 3 cm. Pritrditev je izvedena z enakimi razmiki po celotni dolžini. Naslednje tri vrste nosilcev so ponovno pritrjene z mozniki v šahovskem vzorcu in tako naprej do strehe.
Pri gradnji sten ne pozabite pustiti odprtin za okenske okvirje in vrata. Lesene stene se prezračujejo, zato jih je treba na zunanji strani zatesniti in pobarvati. Če se po krčenju razpoke ponovno pojavijo, jih je treba drugič prekriti s tesnilno maso.
streha
Za pokritje strehe so vzdolž zadnjega nosilca stene nameščeni nosilci. Nato so špirovci postavljeni en meter narazen. Na njih so položene letve, ki držijo strešno kritino. Okvir je lahko obložen s kovinskimi ploščicami, keramičnimi ali fleksibilnimi ploščicami, valovito jekleno pločevino, skrilavcem ali glinenimi strešniki.
Ko je lesena konstrukcija postavljena, jo je treba pustiti, da se eno leto naravno krči, preden se opravijo notranja dela. Če je hiša zgrajena iz suhega lesa, je čas krčenja veliko krajši.
Lepi primeri
Savna, ki je povezana celo z majhno hišo na podeželskem posestvu, ne vključuje le higienskih postopkov, temveč tudi celoten kompleks prostorov za udobno sprostitev. Hiša z lesenim okvirjem je tudi estetsko lepa, kot je razvidno iz primerov:
- hiša za goste s savno v slikovitem kraju;
- kopel z lepljenim barom in velikimi panoramskimi okni;
- velika stavba s kompleksom savn in prostorom za posedanje na terasi;
- Hiša s savno iz profiliranega lesa.
Kliknite tukaj za podroben ogled savne, obložene z lesenimi ploščami.
