Wszystko o saunach
Sauna z bali prawie nigdy nie wychodzi z mody. Jest to bardzo ekonomiczna i praktyczna opcja. Gnicie nie jest nieodłączną cechą dobrego drewna - bardzo dobrze znosi ono różne temperatury. Dowiedzmy się, co jest takiego wyjątkowego w tym materiale, jakie są jego wady i zalety oraz poznajmy kilka ciekawych projektów.
Cechy
Łaźnia z bali okrągłych jest ciekawym rozwiązaniem dla budownictwa pozamiejskiego. Ponieważ każdy klocek drewna jest obrabiany na specjalnej maszynie do mniej więcej tej samej średnicy, budynki będą zawsze wyglądać schludnie i czysto.
Dzięki takiemu sposobowi obróbki drewna jest ono mocne i praktycznie niepodatne na działanie czynników zewnętrznych. Drewno ma mocny, impregnowany taniną lub żywicą rdzeń. Długowieczność pnia chroni materiał przed przedwczesnym gniciem.
W przypadku budynku z bali cylindrycznych lub kalibrowanych nie jest konieczne przycinanie, co pozwala zaoszczędzić pieniądze podczas procesu budowy.
Na ziemi rosyjskiej od wieków budowano drewniane budynki. Jest to bardzo praktyczne i przystępne rozwiązanie dla większości ludzi. Pierwszą rzeczą, którą należy wziąć pod uwagę przy wyborze drewna, są jego właściwości techniczne. Do głównych zalet tego rodzaju drewna należy kilka czynników.
- Główny parametr - Jest to materiał przyjazny dla środowiska, praktycznie nie zużywa się i nie wymaga dodatkowej obróbki. Nie trzeba używać żadnych barwników ani lakierów, które tylko zanieczyszczają środowisko. Olejki eteryczne emitowane przez drewno mają korzystny wpływ na zdrowie człowieka i właściwości odmładzające. Taka konstrukcja będzie harmonijnie wyglądać na tle wielu naturalnych zakątków.
- Drewno służy właścicielom konstrukcji przez dziesiątki lat. Niektóre budynki stoją od wieków. Modrzew i osika z czasem stają się jeszcze bardziej wytrzymałe.
- Ze względu na strukturę drewna następuje naturalna wymiana powietrza. Jest to sposób na zaoszczędzenie pieniędzy na instalacji systemu wentylacyjnego. Drewno pomaga ograniczyć przeziębienia - dzięki naturalnej wentylacji przeciągi są praktycznie wyeliminowane jako zjawisko.
- Jest to jeden z najtańszych i najbardziej dostępnych materiałów. Jego koszt jest kilkakrotnie niższy niż koszt kamienia czy cegły.
- Wanny takie są łatwe w montażu. Nie jest konieczne angażowanie specjalistów, ale można wznieść konstrukcję własnymi rękami.
Konstrukcja jest zwykle zlokalizowana na wsi, ale dopuszcza się również inne możliwości jej budowy. Wszystko zależy od osobistych preferencji przyszłego właściciela budynku.
Zalety
Główną zaletą tego materiału jest to, że zawsze można go znaleźć w sprzedaży po przystępnej cenie. Jest to korzystne dla zdrowia i ogólnie dla atmosfery. Przyjrzyjmy się jeszcze kilku innym zaletom drewna.
- Niski koszt. Jeśli planujesz zbudować konstrukcję na przykład z cegieł, będziesz musiał wydać kilkakrotnie więcej pieniędzy i włożyć więcej wysiłku.
- Drewno dobrze przewodzi ciepło, więc nie ma potrzeby myśleć o dodatkowej izolacji. Wszystko to pozwala zaoszczędzić na kosztach budowy.
- Drewno jest doskonałym izolatorem hałasu. W tych budynkach można gromadzić się w głośnych grupach i dobrze się bawić.
- Budynki wytrzymują dziesiątki lat - Wanna z drewna wytrzymuje średnio do 50 lat, a przy odpowiedniej pielęgnacji może przetrwać nawet sto lat. Drewno nie będzie gnić. Jedynym niuansem jest to, że zaleca się zamawianie sauny w wersji termokurczliwej, aby nie traciła ona objętości podczas późniejszych prac budowlanych.
- Istnieją dziesiątki, a nawet setki wariantów tego typu budynków "pod klucz". Użytkownik może wybrać rozwiązanie zgodne z własnymi potrzebami i życzeniami.
Ponieważ takie wanny cieszą się popularnością już od dłuższego czasu, łatwo znaleźć nowe ciekawe przykłady planowania budowy na własnej działce.
Wady
Główną wadą drewna jest to, że jest ono bardzo podatne na ogień. Przy najmniejszym ogniu, zwłaszcza gdy drewno z czasem wyschnie, pojawi się płomień.
Jeśli sauna jest budowana "pod klucz", to później może dojść do niespójności konstrukcji, zwłaszcza w odniesieniu do otworów drzwiowych i okiennych. Aby uzyskać obiekt wysokiej jakości, zaleca się wykonanie domu w warunkach skurczowych - a to wszystko wymaga dodatkowego czasu. Na zakończenie prac budowlanych trzeba będzie poczekać od 6 do 12 miesięcy.
Drewno niskiej jakości może gnić. Dlatego też należy dążyć do równowagi między ceną a jakością. Lepiej jest wybrać drewno ze średniego przedziału cenowego.
Podczas procesu budowy należy dokładnie monitorować prace, aby zapewnić ich zgodność z przepisami budowlanymi i uniknąć wypadków. Istnieją określone procedury, których należy przestrzegać. Drewno powinno być zaimpregnowane w celu ochrony przed ogniem i pokryte środkiem przeciwgrzybicznym.
Czasami warto skorzystać z pomocy eksperta, jeśli masz wątpliwości co do rodzaju drewna, z którego ma być zbudowana sauna. Mistrzowie z łatwością stwierdzą, czy sprzedawany materiał jest dobrej jakości i czy odpowiada podanej cenie.
Projekty
Przed przystąpieniem do planowania projektu domku z sauną należy zdecydować o miejscu, w którym będzie znajdował się przyszły obiekt. Ważne jest, aby zwrócić uwagę na kilka szczegółów.
- Przepisy budowlane. Należy wziąć pod uwagę, gdzie pod ziemią jest już gotowa komunikacja, jak blisko siebie będą ustawione konstrukcje oraz w jakiej odległości od siebie znajdują się sąsiedzi.
- Topografia terenu w dużym stopniu decyduje o możliwości budowy budynku. Jeżeli w pobliżu placu budowy znajduje się rzeka lub jezioro, warto zachować niewielką odległość od takiego zjawiska naturalnego, ponieważ wody gruntowe mogą mieć później negatywny wpływ na konstrukcję.
- Jeśli w pobliżu sauny znajdują się inne budynki, zwiększa to tylko prawdopodobieństwo pożaru. Za minimalną odległość uważa się odległość co najmniej 8 metrów.
- Lepiej jest, gdy sauna znajduje się blisko natury. Zapewnia to pewnego rodzaju izolację, ale także sprzyja zdrowiu.
Jeśli chodzi o planowanie, eksperci doradzają wybór odpowiedniego gatunku drewna. Drzewa iglaste są najpopularniejszym wyborem, ponieważ potrafią stworzyć własny mikroklimat.
Jedna kondygnacja
Wybierając wersję parterową, należy wziąć pod uwagę, że w takim budynku zmieszczą się maksymalnie 2-3 osoby. Należy zastanowić się, w jaki sposób pomieszczenia zostaną podzielone na strefy i czy będą zaprojektowane w tym samym stylu.
Jest to opcja bardzo przyjazna dla budżetu i kompaktowa. Składa się on z pokoju relaksacyjnego, łaźni parowej i umywalki. Przedpokój znajduje się praktycznie w strefie wejściowej.
Dziedziniec może być wykorzystany jako ważny element rozszerzający przestrzeń.
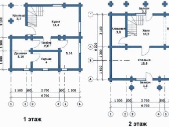
dwupoziomowy
Sauna dwupoziomowa może być bardziej ekonomiczna i czasochłonna, ale jest warta swojej ceny - zwłaszcza jeśli planujemy mieć gości lub przebywać na drugim piętrze latem lub zimą.
Na parterze może znajdować się sauna i łaźnia wstępna. Na pierwszym piętrze znajduje się pokój relaksacyjny i pralnia. Jeśli pozwala na to miejsce i pieniądze, warto wyposażyć się w oddzielne jadalnie i sypialnie oraz prysznic.
Z tarasem
Budynek z werandą to oryginalne rozwiązanie konstrukcyjne. Jako podstawę wykorzystuje się konstrukcję o jednej lub dwóch kondygnacjach. Ganek można zaaranżować zgodnie z upodobaniami właściciela. Można tu spędzić wspaniały czas z rodziną i przyjaciółmi, organizować pikniki, odpoczywać, opalać się i po prostu chłonąć energię natury.
Weranda w Twoim własnym stylu lub w harmonii z wystrojem wnętrza i detalami łazienki.
Najlepiej, aby meble, takie jak stół i krzesła na tarasie, były wykonane z drewna.
Z basenem
Basen w saunie znajduje się zarówno wewnątrz, jak i na terenie przy budynku. Znalezienie miejsca z wodą w budynku pozwala na przebywanie w nim zarówno latem, jak i zimą. Jeśli jednak basen znajduje się na zewnątrz, może być używany do pływania tylko w określonej temperaturze.
Wielkość basenu zależy od osobistych preferencji i celów właściciela.
Należy pamiętać, że taki obiekt wymaga dodatkowej opieki.
Opcje wykończeniowe
W przypadku łaźni z drewna istnieje niewiele opcji wykończeniowych. Wynika to z faktu, że drewno praktycznie nie wymaga konserwacji i wygląda na kompletne, mimo braku większych prac budowlanych.
zewnętrzna
Drewno nie wymaga prawie żadnego wykończenia zewnętrznego. Jedyne, co można zaakcentować, to oryginalny i praktyczny dach lub aranżacja werandy i patio.
Jeśli chcesz, możesz pomalować szkielet drewniany, ale w takim przypadku ryzykujesz utratę autentyczności budynku. Dlatego najlepiej jest zastanowić się, jak poszczególne elementy budynku będą do siebie pasować.
Jeśli masz wyobraźnię, możesz wykonać ciekawe dekoracje okienne. Nietypowym rozwiązaniem są pięknie rzeźbione okiennice.
Wnętrze
Ponieważ drewno jest materiałem samowystarczalnym, dekoracja wnętrz wymaga minimalnego wysiłku. W razie potrzeby miejsce to jest szlifowane i malowane. Jest to konieczne, aby zachować nieskazitelny wygląd drewna.
Warto pamiętać, że drewno jest w stanie uwalniać lecznicze olejki eteryczne, które są korzystne dla zdrowia, jeśli nie przeprowadza się żadnych prac wewnątrz pomieszczeń.
W saunach drewnianych dopuszcza się połączenie z innymi materiałami, np. poszczególne pomieszczenia wykłada się płytkami lub kamieniem dekoracyjnym. Tutaj wszystko zależy od gustu i preferencji właścicieli, a także celu zagospodarowania przestrzeni.
Piękne przykłady
Najlepsze gotowe przykłady wnętrz łaźni z bali są w przeważającej części wykonane z drewna. Dodaje to przestrzeni harmonii i przytulności.
- W saunach drewnianych nie ma prawie żadnych dodatkowych elementów wykończeniowych. Prawie wszystkie detale są wykonane z drewna. Mogą to być ławki, beczki na wodę, stoły i krzesła. Wyjątkiem są kuchenki wykonane z metalu lub cegły. Ponadto z drewna wykonuje się lampy, drzwi, półki i różne dekoracje.
Jeśli istnieje możliwość zatrudnienia mistrza rzeźbiarskiego, wykończenie wnętrza sauny można wzbogacić o dodatkowe elementy, które dodadzą jej oryginalności.
- Pięknym połączeniem we wnętrzu sauny jest zastosowanie mebli z naturalnej lub ekologicznej skóry. Zaleca się wybór mlecznych odcieni, aby łatwo wtopić je w paletę barw pomieszczeń. Lustra również wyglądałyby nietypowo w saunach.
Jedyna uwaga - takie detale we wnętrzu wymagają dodatkowej pielęgnacji, nawet jeśli znajdują się w toalecie, ponieważ okresowo będą się pocić od zbyt wysokiej wilgotności.
- Kuchenkę można ustawić w nietypowy sposób. Wokół niego można przybić drewniane półki lub po prostu umieścić w nim pamiątki i przybory kuchenne. Jeśli przestrzeń jest duża i planujesz okresowo zapraszać gości lub spędzać w niej noc, lepiej pomyśleć o miejscu do spania. Może to być zwykła rozkładana sofa, którą można umieścić obok części dziennej lub jadalnej.
- Inne niekonwencjonalne rozwiązanie przy planowaniu wnętrza sauny - Na przykład do dekoracji okien użyto szkła witrażowego. Lampy są również wykonane z drewna, prawdopodobnie rzeźbione i lakierowane.
- Dobrze byłoby wygospodarować miejsce na kuchenkę do sauny i na składowanie drewna opałowego. Jeśli kuchenka jest murowana, można na niej umieścić mały drewniany stolik. Może służyć do spożywania posiłków i przechowywania. Kosze wiklinowe można wykorzystać na drewno opałowe.
- Na akcesoria do sauny przewidziano oddzielne miejsce do przechowywania. Można je po prostu przybić gwoździami lub zrobić z nich dobrze wyglądające szafki i półki. Zamiast dywaników można zastosować drewniane maty, które podkreślą drewniany styl wnętrza. Ostateczną dekoracją takich pomieszczeń jest dobór zasłon i innych tekstyliów w tonacji wystroju wnętrza.
Zobacz poniższy film, aby zapoznać się z działaniem sauny z bali.
