Sauna bij het huisje
Het plannen van een sauna is niet zo eenvoudig als het misschien lijkt voor de niet-ingewijde. De bouw van een sauna stelt een aantal eisen aan de specifieke aard van de constructie.
Kenmerken
Moderne badinrichtingen worden steeds technologischer en worden soms een kunstwerk en een concentratie van moderne technologie. Het is nu mogelijk een sauna te hebben in de badkamer van een stadsappartement of een zwembad in een klein badhuisje op een tuinperceel.
Er zijn verschillende populaire soorten sauna's.
- Droog, beter bekend als een sauna. Het belangrijkste verschil met de Russische is de droge stoom. De vochtigheidsgraad in deze sauna bedraagt niet meer dan 5-20%, maar de temperatuur bereikt 110ºC.
- Sport Sauna is een soort Finse sauna.Het is uiterst gevaarlijk voor onvoorbereide mensen waar de temperatuur oploopt tot 95 graden en de luchtvochtigheid de absolute grens van 100% bereikt, wat samen een zeer stressvolle ervaring voor het organisme is. Het is een competitieve uithoudingsdiscipline onder saunaliefhebbers.
- Stoombaden, Russisch baden, is een traditioneel baadtype voor het Russische volk. Kenmerkend is de zachte stoom tot 65% en de hoge temperaturen tot 70ºC, afhankelijk van de hoogte van de planken - onder het plafond de hoogste temperatuur, dichter bij de vloer daalt deze. De vochtigheid is regelbaar, net als de warmte.
- Het stoombad is een Turkse hammam met een mild microklimaat. Het gaat om een relatief lage temperatuur van 40-45ºC en een luchtvochtigheid van bijna 100%. Openbare hammams bieden veel verschillende procedures aan.
- Het watertype van de baden is het Japanse Ofuro - is een wassing in een houten vat waarin het water wordt verwarmd tot 40-60ºC en een vochtigheidsgraad van 100%.
Keuze van badmateriaal
Elke sauna, ongeacht het type, heeft een aantal verplichte ruimtes, zelfs de kleinste.
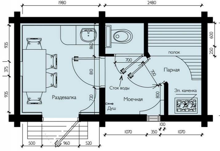
- VoorbadAfscheidingsruimte, die dienst doet als kleedkamer, stookruimte, opbergruimte voor saunatoebehoren en ontspanningsruimte (in het geval van een minibad).
- Stoombad, stoombad - is de favoriete plek van saunaliefhebbers. Het doel ervan is om een hoge temperatuur en vochtigheid te creëren. Het is uitgerust met een saunakachel met verwarmde keien en planken. Hier worden de berken-, eiken- en eucalyptusbezems gebruikt.
- Wasruimte - wasruimte met goot, banken, koud- en warmwatertanks. Douchecabine kan hier staan.
- RecreatieruimteHet is een plaats om te ontspannen na het gloeiend hete stoombad, om thee of kvas te drinken na het bad. Hoe het wordt ingericht, hangt volledig af van de smaak en de mogelijkheden van de eigenaar.
In het geval van het landhuis en het seizoensgebonden gebruik, kan het bad worden ingericht als een lichte versie, b.v. een frame sauna met thermische isolatie of een sauna gemaakt van planken.
Het houten badhuis is een klassiek Russisch badhuis met vele verdiensten. Het bad kan echter ook van andere materialen en volgens andere projecten worden gebouwd. De goedkoopste optie is een geraamte of een geprefabriceerde. Bij het plannen en kiezen van een bouwmateriaal is het van belang vertrouwd te raken met elk type en alle positieve en negatieve eigenschappen tegen elkaar af te wegen om zo de beste optie te kiezen.
Houten
Hout is een ecologisch, natuurlijk materiaal, veilig voor de gezondheid, creëert een gunstig microklimaat en behoudt jarenlang een heerlijk aroma. Winterhout - grenen, lariks, spar - produceert essentiële oliën die de binnenlucht desinfecteren, maar kan niet in de stoomcabine worden gebruikt omdat er teer vrijkomt als gevolg van de hoge temperaturen. Voor de constructie worden de volgende materialen gebruikt:
- wilde of gekapte stammen;
- Gesneden, gekantrecht of gelijmd hout.
De ideale materialen voor de sauna zijn linde of espen, maar voor de overige ruimtes kan elk ander hout worden gebruikt. De toelaatbare vochtigheid van het bouwmateriaal is maximaal 8% en het moet worden behandeld met speciale produkten met antiseptische en antifouling eigenschappen. Een sauna voor het hele seizoen wordt gebouwd van hout of boomstammen, een zomersauna van planken.
Kader sauna
De snelste oplossing is het bouwen van een houtskelet, geïsoleerd met minerale wol of steenwol. Moderne technologie biedt kant-en-klare modules, na levering op de bouwplaats hoeft men de kant-en-klare structuur alleen nog maar in elkaar te zetten. De technologie van de bouw van een frame sauna is echter zo eenvoudig dat het zelfstandig kan worden gedaan, zelfs zonder speciale bouwkennis.
Steen
Meestal is het een silicaatsteen, maar ook worden beton, keramische of gasbetonblokken, wilde steen - schelpsteen, butte, kalksteen, straatstenen gebruikt. Maar De techniek van het stenigen is zo tijdrovend en arbeidsintensief dat zij alleen wordt toegepast door echte kenners van natuurlijke schoonheid.
Er zij op gewezen dat gebouwen die van wilde steen zijn gemaakt, bijzonder mooi en uniek zijn. Ze passen perfect in het omringende landschap als de sauna is gebouwd op het terrein van een landhuis.
Gemaakt van schuimblok
Dit is een poreus materiaal, gemaakt van een mengsel van zand, cement en water. Schuimblokken zijn licht van gewicht, hebben een lage warmtegeleidingscoëfficiënt en zijn groot van formaat, wat de constructie van de wanden aanzienlijk versnelt, en de kamers warm maakt. Het moet worden afgewerkt met binnenafwerking, terwijl de buitenkant alleen kan worden gedaan indien gewenst.
Arbolite
Arbolite is een innovatief materiaal voor ons land, hoewel het overal zou moeten worden gebruikt. De fabricage is gebaseerd op een mengsel van houtspaanders, cement en water. Ons land is rijk aan hout en zagerijen, waardoor goedkoop, duurzaam, warm en licht arboliet kan worden vervaardigd in bijna alle streken, behalve de steppe. Het probleem zit hem in de marketing - ondernemingen die gespecialiseerd zijn in de produktie van gas- en schuimblokken profiteren gewoon niet van de verspreiding van deze technologie.
U kunt thuis ook arboliet maken als u voor voldoende houtsnippers kunt zorgen. Maak geen arboliet van zaagsel, dit vermindert de kwaliteit aanzienlijk.
Afmetingen
De afmetingen van het toekomstige bad worden vooraf bepaald op basis van de grootte van het perceel, de financiële mogelijkheden en de voorkeuren van de eigenaars. Laten we beginnen met het minimum en dan in oplopende volgorde verder gaan.
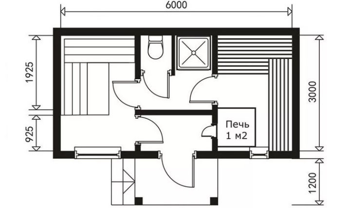
- Compacte mini sauna 2x2 m. De meest budgetvriendelijke constructie. De vorm van deze minibaden is vergelijkbaar met een doos. Ze zijn gemakkelijk te verwarmen, met een competente planning zullen ze volledig functioneel zijn, hoewel in dit geval de was- en stoomcabine in één compartiment zijn, en de kleedkamer in de gang - waar de oven is. U kunt een elektrische saunakachel plaatsen, dat bespaart veel ruimte. Dergelijke varianten worden vaak gebruikt als bijgebouwen bij het huis - in dit geval is er geen behoefte aan een kamer voor rust. Trouwens, het bad kan verrijdbaar zijn.
- Drie-bij-drie-meter sauna - een ruimere optie, hoewel het nog steeds klein is. De grootte laat echter wel een beetje planning toe. U kunt bijvoorbeeld de was- en stoomcabines combineren en er een comfortabele ontspanningsruimte van maken. Een andere optie is om een deel van de vestibule om te bouwen tot een doucheruimte.
- Structuur met 3x4 m - Een veelzijdigere structuur, waarbij de was- en stoomcabines gescheiden kunnen worden van de sauna.
- Structuur met 4 x 4 m. - Hier zijn de was- en stoombaden ruim en functioneel met een ruime ontspanningsruimte.
- Een sauna van 5 x 4 m en groter - is een complete badkamer met veel upgrade mogelijkheden. Met deze afmetingen kunt u een lettertype plaatsen, een zwembad inrichten, het complex in zones verdelen:
- zinken;
- stoombad;
- voorkamer;
- ontspanningsruimte;
- zwembad of badzone.
Bovendien kan, als de financiën het toelaten, de zolderverdieping worden verhoogd tot zolderhoogte, waar een logeerkamer kan worden ingericht. De grootte van de baden wordt door niemand beperkt - van mini-bouwsels, tot grote gebouwen, tot complete complexen met een zwembad en een tweede licht.
Projectvarianten
U kunt een sauna inrichten zoals u wilt, maar de speelruimte wordt beperkt door de grootte en de verplichte ruimtes. Maar zelfs als de totale oppervlakte beperkt is, kan het gebouw een veranda of terras hebben, met een ontspanningsruimte, een doopvont, een buitenzwembad voor gebruik in de zomer.
Eenvoudig
De eenvoudigste, minst dure van alle opties voor kleinere gebouwen. Het is echter heel functioneel en biedt de eigenaars alle nodige faciliteiten. Het kleine bad heeft een wasruimte, een stoombad en een ontspanningsruimte.
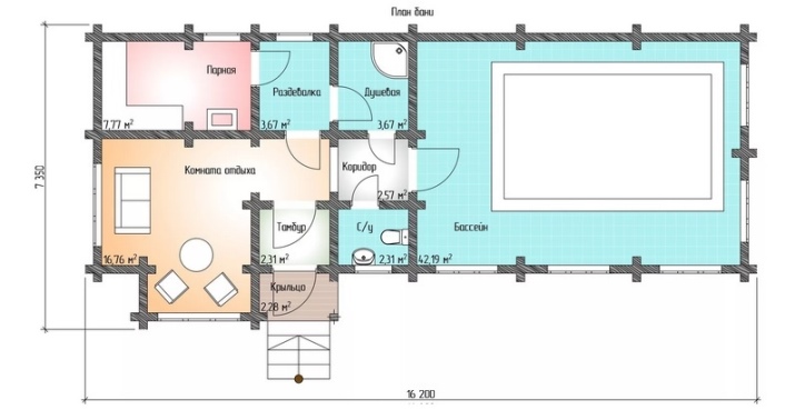
Met een zwembad
In essentie biedt dit project een compleet complex, waarin de grote groepen mensen hun tijd in comfort kunnen doorbrengen. De indeling bevat veel kamers, maar ook mogelijkheden:
- stoombad, wasruimte, zwembad en douche;
- De voorkamer, de kleedkamer en de ontspanningsruimte;
- Bovendien beschikt het complex over bijgebouwen zoals een brandhoutschuur, een badkamer en een stookruimte.
Het zwembad kan zowel binnen als buiten of in een bijgebouw worden geplaatst.
Met douche
Met een douche of douchecabine in het bad kunt u ruimte besparen en vermijdt u de installatie van banken en banken in de wasruimte. Met de regelaars voor warm en koud water kunt u een sauna induiken zonder een nabijgelegen natuurlijk waterlichaam en genieten van een koele duik.
Met toilet
Het project voorziet in een ruime recreatieruimte met een gootsteen en een plaats om te koken. Het is comfortabel om de sauna voor langere periodes te gebruiken, vooral tijdens het vochtige herfstseizoen, wanneer u niet naar buiten wilt voor airconditioning.
Bouwfasen
Het is tijd om de volgorde van de bouwfasen te verduidelijken voor degenen die een sauna met hun eigen handen gaan bouwen, zonder professionele bouwers in te schakelen.
- Markeren. Dit is het eerste wat in het veld gedaan wordt, bij wijze van spreken. De grond wordt op een realistische schaal afgetekend - eenvoudig gezegd, de contour van het toekomstige gebouw wordt op de grond getekend. Nauwkeurige afmetingen zijn een van de garanties voor de kwaliteit van het toekomstige gebouw.
- Stichting - Het kan strip of stapel zijn. Voor striptype is nog enige onnauwkeurigheid in de opmaak toegestaan, maar stapel zal het niet tolereren. De indeling hangt grotendeels af van het type fundering, en het type - van de samenstelling van de grond en het gewicht van het gebouw, maar aangezien de paalfundering wordt gebruikt om zelfs grote woongebouwen te bouwen, is zij in staat het gewicht van het saunagebouw te dragen.
- Oprichten van muren. Deze fase is afhankelijk van de bouwmaterialen: als u bakstenen, blokken of straatklinkers gebruikt, wordt de fundering met het bouwniveau genivelleerd en wordt dakbedekking dubbel gestapeld op de cement-zandmortel. De stenen worden vanuit de hoeken gelegd.
- Vloer. In geval van frame techniek, breng isolatie aan en leg een vloerplaat. In andere gevallen is de installatie van de vloer gecompliceerder. Je moet balken en een ondervloer plaatsen. Daarna worden waterdichting, thermische isolatie en vervolgens beplanking aangebracht. In landhuizen, waar geen tijd is om de sauna grondig te drogen, verdient een betonnen vloer gevolgd door betegeling de voorkeur. Om het comfortabel te maken, moeten er houten latten op worden gelegd.
- Het dak. De constructie moet betrouwbaar zijn, met gebruikmaking van waterdichting, thermische isolatie en kwaliteitsdakbedekking. Het type dakbedekking hangt grotendeels af van de locatie en de technische parameters van het gebouw. Op een plaats op het platteland, omringd door bomen, kan een hoog zadeldak worden opgetrokken. In gebieden waar het permanent hard waait, kan bijvoorbeeld als minimale dakhelling een trapdakhelling worden gekozen. Voor een klein badhuis, met een lage sneeuwbelasting, is een dak met één dakhelling aanvaardbaar.
- Binnen en buiten afwerking. De beste tijd om dit te doen is nadat het dak klaar is. Dit zal ervoor zorgen dat de afwerkingsmaterialen beschermd zijn tegen neerslag. Bij de keuze van de juiste afwerking moet rekening worden gehouden met de hoge vochtigheidsgraad en de hoge temperatuur. Kies linde, espen of eik voor de stoomkamer. Voor andere kamers is dennenhout ideaal omdat het een subtiel harsaroma verspreidt en fytonciden die de atmosfeer desinfecteren en u een behaaglijk gevoel geven. De afwerking voor een houten of bakstenen constructie is hetzelfde - een houten frame wordt aan de muur bevestigd en vervolgens met gevelbekleding bekleed. Er moet warmtereflecterend foliemateriaal onder de spanten in de stoomcabine worden aangebracht. Voor de buitenafwerking van de wanden van een badhuis wordt gebruik gemaakt van beschot, regelwerk of blokhut.
Een grote sauna heeft geforceerde ventilatie nodig, terwijl een klein gebouw gemakkelijk kan worden bediend met een fornuis.
Kamerindeling
De indeling van de ruimtes in een sauna kan creatief zijn en soms bijna zonder opties, zoals in het geval van de bouw van een minibad. Sommige mensen beginnen met het plannen van de binnenruimte na de bouw van het bouwwerk, maar het is toch beter om dit proces ruim van tevoren uit te voeren, voordat de bouw begint. Deze aanpak zal het gehele complex, ook al is het minimaal, harmonieus maken, met een zo groot mogelijke gezelligheid. Bovendien moet tijdens de bouw rekening worden gehouden met een aantal details, die van essentieel belang zijn om zich later comfortabel te voelen.
- Bij het ontwerpen van een sauna moet rekening worden gehouden met de oppervlakte, de configuratie en de grootte van het terrein - het is goed als de structuur niet alleen binnen maar ook buiten mooi zal zijn, op de meest gunstige plaats voor de sauna.
- Het belangrijkste werk wordt gedaan bij het plannen van de binnenruimte - een goed doordachte indeling van de kamers zal helpen om het bad comfortabel en functioneel te maken. Als de ruimte het toelaat, zal de ontspanningsruimte de grootste ruimte hebben. Een tafel, stoelen, een bank en goede verlichting zijn ideaal om samen te komen met een groep vrienden of familieleden uit te nodigen. In een beperkte ruimte, moet je de voorkamer, de kleedkamer en de oven combineren.
- Het stoombad, dat het hart van de sauna vormt, krijgt niet minder aandacht. Hij moet in verbinding staan met de wasruimte, maar moet ook een luchtdichte deur hebben om de temperatuur hoog te houden.
- De hal of voorkamer is de kleinste kamer, maar als de ruimte het toelaat, moet ze groot genoeg zijn om brandhout op te slaan, het fornuis voor te verwarmen en zich uit te kleden.
Tijdens het werk aan het project, het maken van een schema van indeling van kamers, is het noodzakelijk om van tevoren de hoeveelheid verbruiksgoederen te berekenen voor afwerking, indeling, financiële kosten voor sanitaire apparatuur - oven, wassers, emmers, douchecabine, als die is gepland, kranen en andere dingen die zullen moeten worden gekocht voor het bad.
Dit zal u helpen het bouwbudget en de functionele inhoud van het complex van tevoren te berekenen en te plannen.
Interieur voorbeelden
Een prachtig badend ensemble in een landhuis. Het kost veel geld om te bouwen, maar als de eigenaar het zich kan veroorloven, heeft hij een wellness-complex in het klein tot zijn beschikking. De muren zijn gemaakt van natuurlijk hout, de stoomcabine is gemaakt van lindebomen met helende eigenschappen. In de wasruimte zijn de muren van de douche en het zwembad betegeld met gepolijste steen.
De cederhouten planken zullen jarenlang een subtiel harsaroma afgeven en een weldadig microklimaat scheppen. - Uitgestoten etherische oliën desinfecteren de lucht en voorkomen zo de verspreiding van ziekteverwekkende microflora. De vloer in de doucheruimte is betegeld met stenen tegels, wat uitstekend is voor het masseren van uw voeten, waar zich veel zenuwuiteinden bevinden.
Een luxueus badhuis, opgetrokken uit boomstammen, met een al even luxueuze Japanse furako. Het gebouw doet denken aan een sprookjesachtig herenhuis, met houten vloeren die van het badhuis naar de met stenen geplaveide binnenplaats leiden en houten bordestrappen, die een verbluffend gevoel van comfort geven aan blote voeten.
De veelzijdige vloer zorgt voor een therapeutische massage, want het is niet zonder reden dat het Aziatische volk steenmassage op prijs heeft gesteld, en de genezende kracht van het edele hout is bij ons volk al sinds de oudheid bekend. Een Japanse ton kan op elk moment van het jaar worden gebruikt, omdat hij zijn eigen oven heeft. In het saunacomplex is de ontspanningsruimte voorzien van moderne technologie en meubilair.
Ongebruikelijke originele cederhouten sauna van de wilde blokhut met een terras aan de oever van de Siberische beek. Vanaf het platform, omheind met leuningen, kunt u via een schuine trap afdalen naar het water, zodat u na de warme stoomcabine een duik kunt nemen en boven kunt komen zonder de grond te raken. De sauna zelf is klein, maar verborgen en beschut, het lonkt met de geest van het bos, het fabelachtige uitzicht, de betoverende samensmelting met de omringende natuur.
De dikke boomstammen houden de warmte lang vast en de geringe afmetingen van de structuur zorgen voor een snelle opwarming. Het dak is bedekt met larikshout, dat perfect past bij het natuurlijke concept van het gebouw.
De volgende video laat u zien hoe u met uw eigen handen een sauna kunt bouwen.
