Veranda voor het badhuis: ontwerp en bouw
Een veranda is een noodzakelijk attribuut van bijna elk bouwwerk, of het nu een sauna of een huis is. In elk geval moet de constructie veilig en solide, duurzaam en mooi zijn. Veranda's moeten niet alleen harmonieus opgaan in de totale architectonische compositie, maar ook gebouwd worden volgens speciale technologieën, rekening houdend met regels en voorschriften. De keuze van het materiaal, het ontwerp, de afmetingen en de vormgeving vereist kennis van bepaalde zaken.
Structurele kenmerken
Een saunaportiek wordt meestal voor de ingang geplaatst, maar er zijn uitzonderingen. In ieder geval biedt deze constructie een comfortabele toegang tot het terras of rechtstreeks tot het gebouw. Het eindproduct heeft zijn eigen kenmerken en parameters, waarmee rekening moet worden gehouden.
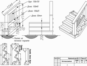
- Aantal stappen. Aangenomen wordt dat het optimale aantal oneven is, omdat het vanuit fysiologisch oogpunt voor een persoon handiger is de stap te beëindigen met dezelfde voet waarmee hij begon te lopen.
- Hoek, hoogte, diepte. Hier hangt veel af van het reeds bestaande gebouw en de grootte ervan. De optimale waarden voor de hoogte zijn niet minder dan 12 en niet meer dan 20 cm, de comfortabele diepte is ongeveer 30 cm, de hoek mag niet meer dan 20 graden bedragen.
- Breedte. Deze moet idealiter plaats bieden aan twee personen, de een afdalend en de ander opstijgend, d.w.z. ongeveer een meter. Een smallere veranda kan ongemak veroorzaken, maar een bredere veranda is prima.
- De grootte van de landing. In de eerste plaats moet het bordes ten minste anderhalf keer breder zijn dan de deur. Een kleine hoek van het platform zorgt ervoor dat het neerslagwater wegloopt en niet stagneert.
Rassen
Een goed ontworpen veranda zorgt voor een comfortabel gebruik. Er zijn heel wat varianten van design:
- portiek-veranda, open en gesloten;
- versie met en zonder luifel, met metalen luifel;
- met één of twee trappen;
- volledig gesloten constructie;
- de zijtrap, meestal een eenvoudige trap.
Varianten van de mix met een functionele veranda of een open veranda zijn erg populair. Eenvoudige stappen zijn ook in trek. De keuze van het type veranda hangt af van de architectonische structuur van het badhuis zelf, de stijl ervan, de financiële mogelijkheden en de smaak. Een houten trap, bijvoorbeeld, zal goed werken met een houten cabana. Voordat u het ontwerp opstelt, moet u beslissen over het materiaal.
Keuze van het materiaal
De meest logische manier om het materiaal voor een veranda te kiezen, is zich te richten op de ondergrond waaruit het saunahuis wordt gebouwd.
- Hout. U kunt uw veranda bouwen van planken, boomstammen en timmerhout. Dit is het meest voorkomende materiaal, vooral omdat het badhuis meestal van hout is gebouwd. U kunt de treden op verschillende manieren bevestigen, of behandelen - met vernis of beits. Een houten veranda kan ook worden geverfd of onaangeroerd worden gelaten. Een houten constructie is geen probleem om zelf te maken.
- Beton. Het is een zeer duurzame constructie, duurzaam, betrouwbaar en praktisch in termen van financiële kosten. Geschikt voor sauna's van blok- en metselwerk, maar vereist een stevige fundering om de veranda echt sterk te maken. Het wordt gemaakt van een frame dat met beton wordt gegoten.
- Baksteen. Een dure constructie in vergelijking met de vorige, maar dit materiaal wordt het vaakst gecombineerd met andere, b.v. beton, metaal, hout. Baksteen wordt voornamelijk gebruikt voor decoratie of zijmuren.
- Metaal. Lasvaardigheid is hier vereist, anders kan geen raamwerk worden gemaakt. De treden kunnen van metaal of hout zijn. Meestal gemonteerd op een betonnen sokkel. Roestvrij staal is het meest populaire metaalmateriaal. Een metalen veranda kan worden ondersteund, ondersteund-gehangen of scharnierend. Het scharnierende ontwerp is het meest populair. Hoewel metaal zelden wordt gebruikt voor een saunadek, is het een betrouwbare optie en kan het worden gereconstrueerd en gecombineerd. Het is niet mogelijk om zelf een veranda te bouwen zonder bepaalde vaardigheden.
Bouwtechnologie
Een veranda met je eigen handen maken is heel realistisch. Om te beginnen moet u beslissen over het materiaal, de ontwerpen doordenken, de afmetingen berekenen. Wanneer u de hoogte van de kelder berekent, moet u rekening houden met een krimpreserve van ten minste 3 cm.
Om een houten veranda te bouwen, gebruik het volgende algoritme:
- 2 balken worden aan de wand van het saunahuis bevestigd;
- de steunpalen zijn verzonken, de afstand tussen hen is gelijk aan de grootte van de portiek overloop;
- het bovenste frame wordt aan de ene kant aan de steunen en aan de andere kant aan het hout bevestigd;
- waar de onderste trede komt, wordt een betonnen plaat gestort; van tevoren wordt een kuil van ongeveer 35 cm diep gemaakt;
- nu kunt u de steunen en langsliggers met de steunbalken maken;
- Deze worden aan de ene kant aan het beton vastgespijkerd en aan de andere kant aan de zijsteunen vastgespijkerd;
- het frame wordt in elkaar gezet; de balusters worden op metalen spijkers aan de treden bevestigd; de leuning wordt met bouten vastgezet;
- het frame voor de overhang wordt in elkaar gezet en de gordingen worden gevormd;
- De luifel is beplankt en bevestigd aan de saunawand;
- De afwerking van een veranda omvat het verwerken en schilderen met een vernis, email, olieverf.
Betonnen portiek productie algoritme:
- De fundering wordt in een gat van 40 cm diep gegoten, waarbij de afmetingen van het gat iets groter zijn dan de afmeting van de toekomstige veranda;
- Leg steenslag ongeveer half zo diep op de bodem en stamp het aan;
- Langs de rand wordt een bekisting geplaatst;
- Wapeningsstaven worden in de bodem aangebracht en de horizontale deuvels worden daaraan bevestigd;
- Het optimale materiaal om de wapening te binden is een zacht type draad;
- meng 5 delen steenslag, de helft zand en een deel cement, meng en roer;
- Giet het mengsel erin, dek het af met plasticfolie en laat het hard worden, af en toe bevochtigen;
- schuur de ruimte voor de tweede trede en maak een kleinere bekisting; vorm alle treden op dezelfde manier, eindigend op 7 cm van de deur.
Het is niet aan te raden een betonnen veranda rechtop te bouwen, anders kan deze in de winter de deur blokkeren, omdat lage temperaturen het volume doen toenemen. De randen kunnen worden vastgezet met metalen hoeken voor de stevigheid, de leuningen worden gevormd van ijzer of baksteen, maar het is beter om hout te gebruiken voor de leuningen.
Overweeg het volgende bij het vormen van een metalen veranda:
- maak eerst een tekening van het platform, de treden, de overhang, de leuning met alle afmetingen;
- het platform mag niet gelijk liggen met de deur, de minimale tussenruimte is 3 cm;
- Laswerkzaamheden vereisen kennis van de technische veiligheid, de stroomsterkte moet worden gekozen in overeenstemming met de dikte van het metaal, lassen moeten voldoen aan de normen;
- een speciaal masker en dikke kleding en canvas handschoenen moeten worden gedragen;
- speciaal gereedschap voor metaalbewerking is vereist
De vervaardiging van een metalen portaal van geprofileerde pijp bestaat uit de volgende stappen.
- Stichting. Boorde 4 gaten groter dan de steunen, 2 thuis, 2 - aan het begin van de veranda. Op de bodem egaliseren we grind en zand, plaatsen de steunen, zetten ze vast met rongen, storten beton.
- Maak de steunen en het frame. Verbind de geprofileerde buizen door booglassen in de onderste positie, de naden kunnen verschillend zijn. Alle elementen moeten stevig met de buizen verbonden zijn. De delen worden één voor één gelast en de geometrie moet tijdens het proces worden gecontroleerd. De trap moet op een betonnen plaat worden geplaatst, anders zal de constructie doorzakken. Het kussen moet in de breedte groter zijn dan de trap. Voor de uiteinden van de langsliggers worden ten minste 30 cm diepe kuilen gemaakt. In de put wordt een wapeningsnet aangebracht, dat op steunen wordt gevormd. Giet een betonmengsel in de put en slijp het na het harden.
- Het vormen van de boogpees. Het dragende deel van het portiek is in feite een ligger met een helling, waarop de treden zijn bevestigd. De langsligger is gemaakt van een rechthoekig profiel. De bovenkant is aan het platform gelast, de onderkant rust op beton. Er zijn twee stutten nodig, markeer daarop de toekomstige stappen.
- Zet de treden in elkaar. Volgens de markeringen moet u metalen hoeken - steunen lassen, de trap erop zetten en in elkaar zetten. Trappen kunnen met hout bekleed worden voor de veiligheid.
- Traliewerk. De leuningstaanders worden aan de leuningen geschroefd of gelast en de uiteinden worden afgezaagd en ontbraamd. Leuningen kunnen worden gemaakt van ronde buis, vierkante profielen of hout. Bevestig de rail aan de palen, boor gaten in de rail. De leuning wordt op de lamel geplaatst en vastgeschroefd met zelftappende schroeven.
- Het schilderwerk en het maken van de overhang kan naar wens worden gedaan.
Mooie voorbeelden
Idealiter zijn de materialen voor de veranda en de sauna identiek.
Een houten veranda met een klein, open terras is een praktische en mooie oplossing.
Een betonnen veranda kan worden bekleed met elk gewenst materiaal.
De log veranda op een betonnen ondergrond is een stabiele en solide constructie.
Leer in de volgende video hoe u een veranda voor uw sauna bouwt.
