Alles over houten baden
Amateurs en zelfs specialisten in de bouw discussiëren over de mate waarin het mogelijk is om bielzenmateriaal te gebruiken voor volwaardige bouwprojecten. Maar zijn al die chemische behandelingen niet schadelijk voor de mens? Toch worden er nog steeds ligbaden gebouwd; bovendien zijn ze vrij algemeen. Voordat u zo'n sauna gaat bouwen, moet u de kenmerken, voordelen en nadelen ervan beoordelen.
Voor- en nadelen
Veel mensen vragen zich af of het schadelijk is om een bad uit bielzen te bouwen en hoe in dit geval het materiaal te kiezen. Deskundigen zijn van mening dat onbehandelde grondstof in deze situatie de beste keuze is. Groot hout wordt gevormd uit verschillende houtsoorten, lariks, spar en den, en is bij uitstek geschikt voor de bouw.
Onbehandelde slapers zijn absoluut veilig voor het lichaam, maar ze kunnen niet bepaald goedkoop worden genoemd. De kosten van onbehandelde dwarsliggers zullen bijna gelijk zijn aan een boomstam in een traditionele uitvoering.
Wat behandelde slapers betreft, liggen de zaken ingewikkelder. Beschadigde dwarsliggers mogen niet worden gebruikt, balken zonder scheuren, spaanders, rotzones zijn geschikt voor de bouw. Bouw niet met dwarsliggers die al meer dan 10 jaar in gebruik zijn. Voordat u bielzen koopt, moet u er met hamers op tikken om gebreken op te sporen die aan het zicht zijn onttrokken. Een gedempt geluid is een reden tot voorzichtigheid. Lariks en spar zijn de beste materialen; grenen wordt het best gebruikt voor andere soorten bouw, zoals schuren.
Bielzen zijn geïmpregneerd met een mengsel van creosoot en fenol, de samenstelling dringt door tot in de diepte van de boom, respectievelijk, de giftigheid blijft na vele jaren in de bielzen aanwezig. Wat spar en lariks betreft, deze variëteiten hebben een laag absorptievermogen, zodat zij de voorkeur genieten. Hoe minder geïmpregneerd en hoe langer het materiaal is, hoe duurder het is.
De best behandelde grondstoffen zijn die welke niet langer dan 6 jaar in gebruik zijn, zonder scheuren, en waarbij de impregnering alleen aan de oppervlakte is aangebracht.
De volgende voordelen van de grondstof voor dwarsliggers kunnen worden belicht:
- Behandelde dwarsliggers zijn zeer goedkoop, vooral als ze al meer dan 7 jaar in gebruik zijn;
- de levensduur van dwarsliggers is zeer lang, ten minste 20 jaar;
- dwarsliggers rotten niet, ze herbergen geen bacteriën, insecten of knaagdieren.
Er zijn ook belangrijke nadelen:
- Grondstoffen van slechte kwaliteit geven bij verhitting giftige stoffen en kankerverwekkende stoffen af;
- De brandwerendheid van het materiaal is laag; impregnatie bij brand is niet mogelijk, en speciale isolatie maakt de constructie duurder.
Projecten
Er zijn heel wat opties voor ontwerpen voor een slaapsauna, en de keuze hangt meestal af van budget of persoonlijke voorkeur. Er zijn twee soorten slaapbaden: budget en volwaardig.
- Begroting. Op de fundering worden dwarsbalken geplaatst, en de wanden van de kamer van kleine oppervlakte worden gevormd. De stoomkamer in deze versie is zo klein mogelijk, de tweede kamer is de voorkamer. In feite bestaat de hele sauna uit deze kamers, waartussen een oven is geïnstalleerd. Het is een eenvoudige constructie, vrij betrouwbaar, maar het zal niet gemakkelijk zijn het in de winter en gedurende lange tijd te verwarmen. Maar u kunt gewoon een douche nemen en even stomen zonder enig probleem.
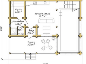
- Volwaardig. Een comfortabele slaapsauna kan ook worden gebouwd, het enige nadeel is de prijs, die hoger is dan de vorige optie. Het hangt allemaal af van het budget en de beschikbare ruimte. Naast het stoombad en het voorbad omvat een hoogwaardige sauna ook een wasruimte, een ontspanningsruimte en een badkamer. U kunt beschikken over een terras of veranda met een barbecueplaats, een zwembad. De grootte van de hoofdruimten is gebaseerd op het aantal personen dat regelmatig baadt. In de stoomcabine is ten minste 1,75 vierkante meter per persoon nodig en in de ontspanningsruimte anderhalf keer zoveel. Wat de wasruimte en de badkamer betreft, kunt u volstaan met een afzonderlijke kamer voor één persoon, aangezien de procedures daarin comfortabeler zijn zonder getuigen.
Hoe maak je het met je eigen handen?
Een badkuip kan met uw eigen handen worden gebouwd. De bouw van elke sauna, ook een slaapsauna, begint met het leggen van de fundering.
Een strokenfundering zal optimaal zijn voor dit soort constructie. Het is belangrijk dat de onderkant van de muren waterdicht wordt gemaakt:
- vorming van gaten, d.w.z. openingen in de betonstrook, om vocht af te voeren;
- de aanleg van de fundering geschiedt met de bijbehorende behandeling met waterafstotende middelen, b.v. een speciale mastiek;
- het is beter om de eerste dwarsliggers op de fundering te leggen zonder de behandelde laag te verwijderen.
Indien het perceel gelegen is op grond met een hoge grondwaterspiegel of indien het vaak overstroomd wordt door regenval, is het beter een paalfundering te gebruiken. De bielzenbak is vrij zwaar in vergelijking met een kaderbak, zodat het nodig is om steunen te gebruiken, die gemaakt zijn van halve bielzen. De dwarsliggers worden met draad gebonden en behandeld met hars, bitumen. Daarna worden ze in de uitgegraven kuilen geplaatst. Bind de dwarsliggers samen met dakbedekking.
Een belangrijke stap in het bouwproces is de keuze van het plaatmateriaal en de sortering ervan. De muren worden opgetrokken met balken van de hoogste kwaliteit, schoon en zonder onregelmatigheden. De dwarsliggers kunnen ook worden gebruikt voor bekleding, op dezelfde manier als planken. De overmatig behandelde dwarsliggers worden gebruikt voor het leggen van de basis, een lager type kroon.
Bielzenwanden worden op dezelfde manier gemonteerd als houten wanden; de kransen worden in 3 of 4 rijen verbonden met stalen beugels. De voegen worden met jute, vlas en mos gevoegd en kunnen bovendien met klei worden bedekt voor thermische isolatie. Hoeken worden gesneden volgens de halve-boom-methode, waarbij de tegenovergestelde richtingen elkaar afwisselen.
Als het gebouw van het compacte type is, worden de plafondbalken samen met het laatste paar kransen gevormd. De plaat zelf is gemaakt van schone balken, in 2 stukken gezaagd, die worden gebruikt om de plafonddoorsnede te knuppelen. Dakspanten worden onderaan gemaakt, ze worden samengevoegd, paarsgewijs omhoog gehesen, ze worden in de bovenste krans gesneden. De latten worden gevormd en opgevuld met dakbedekkingsvilt.
De sauna wordt in deze toestand de winter doorgebracht en pas het volgende jaar, wanneer hij gekrompen is, kan hij worden afgebouwd en voor het beoogde doel worden gebruikt. Vóór de afwerking worden de vloerdelen gelegd, de voeggedeelten ingepakt en afgeschuind, en hiervoor wordt de pakking gebruikt. Vervolgens worden de raam- en deuropeningen gevormd, de ramen voorzien van glas en de deuren van scharnieren. Na al dit werk kan het interieur worden afgewerkt. Plafondplaten worden afgezet met gelijktijdige aanleg van een hydro- en thermische isolatielaag.
Voor de buitenafwerking is het nog steeds het beste om de balken te coaten met antiseptische en brandwerende oplossingen. Om de gevel te bekleden wordt verf, beits of vernis gebruikt. Voor gevelbekleding, gebruik siding, bekledingen, huis en andere materialen.
Traditioneel wordt de binneninrichting van het bad gemaakt van hout, met planken van esdoorn, linde en espen. Gebruik geen naaldhoutplaten, aangezien die schadelijke harsen afgeven. De plank moet volkomen vlak zijn en de bevestigingspunten moeten verborgen zijn, anders kunt u zich eraan branden. Eurobekledingen zijn uitstekend geschikt voor binnenafwerking, ze zijn zeer eenvoudig te installeren zonder afstelling, de bevestiging is het eenvoudigst, omdat de latten al groeven en verbindingen hebben, er is zeer weinig metaal. Er moet een isolatielaag worden aangebracht - dampscherm, perkament, folie, minerale wol in groeven, en wol bovenop.
Alvorens te beëindigen is het raadzaam de sauna onder water te zetten en dit meer dan eens te doen om eventuele chemische resten en verbindingen van de slapers los te maken.
Mooie voorbeelden
- In feite kan een ligbad worden afgewerkt met elk materiaal dat u maar wilt, zoals blokhuis.
- Een ligbad kan er heel sfeervol en interessant uitzien.
- De sauna kan worden bekleed met gladde platen, vooral als hij klein is.
- Een kleine veranda kan een kamer vervangen om te loungen in de warmere maanden.
- Een mooie nette structuur in een klassieke stijl.
Bekijk de volgende video voor een overzicht van een slaapsauna.
