お風呂の天井の高さのすべて
来場者の身体的・心理的な快適さを左右する要素のひとつが、天井の高さです。天井が低い部屋では、人は居心地が悪く、窮屈に感じるものです。非常に高い位置にあるサウナでは、暖かい空気が天井の下にたまり、部屋の下部が冷えることになります。その結果、入浴客に不快感や不便さを与えることになる。サウナの天井の最適な高さは?どのように算出するのですか?
何に依存するのか?
サウナやスチームルームの天井高は、厳密に規定された値ではありません。専門家は通常、設計段階で、サウナ建設に割り当てられた予算、デザインの特徴、お客様の好みに基づいて計算します。
風呂の天井の高さは、建物の基礎、壁、屋根の配置に使われる建材の種類に実質的に左右されることはない。 このパラメータに影響を与える可能性のあるすべての要因(断熱材、防湿材、仕上げ材の厚さ、サウナの収縮率)は、建設プロジェクトの準備中に考慮されます。
スチームルーム、洗い場、リラクゼーションルームの天井の高さには、厳密な基準はありません。
ただし、この値も恣意的なものではなく、建物全体の寸法に直接的、間接的に影響を与えるさまざまな要素を考慮して算出されている。 具体的には、庭の広さや面積、風呂の施工や仕上げに使用する材料の特性(厚み、断熱性)などが挙げられる。
昔のロシアの村には、平均1.7〜1.8メートルの高さの小さな浴場がありました。 当時の建物の特徴は、まず第一に、浴室のサービス、暖房、照明、機能維持などを総合的に行う必要があったため、最大限の効率性が求められたことだ。低い建物を作ることで運用が大幅に簡素化され、メンテナンスにかかるコストも削減されました。
最近の建材は比較的安価なものが多く、天井の高さを自由に設定することが可能です。 建物の寸法を計算する際、専門家は費用対効果だけでなく、人間工学や安全性の要件も考慮します。
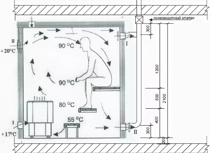
サウナの天井の高さは、人間の平均身長(約170〜175cm)を一つの目安にしています。床から天井までの高さが2.1〜2.5mの室内では、この身長の人でも十分にくつろぐことができます。
スチームルームの棚のレイアウトや長さは、サウナの天井の高さにも影響します。 例えば、サウナに数段の棚がある場合、一番上の棚から天井までの距離は、入浴者が背筋を伸ばしてゆったりと座れるような大きさが必要です。
どうあるべきか?
サウナの天井の高さは、暖房の速さだけでなく、室内の微気候、空気の循環の均一性、火災時の安全性などにも左右されます。最近のサウナでは、高さが2.1〜2.5mになるのが普通です。 あまり一般的ではありませんが、部屋の床から天井までの距離が2.6〜3メートルのサウナもあります。
サウナの部屋は、中にいる人が天井や照明器具に触れることなく上に伸ばせるような設計にする。
この基準は、ロシアの古典的なサウナ、フィンランドのサウナ、トルコのハマムなどの計画や建設に通常使用されています。
ミニマム
サウナ内の天井の高さは2.1m以上。これだけの天井高があれば、人は(よほど背の高い人を除いて)居心地の悪さを感じることはないでしょう。また、ローバスのメンテナンス(加熱、仕上げ、加熱)には、それほど手間や時間を要しません。 しかし、これより低い天井は、以下の理由で推奨されません。
- 天井高を下げると、部屋を広げる必要があり、結果的に維持費(照明、暖房)が高くなります。
- 天井の低い部屋では、快適で人間工学に基づいた照明システムを構成することがより困難になります。
- 湯気が部屋の上部に集中することを考えると、天井の低いスチームルームでは、入浴者の健康状態(意識を失うまで)を著しく悪化させる可能性がある。
注目すべきは 通常の入浴には、天井高を抑えたサウナが適しています。 このような構造では、ほうきで蒸し風呂をすることは困難である。また、天井の低いスチームルームでは、専門家の間ではほうきの使用は不適切とされています。限られたスペースでは、スチーマーが泡立て器でストロークしすぎることで、蒸気雲が分散され、サウナ内の空気が冷やされてしまうのです。
標準
屋根の高さは2.3~2.4mが標準とされています。
背の低い人も、平均より高い人(175〜178cm程度)も、快適に過ごせる。
しかし、この天井の高さでは、短髪のお客様でも泡立て器では届きにくいことがあります。
最大
サウナルームの推奨最大天井高は2.5~3.1mです。この高さの部屋は、多層階で階段状のサウナ台がある大きなビルに多い。
念頭に置くこと 天井が非常に高い部屋では、入浴者の快適性や健康状態を左右する最適な微気候を作り出すことが非常に困難です。 また、これらの部屋は暖まるまでに時間がかかるため、エネルギーコスト(ストーブの燃料、電気代)が大幅に増加します。
また、ハイドロ、スチーム、高い部屋の断熱材などの配置には、大きなコストがかかります。 しかし、天井の高いお風呂の場合、スチームルームに段差のある棚を何段も並べることができるのは、紛れもない利点です。これにより、すべての入浴者がサウナ内で好きな高さに座ることができ、上部が最も暑く、下部が最も涼しくなります。
計算方法は?
サウナルームの天井高は、建物の設計段階で計算されます。この計算では、建物の種類(軽量鉄骨、無垢材、ガスブロック、レンガ)、関連する断熱材の種類、蒸気遮断材、防水材を考慮します。
さらに 床と天井の距離を計算する際には、サウナ内の各部屋の機能を考慮する必要があります。 控室、リラックスルーム、スチームルーム、洗い場の天井高さは同じではありません。
洗面(シャワー)室、リラックスルーム、控室の最適な天井高は2.4〜2.7mです。最大値は3.1~3.5mとすることができる。
この部屋の床面は、サウナの床から10センチメートル下にする必要があります。これにより、ドアを開けたときに暖房されたサウナに冷気が入り込むのを防ぐことができます。
するためです。 泡立て器を使うロシアの古典的な浴場の最適な天井の高さを計算するには、腕を高く上げた人の身長に50〜70センチを足す必要があります。 この場合の人間の身長は、上げた手の指先から足先までで数える。中箒の長さを考慮して計算したサウナの高さに、50〜70cmの距離をプラスします。
サウナ室の設計で多段棚を設置する場合、天井から最上段の棚までの距離が1.1m以上必要であることに注意してください。この要件は、サウナ室またはサウナの建設および家具に関する建築規則に規定されています。
フィンランドのサウナには通常、2~3段の棚があり、それぞれの高さは約50cmです。 つまり、棚が2つあるスチームルームの場合、棚の一番上から天井までの距離1.1mを考慮すると、少なくとも2.1mの高さが必要ということになります。
サウナを設計する場合、部屋の天井の高さは、計画寸法と建物の構造から計算されます。
なお、建物の部屋の高さは、影響を受けます。
- 天井の断熱層、蒸気層、防水層の厚さ。
- 天井の化粧板や床材などの厚み。
- 床の高さ(スチームルームでは、他の部屋より10~20センチメートル高くする必要があります)。
ログハウスや木材を使ったロシアのお風呂の天井の高さを計算するときは、構造の収縮も考慮に入れてください。専門家によると、ログハウスの収縮は5年から10年程度続くという。木材の収縮により、建物の元の高さの4〜10%が失われる可能性があります。つまり、縮む前のサウナの高さが2.5mだった場合、木材が縮んだ後は少なくとも0.5mは低くなる可能性があるということです。従って、建物の部屋の天井の高さも同じだけ下がります。
サウナハウスの天井の高さ - 下記参照。
