お風呂の棚の高さのすべて
フィンランド式サウナ、トルコ式風呂、エジプト式ラスール、ローマ式テルメ、トルコ式ハマム、モロッコ式風呂など、すべての風呂に座席を設けることが義務付けられています。昔、ロシアの銭湯は「モウニャ」「ブラズニャ」「ソープイラ」と呼ばれていたことを知る人は少ないだろう。当初、銭湯には一部屋しかなく、その中に暖房用のヒーターがあり、そのヒーターで浴槽と石を温めていた。棚やベンチもありました。
ロシア版のサウナ棚は、その上に自由に広がって寝られるように、幅が広く、長く作られている点が異なっていた。 棚は段になっており、高いほど高温のスチームが出るので、高さを変えることができます。天井裏の温度は100度に達し、ロシアの銭湯では蒸気が湿っていることを考慮すると、誰もが耐えられるわけではないので、上段は蒸気の強い人向けです。ほぼ沸騰状態です。
自宅の敷地内にサウナを設置する場合、棚の高さをどうすれば快適に過ごせるか、悩むオーナーも少なくないでしょう。今回は、このことについてお話ししましょう。
高さは何によって決まるのでしょうか?
棚の高さに基準はありません。すべてが個である。高さを決定するためには、いくつかの要素が考慮されます。室内空間の高さ:頭を曲げないよう、一番上の棚は天井に近づけすぎないようにします。下段の棚はベンチとして使用するため、あまり低すぎない方がよいでしょう。 サウナの種類や大きさはもちろん、オーナー個人の希望も重要です。
棚板は1枚が一番簡単ですが、広さが必要です。薪が熱くなりすぎると、大やけどをする恐れがあります。
そのためには落葉樹が最適です。
- リンデン
- アルダー
- アスペン
そのような種の入浴装置を作ることができない場合は、棚にシートなどを敷いておくとよいでしょう。要は火傷をしないようにすることです。
3段式が普及しているのは、ロシアではなく、フィンランドのサウナから伝わったものです。 プライベートバスの場合、スペースを取りすぎるため、受け入れられないこともあります。理想は2段です。
どれくらいの高さが必要ですか?
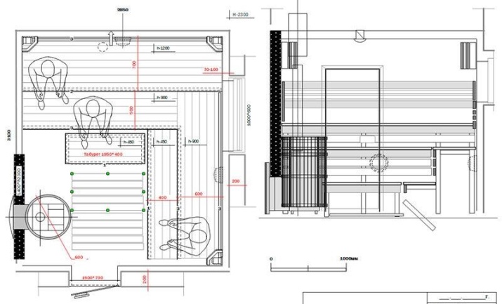
床からの高さは75〜90cmです。 高さの計算には、とても面白い方法があるんです。計算方法は、ストーブの上端の高さに10cmを足したものです。または、家族の中で一番背の高い人が使われます。立っていることが条件で、親指の中指骨から床までの距離を測定する。
この棚の高さは、蒸し器に便利です。この場合、彼は腕を直角に曲げるので、関節に最適なのです。 人は最も楽な姿勢で立つことができ、腕を引き上げたり、半身を曲げて立ったりする必要がありません。 パソコンデスクと同じように、肘を曲げる角度は90°とします。
これが棚の高さになります。高さ40〜45cmのフットスツールが必要になりそうです。棚に座ってベンチを下段にすれば、足元も快適です。ベンチの幅は、高さと同じくらい個性的です。基本は楽な横向き姿勢。
肥満の人はスリムな人よりも大きなスペースが必要です。 最小幅は70cmとされています。 平均的な幅は80〜90cmです。この幅があれば、腕が表面から垂れ下がることなく、快適に脇腹を休めることができます。制限はありません。幅が1m以上あっても大丈夫な人であれば、そのような棚を作ることも可能です。長さも、身長+20cmが最適な計算式です。
座れる2段の棚は、少し違ったアプローチが必要です。専門家のアドバイスによると、腰掛けの1段目は、サンラウンジャーと同じ高さにするのが良いそうです。2段目は、1段目の高さから45〜50cmの高さに上げています。 上段の棚から天井までの高さは100cmで、ゆったりと座って箒を使うことができ、幅は60cmで横になることも可能です。
また、棚の幅は板の幅に影響されます。一定のフォーマットに合わせるためには、板を切り落とさないことが必要です。板と板の間は、水が抜けるように隙間を空けておくことを忘れずに。板と板の間の幅は7~8mmが適当である。
サウナではほうきは使いません。汗をかくことが重要なので、この部屋では横になるのではなく、座ることが多いのです。 上層から天井までの高さが少なく、幅が狭い。この原理の棚は、2段と3段があります。標準的なソリューションを使用する場合、最初の段の高さは床から400mmで、連続する各段は前の段より400mm高くなります。
正座だけでなく、リクライニングしても快適に座れるような幅を選びました。最適な推奨値は400-600mmです。
長さは関係なく、すべてはサウナのサイズによります。 通常、棚板は自由な外周をすべて覆っています。
提案
サウナ棚の場合、ドライスチームモードで動作するため、厚さはあまり重要ではありません。来場者は座ったまま、全身で熱を受ける。 ロシアの浴場であれば、板は厚いほうがいい。デッキが熱を蓄え、放出することができるからだ。 落葉樹の板は、やけどするほどの温度にはならない。
ライム、アスペン、ポプラのいずれかを選ぶとよいでしょう。 今、積極的に広告を出し、少し前に我が国に登場したアバッシュを提供する。こちらはアフリカンオーク。その木は多孔質で、ほとんど熱を持たない。このため、蒸し風呂で火傷をすることはないが、この棚は不快なほど冷たく、ロシアの風呂の伝統にそぐわない。ベッドや針葉樹にかからないでください - 樹脂性のため。
湿気などの影響から木材を守るために、さまざまな組成のものがあります。 しかし、サウナ内で使用するのは最適な解決策とは言えません。人間が直接触れるものだから、木は生きていなくてはならない。もちろん、木はすぐにサンバーストの色を失いますが、それが経年変化を演出してくれるのです。
どうしても含浸させたい場合は、赤熱した亜麻仁油の使用をお勧めします。コーティングは定期的にリフレッシュする必要があります。部屋やベッドは、不快な臭いがしないよう、使用後に必ず清掃してください。臭いを消すのは非常に難しいでしょう。
棚板の掃除に化学薬品を使用すると、木の自然な香りが損なわれてしまいます。 正しい手順は、治療後すぐに、まだ温かいうちにタオルケットで棚を洗うことです。
お湯で洗い流し、布をしっかり押し付けて洗います。この手順で十分、棚をきれいに保つことができます。定期的に行うことが重要です。
サンラウンジャーの支持フレームは、あらゆる種類の木材を使用することができます。構造が安定していること。その方が早く部屋が暖まり、掃除の手間も省けるということで、棚と床の間を閉める方もいらっしゃいます。これは間違った判断だ。人間の体は蒸れると大量の汗をかきます。汗は下に滴り落ち、下に溜まっていきます。 棚を定期的に清掃しないと、不快な臭いが発生します。
棚板を取り付ける際、忘れてはならないのがクリアランスです。棚板と壁の間に空間が必要です。そうすることで、この部分の壁の腐敗を防ぐことができます。30〜50mm程度の隙間があれば十分です。ネジは下からしか付けられないはずです。 上からねじ込まないでください。熱を加えると、大やけどをする恐れがあります。
L」字型の配置は快適で、人間工学的に正当なものです。 一番長いもので、その上に座ったり寝転んだりできるようになります。幅が広くなり、高さも高くなります。サイドと下段は幅を狭くし、補助ベンチとして使用する予定です。これらは、小さなお子様のほうきや箒、おもちゃなどを置くことができます。
入浴の専門家のアドバイスを受けながら丁寧に作れば、単なる洗い場ではなく、健康増進のための本格的なサウナが完成するのです。 そんな銭湯は、清潔と健康、そして大きな喜びをもたらしてくれるでしょう。 昔からロシアでは、お風呂には魂が宿っていると信じられていました。浴場には浴場係が住み、家屋には家人が住んでいた。
スチームルームの棚の大きさについては、さらに詳しくご覧ください。
