Dimensioni della porta del bagno
Sempre più proprietari di case private decidono di avere una sauna nel loro terreno. È un luogo speciale per una persona russa, dove si può rilassare il corpo e l'anima. Per creare le giuste condizioni nella stanza, è necessario scegliere attentamente ogni elemento. Per mantenere una temperatura elevata e un'umidità ottimale, è necessario scegliere le porte giuste. Gli specialisti hanno compilato una lista di dimensioni standard che possono essere utilizzate quando si ordina o si realizza un'anta della porta da soli.
Requisiti generali
Quando si scelgono le misure non standard, gli acquirenti devono affrontare uno svantaggio significativo: il prezzo elevato. Questo perché tali modelli devono essere fatti su misura. L'opzione più semplice e pratica è quella di comprare un prodotto già pronto. Non ci sarà praticamente nessuna differenza tra una tale variante e una fatta su misura, tranne che per una caratteristica: le varianti pronte sono fatte tenendo conto delle dimensioni standard della porta della sauna.
Inoltre, ci sono gli stessi regolamenti per i due tipi di prodotto, che riguardano l'alta umidità e le alte temperature (tali condizioni sono caratteristiche dei bagni e delle saune).
Quando si acquista un prodotto di una marca nazionale, si dovrebbe fare riferimento allo standard GOST. Se avete optato per prodotti stranieri, dovete tener conto della griglia dimensionale utilizzata all'estero.
Gli specialisti con una vasta esperienza nell'arredamento della sauna raccomandano i seguenti parametri:
- altezza - 1650±150 millimetri;
- spessore - 85±15 millimetri;
- larghezza - 650±50 millimetri.
Quando si confrontano i parametri di cui sopra con le varianti standard che sono disponibili sul mercato russo, vale la pena notare la loro dimensione ridotta. Tali deviazioni dagli standard sono abbastanza comprensibili. Il compito principale delle porte per il bagno è quello di conservare il massimo calore, al fine di mantenere le condizioni necessarie all'interno della stanza. A questo proposito, si fanno piccole aperture di porte e finestre nell'edificio.
Ci sono anche alcune sfumature in questo caso. Una sauna è composta da diversi luoghi, ognuno con funzioni specifiche.
Le porte utilizzate per decorare l'ingresso di una sauna o di uno spogliatoio si differenziano per una serie di caratteristiche - materiale, larghezza, altezza, spessore e altri parametri.
I seguenti requisiti si applicano alle porte della sauna:
- alta sicurezza antincendio;
- una soglia con uno spazio vuoto;
- apertura facile;
- materiale forte e durevole;
- isolamento termico efficace;
- compatibilità ecologica delle materie prime utilizzate.
GOST
La prima cosa che i professionisti dicono è che i seguenti materiali possono essere installati all'interno dell'edificio
- vetro;
- plastica;
- legno.
L'ultima opzione è la più usata e popolare. Il materiale naturale ha una serie di vantaggi rispetto ad altre opzioni. Il legno è anche facile da lavorare e, se necessario, puoi cambiare tu stesso le dimensioni della foglia.
Nota: la maggior parte dei modelli standard in vetro non differiscono dai prodotti in legno.
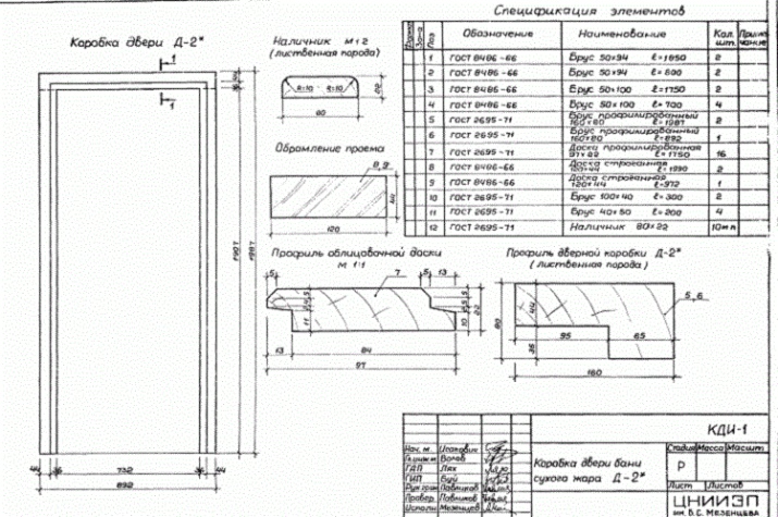
I prodotti per i locali pubblici e residenziali sono fabbricati secondo uno specifico standard nazionale. Questo è il documento normativo GOST 6629-88. Il disegno deve superare le dimensioni della foglia di 10 centimetri. Tale rapporto è considerato ottimale.
La risata allegata a questo articolo dimostra chiaramente il rapporto d'aspetto tenendo conto delle norme statali attuali. Gli esperti hanno anche compilato una tabella che include le norme europee. Queste informazioni vi aiuteranno a fare la scelta giusta.
Standard Euro
Secondo gli artigiani esperti, le dimensioni delle porte della sauna possono essere specificate in modo sicuro in 3 modi diversi
- Anta della porta senza telaio;
- considerando la cornice;
- le dimensioni del lucernario.
Nonostante le apparenti difficoltà, calcolare una qualsiasi delle opzioni è abbastanza facile. È necessario conoscere solo una taglia. La tabella allegata vi dirà la misura corretta.
Quale taglia dovrei scegliere?
Di regola, le dimensioni standard delle porte delle saune o dei bagni sono seguite da coloro che scelgono di osservare le tradizioni stabilite.
Solo un luogo, il bagno turco, ha dei requisiti speciali. È qui che vengono mantenute la temperatura e l'umidità massime.
Le porte della zona di lavaggio o dell'anticamera corrispondono ai modelli standard per la zona giorno (modelli interni ed esterni).
Per l'ingresso
Le porte d'ingresso meritano un'attenzione speciale. Per la porta che funge da ingresso alla sauna, si scelgono ante più robuste, più grandi e più pesanti. Differiscono notevolmente dai modelli interni in termini di dimensioni.
L'anta della porta scelta deve soddisfare i seguenti requisiti:
- resistenza all'usura e allo strappo;
- resistenza alle variazioni di temperatura;
- per essere sicuri al fine di prevenire qualsiasi tentativo di ingresso non autorizzato.
Sono disponibili varianti a due ante e a un'anta, che sono eccellenti come porta d'ingresso. Si usano anche modelli dotati di uno specchio di poppa. Questa è una finestra speciale che si trova sopra l'apertura. Il suo scopo principale è quello di far entrare la luce del sole. La maggior parte dei clienti opta per una finestra singola.
Dimensioni reali:
- altezza - questa cifra varia tra 2007 e 2370 millimetri;
- Larghezza - può variare da 910 a 1010 millimetri.
Lo spessore della porta dipende dal materiale utilizzato nella fabbricazione. Può essere di plastica, metallo, vetro, legno o una combinazione di diverse opzioni.
La maggior parte degli utenti dà la preferenza ai prodotti in legno. Questa opzione si fonderà armoniosamente con lo stile generale della stanza. Inoltre, il materiale naturale di alta qualità ha tutte le proprietà necessarie.
Per il bagno turco
Una temperatura e un'umidità elevate devono essere mantenute nella stanza del vapore durante il processo del bagno. Ogni variante ha i propri parametri e condizioni.
Russo
Il bagno russo è l'opzione più comune per la maggior parte dei russi. Quando si allestisce un bagno russo, è essenziale che non ci siano correnti d'aria nella stanza durante il processo di vaporizzazione. Per creare le condizioni più confortevoli possibili, la maggior parte dei costruttori opta per porte compatte con una soglia alta. Queste dimensioni trattengono il massimo del calore e del vapore umido all'interno della stanza.
Dimensioni minime della porta:
- altezza - 160 centimetri;
- larghezza - 60 centimetri;
- L'altezza della soglia varia da 15 a 20 centimetri.
Questi parametri sono ottimali. Quando si sceglie una versione prefabbricata, si raccomanda di farsi guidare da queste norme.
Le restanti stanze della sauna sono la zona relax, la sala di lavaggio e il bagno. La costruzione stessa e la disponibilità di stanze aggiuntive dipende dal progetto. Se si tratta di un grande stabilimento balneare per un gran numero di persone, comprenderà molte stanze. Altrimenti l'edificio può consistere in un bagno di vapore e una o due stanze dove gli ospiti si cambiano e si lavano. Le porte per le altre posizioni sono simili alle normali opzioni di interscambio in termini di specifiche e dimensioni.
Sauna finlandese
La struttura e il funzionamento di una sauna differiscono da quelli di uno stabilimento balneare e hanno alcune peculiarità. Un vigoroso scambio d'aria gioca qui un ruolo importante. Questo significa che la stanza deve essere ventilata. La temperatura dell'aria sale rapidamente a un livello confortevole attraverso la convezione della fonte di calore.
A questo scopo viene lasciato un piccolo spazio nella parte inferiore dell'apertura della porta. La larghezza ottimale è di circa 5 centimetri. In alcuni casi, la fessura viene creata per mezzo di un otturatore. Non c'è una soglia.
I produttori contemporanei offrono le seguenti opzioni dimensionali:
- 1700X700 mm;
- 600х1900 mm;
- 190x80 mm;
- 69x189 cm;
- 800x2000 mm e 800x1900 mm.
I modelli compatti sono ottimi per essere messi nella stanza del vapore. Altre opzioni possono essere scelte per il resto delle stanze o per l'ingresso alla sauna.
Le dimensioni dipendono dal materiale?
Si noti che le dimensioni delle porte dipendono dal materiale utilizzato nella costruzione. Le porte più sottili sono fatte di vetro speciale temperato. Le tecnologie innovative permettono di produrre pannelli di vetro resistenti alle alte temperature, ai danni meccanici e agli urti.
I prodotti più grandi sono le porte in legno, ma anche in questo caso, i produttori utilizzano standard dimensionali, tenendo conto delle peculiarità di ogni varietà.
Non dimenticare le dimensioni del telaio quando scegli la porta. Quando si costruisce una sauna secondo un disegno individuale, lo spessore dei pannelli può essere maggiore di quello previsto per una particolare stanza (rispetto alle dimensioni standard).
Per le migliori porte per sauna, vedi sotto.
