Minden a mennyezetről a fürdőházban
A külvárosi és számos városi lakás (magánlakás) felszerelésekor rendkívül fontos, hogy előre mindent tudjunk a fürdő mennyezetéről. Csak akkor lehet kizárni a hibákat, ha kitaláljuk, hogyan kell azt lépésről lépésre, saját kezűleg, egy útmutató alapján megfelelően elkészíteni. Érdemes előzetesen tisztázni, hogy miből készüljön a szerkezet, mi legyen a töltőanyag, és milyen legyen az álmennyezet szerkezete.
Építés és magasság
A szauna vagy gőzkamra mennyezetének kialakítása attól függ, hogy mi van fölötte. Az optimális egyszerűség akkor érhető el, ha a helyiség hideg padlással épül. Ebben az esetben egyszerűen nincs értelme bonyolult mennyezetet kialakítani. Ezért a legtöbben az időtálló padlós rendszert használják (de erről később). Lehetőség van azonban egy teljesebb, erőteljesebb "torta" megszervezésére, ha az alapvető finomságokat biztosítjuk.
Érdekes, hogy egyes esetekben egyáltalán nincs mennyezetszerkezet. Pontosabban, funkcióit a tető veszi át belülről. Ez a megközelítés akkor lehetséges, ha a tető egynyílású. Emellett minimális lejtéssel kell rendelkeznie. Természetesen a geometriai eltéréseket így sem lehet teljesen kiküszöbölni, de azok korlátozottak lesznek.
A szellőztetést és a gerendákat mindig jó előre át kell gondolni. Gyakran az ezekkel az elemekkel kapcsolatos hibák akadályozzák a jó eredmény elérését. A gőzkamrák szabványa, hogy magas mennyezettel rendelkezzenek, különben nehéz elérni a kényelmet. Ha lehetséges, az összes többi helyiségnek azonos színvonalúnak kell lennie, ami megkönnyíti a hangulatos légkör elérését, de nem szabad elfelejteni, hogy a nagyon magas falak miatt a hőmérsékletkülönbség inkább kellemetlen.
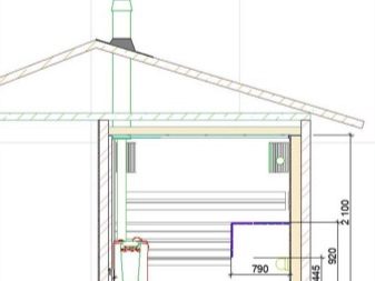
A 2 m és 2,2 m közötti magasság a leggyakoribb számítás. Ebben az esetben még a magasabb emberek is képesek lesznek úgy közlekedni, hogy nem kell leguggolniuk. Ha a szaunát valószínűleg átlagos testmagasságú emberek fogják használni, a magasságnak el kell érnie az 1,7-1,8 métert.
A ferde tetőt elsősorban átalakítható padlásoknál használják.
Miből lehet jobban elkészíteni?
Néha a fából készült fürdők mennyezetét szegély nélküli deszkákból készítik. Az ilyen megoldás nem túl népszerű. Ennek is megvannak azonban a maga egyértelmű előnyei. Még egy szegély nélküli deszka rögzítése is teljesen megéri (kicsit bonyolultabb, mint a falhoz). Ezt az anyagot elsősorban kisebb fürdőkben használják.
Az álmennyezeteket ritkán használják az ilyen épületekben, akárcsak a cédrusszerkezeteket. Ezek egyértelműen tervezési elemek. Ide tartoznak egyébként az üvegtáblák és a rácsos szerelvények is. Az alapszerkezet típusától függetlenül azonban a magas minőség kritikus.
Az OSB használata nem kívánatos vagy rendkívül veszélyes. Ezek a termékek magas hőmérsékleten mérgező anyagokat bocsáthatnak ki. A kellemes fenyőillat helyett a szaunába látogatóknak csak a fejük fog fájni.
Nem szabad megfeledkezni a szauna mennyezetének szigetelésére használt anyagokról sem. Claydite erre a célra viszonylag jól alkalmas. A duzzasztott agyag azonban hajlamos az összecsapódásra, és használata erősen korlátozott. Ezenkívül a duzzasztott agyagot nehéz lefektetni. Styropor sokkal kényelmesebb és könnyebb, de hajlamos az égésre.
Celluláris üveg számos előnyös tulajdonsága van. Ezeket az előnyöket azonban beárnyékolja a magas ára, bár az utóbbi években az árak némileg csökkentek. Az egyik előnye, hogy nem vonzó a rágcsálók és a rovarok számára.
Kedvezőbb a vatta. Ez is ellenáll a biológiai károsodásnak. Az ilyen anyag szintén nem ég. A Minwool alkalmas a szauna bármely helyiségének szigetelésére. Az egyetlen előfeltétel a víz és a gőz elleni gondos védelem.
Szükséges eszközök
A munkához szükséged lesz:
- Elektromos fúrógép;
- Egy közönséges asztaloskalapács;
- tűzőgép;
- csavarhúzó;
- lapos hólyag;
- vízmérték;
- fakalapács;
- mérőszalag;
- ácskés;
- fűrész;
- párazáró szalag;
- körmök;
- csavarok.
Alkotás saját kezűleg
Overlay
A mennyezet előkészítésének ezt a módszerét tartják a legegyszerűbbnek. Orosz fürdőházban éppúgy használható, mint bármely más fürdőházban. Ez a megoldás azok számára is alkalmas, akik egyáltalán nem jártasak az építőiparban. Mindazonáltal egy lépésről-lépésre történő útmutató nem rossz ötlet. Mindenekelőtt meg kell ismerkednie a deszkázott tetőfedélzet építési tervével.
Gyakorlatilag ez egy egyrétegű deszkapalló. A támaszpontok csak a falakon vannak. Természetesen ennek következtében a deszkák hajlamosak megereszkedni a saját súlyuk alatt. Egy ilyen probléma megoldása érdekében az egyetlen fesztáv hosszát legfeljebb 2,5 m-re kell korlátozni.
A legtöbb esetben 50 mm-es blokkokat használnak a deszkázat összeállításához.
Ajánlatos a lehető legegyenletesebben, kis hézagok nélkül lerakni. A deszkákat a legjobb keresztirányú faanyagokkal összeilleszteni. A deszkákat filézni is lehet, és a végükre helyezve nyelv és horony alakúvá lehet tenni, ami megkönnyíti a szigetelést. A mosóhelyiségekben és más helyiségekben az alap deszkaszint lehet durva vagy befejező. Az első esetben fejezze be a munkát burkolással.
Ne feledkezzen meg a párazáróról. A magas hőmérsékletnek ellenálló szigetelést a szigetelés tetejére helyezik. Ha úgy dönt, hogy duzzasztott agyaggal tölti fel, gondosan ki kell számolnia a teherbírást, és gondoskodnia kell a jó vízzárásról. A deszkatípus a megfelelő megoldás, ha elsősorban a gazdaságosságot, az egyszerűséget és a minimális időigényt vesszük figyelembe.
Varrott mennyezet
Az álmennyezet építéséhez az építési folyamat első lépése az aljzatgerendák kialakítása és beépítése. Ezeket a falak építése során telepítik. A gerendák speciális lyukakba is elhelyezhetők, bár gyakran fémkonzolokhoz rögzítik őket. Egyes esetekben a gerendákat vagy a szabadban helyezik el, vagy a helyiségekben hagyják. Ezt műszaki számítások alapján határozzák meg.
Az álmennyezet vonzereje abban rejlik, hogy a tetején sétálhatsz anélkül, hogy attól kellene tartanod, hogy összeomlik. Ez fontos a tető vagy a padlás építésénél. Minden más szerkezetet alulról vagy felülről rögzítenek a gerendákhoz - innen a név. A szegélyléceket alul rögzítik; a keresztléceket az általuk létrehozott párkányokra kell fektetni, vagy a hosszú léceket alul keresztben kell összekötni.
Így alakul ki a nyers födém. A szabványos beépítési utasítások tartalmazzák a párazáró és hőszigetelő réteggel való borítást. Ezután következik a nedves szigetelés és a padló alatti padlózat. Ezután a fóliát is leszögezzük, és a léceket a gerendák tetejére fektetjük. Néha lehetséges, hogy a fehér padlót egyszerre a tető alá fektessék ezzel a módszerrel, anélkül, hogy korlátoznák magukat a fesztáv hosszában, a hőszigetelés bármilyen terhelését viselve, de vannak gyengeségei:
- az anyagok drágábbak;
- a munka bonyolultabb;
több időt vesz igénybe, mint a deszkázási módszer.
Panelizált
Az ilyen mennyezetet a földön szerelik össze, majd felemelik. Természetesen nem egyszerre, hanem egyes nagy panelek, amelyek kezdetben deszkákat és rudakat tartalmaznak. Ez a módszer lehetővé teszi, hogy minimalizálja azt az időt, amíg felemelt fejjel kell dolgoznia. Egy 5x10 cm-es faanyagot használnak. A merev szigetelés szélességével párhuzamosan, vagy az ásványgyapot szélességénél 2 cm-rel kisebb szélességgel kell elhelyezni.
A deszkákat szigorúan keresztben rakják egymásra. A széleiknek egy kicsit túl kell nyúlniuk a tábla határain. A faltól való távolságnak legalább 50 mm-nek kell lennie. Az ilyen szerkezetet a "szegélyléccel" együtt fejjel lefelé kell fordítani, és párazáró réteggel kell borítani, amelyet tűzőgéppel rögzítenek. Ezután hőszigetelést adnak hozzá, kivéve az ömlesztett szigetelést.
Az összeszerelt szerkezet felemelése előtt érdemes a táblákat konzolokkal megerősíteni. Ellenkező esetben valószínűleg összeomlik. Emelés után távolítsa el a rugókat. A panelek közötti hézagokat meg kell védeni a gőzszivárgás ellen, és szigeteléssel kell kitölteni. A lambériázott mennyezetet nagyon könnyű összeszerelni, még a kezdők számára is.
A kivitel jellemzői
Ha a szaunát feszített mennyezettel díszítik, akkor szóba sem jöhet a szerkezet burkolása. Ez azonban nem mindennapi megoldás, és fontos tudni, hogyan kell helyesen díszíteni a szoba tetejét. Egyes esetekben egyszerűen úgy döntenek, hogy nincs szükség a díszítésre. Ebben a változatban lehetőség van az előre megmunkált fa borítására vagy szegélyezésére - és ezzel a munka meg is áll. Technikailag ez teljesen normális, ha mindent helyesen csinálnak.
Tervezési és kényelmi okokból azonban gyakrabban alkalmaznak speciális tervezési megoldásokat. Nagyon is lehetséges, hogy befejezze a szauna mennyezet, például a nyelv és horony táblák. Természetesen viszonylag drága. Ezt a hátrányt azonban ellensúlyozzák a magas gyakorlati és esztétikai tulajdonságai.
A legtöbb esetben a gazdaságosabb lécburkolatot használják. Célszerű az ilyen anyagot a gerendák tetején rögzíteni a szellőzőrés fenntartása érdekében. Ellenkező esetben a vízgőz felhalmozódása nem kerülhető el.
Ha a szauna etnikai stílusban épül, érdemes laza deszkát használni.
Meg kell tisztítani és csiszolni, szándékosan hagyva az egyik szélét egyenetlenül. Néha még ezt az aránytalanságot is szándékosan hangsúlyozzák. A hitelesség ezzel a megközelítéssel garantált. Mivel azonban nem tudnak szorosan illeszkedni, a táblákat két sorban, eltolva kell beépíteni.
Ahhoz, hogy a felület még elegánsabbnak tűnjön, érdemes lefesteni. Függetlenül attól, hogy milyen típusú fát használunk, célszerű hengerrel dolgozni, mert ez sokkal gyorsabb és biztonságosabb. A henger a színt is egyenletesebben oszlatja el, mint az ecset. A legjobb, ha inkább rövid halom van, mint hosszú. A sarkokban és a nehezen hozzáférhető helyeken jobban lehet dolgozni a laposkefékkel. A festék típusát egyedileg kell kiválasztani, de csak magas hőmérsékletű, nedvességálló bevonatra van szükség.
Tippek a szakemberektől
Nem minden fa alkalmas szauna mennyezetének kialakítására. A keményfa jobban ellenáll a hőnek és a nedvességnek. Nem hajlamosak gyantát szivárogtatni. Párazáró rétegként javasoljuk a következőket:
- pergamen;
- polietilén hab;
- membránfilm anyagok.
Más membránanyagokat általában vízszigetelő membránként használnak, amelyek csak az egyik oldalon engedik át a gőzt. Az Isospan jó választásnak számít. Fontos: a rétegelt lemez és a polietilén fólia nem szerepelhet a "pitében". A mennyezet alapszerkezetéhez akár nyers faanyag is felhasználható. Az egyetlen dolog, amit figyelembe kell venni, hogy az első 24 hónap alatt a zsugorodás néha eléri a teljes magasság 15%-át.
A mennyezeti gerendáknak négyzet vagy téglalap alakú fából kell készülniük. A főgerendák közötti távolságnak pontosan 0,6 m-nek kell lennie. A szerelési megerősítéseket előre kialakítják, ahol elhelyezik őket. Az aljzathoz célszerű vágott deszkát használni. Mindkét oldalra egy pár szöget kell beütni, ezzel megakadályozva a vetemedést.
Az álmennyezet lehetővé teszi, hogy a padláson egy területet biztosítson a seprűk tárolására. A megoldás egyszerű: elhelyezünk egy lejárót és egy behúzható létrát. A szaunában éger, hárs vagy nyárfa használatát javasoljuk. Ne használjon gombával fertőzött fát vagy repedezett vagy repedezett deszkákat.
Még az is ajánlott, hogy az anyagot előzetesen fertőtlenítőszerrel kezelje.
Azon a ponton, ahol a kémény áthalad a mennyezeten, a kéménynyílást a mennyezeti deszkázat összeszerelése során szerelik fel. A rögzítéshez használt szögeknek 3-szor hosszabbnak kell lenniük, mint a deszkák vastagsága. Győződjön meg róla, hogy az illesztések feszesek. Minden egyes deszka az előző deszka hornyához van rögzítve.
Az agyag párazáróként használható. Ezt nagyvonalúan alkalmazzák a réseken és az illesztéseken. A habarcs elkészítéséhez folyami homokot kell használni, amelyet előzetesen át kell szitálni. Az összetevőket építési keverővel kell összekeverni. A keverék tetejére fóliát vagy fóliát kell helyezni.
A szigetelőréteg vastagsága egy fűtetlen padláson 20-30 cm. Ha ásványgyapotot használ, 10-15 cm-es réteggel is beéri. Mielőtt elkezdené ezt és más munkákat, át kell gondolnia egy tervet, és rajzot kell készítenie. Hasznos elgondolkodni rajta az elektromos világítás szervezésén. A párazáró fóliát legalább 10 cm-es átfedéssel kell lefektetni a széleken.
A falak kerületét szerelőfával kell burkolni. Így az anyag szorosabban és stabilabban tapad. Hasznos, ha magát a fát színezett tartósítószerekkel kezeljük. Így láthatja, hogy mely területeket kezelték, és jobban is néznek ki. Az akrilvegyületek különösen jók a tervezés szempontjából.
A hőszigetelés úgy történik, hogy a gőz a belső térfogatban maradjon, és ne távozzon kifelé. Az építészek az ilyen állapotot "termoszhatásnak" nevezik. Ha úgy dönt, hogy ásványgyapotot használ az eredmény eléréséhez, akkor szűk öltönyt és megbízható gumikesztyűt kell viselnie. Számos szakember jobb megoldásnak tartja a fóliaszigetelést, mert a visszaverődés révén jelentős mennyiségű tüzelőanyagot takarít meg. Természetesen a szerkezet megjelenésére is figyelmet fordítanak.
Ha a mennyezet padlás nélkül készül, akkor azt teljesen fel kell szerelni, nem kizárva a szigetelést, mielőtt a tetőhéjazat és a tetőfedő anyag beépítésére kerülne sor. A felújítás megkönnyítése érdekében olyan alátétrendszert kell választania, amely alatt hőszigetelés található.
Célszerű már a kezdetektől fogva elkészíteni egy vázlatot, amelyen az összes mennyezeti és tetőszerkezeti elemet feltüntetik.
Általában nincs összefüggés a szauna anyaga és a tetőszerkezet között. Ez alól csak az a kivétel, hogy a vázszerkezet korlátozott terhelést jelent a falra. Nehéz hőszigetelés használata nem megengedett. Pórusbeton, tégla és egyéb tőkeépítményeknél a felső rész nehezebb lehet.
A hagyományos orosz szaunában a belmagasságot 2,3 m-re kell korlátozni. Ha a falak alacsonyabbak, a gőz elkerülhetetlenül könnyen távozik, és nem lesz kellemes. Ha a helyiség nagyobb, a fűtés indokolatlanul sok fát, gázt, áramot vagy más tüzelőanyagot igényel. A szauna poliuretánhabbal való szigetelése egyébként sem praktikus. Egyes esetekben fűrészporos cementtömböket használnak.
A szauna mennyezetének felszerelésekor a rovarvédelmet is figyelembe kell venni. Az impregnálást a tűz- és rothadásvédelemmel egyidejűleg végzik. Még mindig ajánlatos a lehető legmagasabb szintű biztonságot nyújtó opciót választani.
A kémény kéménye fontos kérdés. A kémény és a szomszédos faépítmény között legalább 0,3 m távolságnak kell lennie. Technikailag ezek a számok kevesebbek, de a szokásos tűzvédelmi előírásokhoz képest jobb a viszontbiztosítás. A téglakéményeket téglával vagy betonnal határolják. A fugát egy "dilatációs hézag" biztosítja; bár néha zsaluzat is elrendezhető és betonnal önthető.
A szauna mennyezetének megfelelő párazáró és szigetelésének elkészítéséről a következő videóban tájékozódhat.
