Kaikki kellarisaunoista
Uiminen on erittäin suosittu tapa rentoutua ja pitää hauskaa. Se on yksi suosituimmista tavoista ottaa se omassa talossasi. Se ei ole vain mukava, vaan myös riittävän taloudellinen. Jos ei ole mahdollisuutta käyttää itsenäistä rakennusta, kellari voidaan muuttaa saunatilaksi.
Hyödyt ja haitat
Saunan rakentaminen omakotitaloon on monimutkainen ja vaativa prosessiKyseessä on erittäin monimutkainen ja vaativa prosessi, johon liittyy monia vivahteita.
Viime vuosina ovat yleistyneet hankkeet, joissa kellariin rakennetaan sauna.
Tämän menetelmän tärkeimmät edut ovat seuraavat:
- Lämmitysprosessi tapahtuu yhden lattialaatan avulla, joka sijaitsee nyt itse talon ja saunan välissä;
- Saunaan ei tarvitse mennä pihan kautta, vaan voit mennä saunaan kotoa käsin;
- Huoltokustannukset vähenevät huomattavasti;
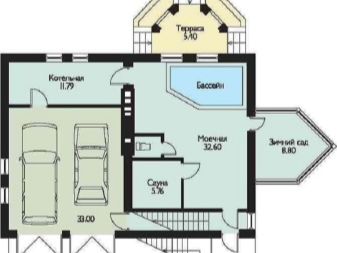
- Jos kellarin koko sallii uima-altaan ja rentoutumishuoneen asentamisen;
- Sinun ei tarvitse rakentaa uusia viestintäyhteyksiä, koska voit käyttää talon tarpeisiin asennettuja viestintäyhteyksiä;
- Säästät maata, jota voidaan käyttää tulevaisuudessa muihin tarkoituksiin.
Ainoa haitta kellariin asennettavasta saunasta on se, että tarve korkeaan lämmitystasoonKellarissa olevan saunan ainoa haittapuoli on suuri lämmitystarve, koska tämä tila tuottaa paljon lämpöä. Viisaalla lähestymistavalla ja lämmöneristyksen avulla voidaan kuitenkin optimoida kustannukset.
Tekniset tiedot
On syytä huomauttaa, että Saunan rakentaminen kellariin on kallis toimenpide, On syytä huomauttaa heti aluksi, että saunan rakentaminen kellariin on kallis toimenpide, koska olemassa olevaan rakenteeseen on tehtävä asennustyöt. Jos sauna kuitenkin asennetaan vielä rakenteilla olevaan rakennukseen, prosessi on yksinkertainen.
Ensin on selvitettävä kaikki apuohjelmat, jotta se voidaan toteuttaa oikein..
On myös tärkeää ottaa huomioon huoneen koko, sillä jos se on pienempi kuin 12 neliömetriä, se ei riitä takaamaan viihtyisää oleskelua.
Seuraavat seikat on otettava huomioon huonetta perustettaessa.
- Uima-allas ei ole välttämätön. Jos se rakennetaan, ilmanvaihtoon on kiinnitettävä erityistä huomiota.
- Suihkukaapit on mitoitettava huoneen koon mukaan.
- Se on mitoitettava huoneen koon mukaan, eikä sitä saa asentaa höyrysaunaan.
- Vesijohtoverkko on välttämätön, koska ilman sitä ei ole pysyvää vesihuoltoa. Ihanteellinen ratkaisu tähän on oma kaivo, joka voidaan porata paikan päällä. Jos vesijohto on keskitetty, voit käyttää sitä mieluummin.
Saunassa, joka on tarkoitettu käytettäväksi pitkään, on oltava seuraavat varusteet tyhjennyslaitteet. Tuulettimet tai ilmastointilaitteet ovat ihanteellisia, mutta niiden asennus on parasta jättää ammattilaiselle, joka osaa ottaa kaikki vivahteet huomioon.
Hankkeet
Saunaa ei voi rakentaa pohjakerrokseen ilman hanketta. Vakioprojekti sisältää seuraavat parametrit:
- höyrysaunan parametrit;
- Huoneiden sijoittelu;
- Reititysapuohjelmien järjestelmä;
- Käytettävien materiaalien suunnittelu.
Materiaalit
Parhaan mikroilmaston luomiseksi huoneeseen on käytettävä seuraavia välineitä oikeat materiaalit. Puu on ihanteellinen. Vaikka talo olisi rakennettu tiilestä, puun pitäisi silti olla tärkein viimeistelymateriaali.
Venäläisessä kylvyssä tai suomalaisessa saunassa ei kannata käyttää keraamista tai metallista saunaa. Tämä johtuu siitä, että tällaisessa huoneessa lämpötila voi nousta korkeaksi, jolloin materiaali kuumenee ja aiheuttaa palovammoja.
Asiantuntijat suosivat havupuita, joissa on mahdollisimman vähän hartsia. Tästä syystä setripuuta käytetään usein kellarisaunassa.
Hartsittomuus on tärkeää, koska lämmitettäessä hartsia alkaa vapautua, mikä voi vahingoittaa saunan ulkopintaa.
Lehtikuusi on yksi suosituimmista ja kysytyimmistä materiaaleista. lehtikuusilehtikuusi, joka ei ainoastaan heikkene altistuessaan kuumuudelle, vaan myös vahvistuu. Afrikkalaista tammea pidetään kestävimpänä materiaalina. Se on melko kallis materiaali, joka ei menetä ominaisuuksiaan, vaikka saunaa käytettäisiin aktiivisesti.
Lämmöneristysmateriaali on valittava huolellisesti. Yleisimmin käytetty materiaali on mineraalivilla, mutta se ei voi ylpeillä laatuominaisuuksillaan. Tosiasia on, että mineraalivillalla on taipumus kastua, kun se altistuu höyrylle, joten höyrynsulusta on huolehdittava etukäteen.
Polymeerimateriaaleilla ei ole näitä haittoja, mutta niille on ominaista palovaara, joten niitä ei suositella käytettäväksi saunassa.
Tärkein vaihe on lämpöeristys. Tähän tarkoitukseen on käytettävä korkealaatuisia materiaaleja. Tämä pitää huoneen lämpimänä myös talvella ja suojaa muita huoneita lämmöltä.
Laitteet
Vaikka vapaasti seisovassa saunassa voidaan käyttää kaikenlaisia laitteita, kellarissa on oltava joustava valinta. Suosituimpia lämmityslaitteita ovat yleensä liesiKellarin lämmitin on yleensä kiinteän polttoaineen kiuas. Jos sauna kuitenkin asennetaan kellariin, tätä vaihtoehtoa ei pidä käyttää, jotta varmistetaan, että sauna on asianmukaisesti suojattu tulipaloa vastaan.
Paras vaihtoehto on käyttää sähkökattila, joka on merkittävä turvallisuutensa vuoksi. Tällaisen laitteen ainoa haittapuoli on, että se kuluttaa paljon sähköä, mutta tällaisessa rakenteessa ei ole vaihtoehtoja.
Nykyaikaisissa sähkökattiloissa on kehittyneitä turvaominaisuuksia, joihin kuuluu automaattinen sammutuskytkin, joka käynnistyy pienimmästäkin oikosulusta.
Lisäksi tällaiset laitteet voivat kytkeytyä pois päältä, jos valmistajan sallima lämpötila ylittyy.
Erityistä huomiota on kiinnitettävä uunien asennuksessa on noudatettava erityistä varovaisuutta.Kiukaan lattian on oltava 20 cm lattiaa korkeammalla. On parasta asentaa metalliverkot koko kehän ympärille, jotta se suojaa luotettavasti palovammoilta.
Jos huoneen läpi kulkee kaasu, on mahdollista asentaa kaasulämmitinTämä on kuitenkin suositeltavaa vain, jos käytössä on asianmukainen ilmanvaihto ja savupiippujärjestelmä. luotettava ilmanvaihtojärjestelmä ja savupiippujärjestelmä. Tämäntyyppisen polttoaineen käytön erityispiirteenä on, että siitä vapautuu ihmisille haitallisia palamistuotteita, joten ilmanvaihtojärjestelmän on oltava mahdollisimman tehokas.
Myös sähköliedet ovat kivisiä, mutta niitä ei kannata kastella. Sen sijaan voit On mahdollista käyttää erityistä öljyä, joka rikastuttaa ilmaa erilaisilla aromeilla. Kiuaskiviä tarvitaan, jotta kiuas lämpiää nopeasti ja pitää lämpötilansa mahdollisimman hyvin.
Miten tehdä?
Rakennusprosessia on noudatettava tarkasti, jotta voidaan varmistaa mahdollisimman suuri mukavuus ja huoneen mikroilmasto. Tosiasia on, että kellarihuone on varsin erityinen, joten täällä on käytettävä laadukkaita materiaaleja, mutta kaikki työt on myös tehtävä oikein.
Ensimmäiseksi on eristettävä ulkoseinät, ja ihanteellinen ratkaisu on käyttää asfalttipohjaista eristettä. Jos haluat, että lämmöneriste kestää mahdollisimman pitkään, ilmarako on sijoitettava huolellisesti niin, että ylimääräinen kosteus ei pääse valumaan.
On kiinnitettävä erityistä huomiota homeen ja homeen torjuntaan, sillä ne voivat levitä hälyttävää vauhtia ja aiheuttaa vahinkoa päällysteelle ja ihmisten terveydelle.
Paras tapa ratkaista tällaiset ongelmat on seuraava Hyvä ilmanvaihtojärjestelmä on paras tapa estää tämä ongelma. Tämä edellyttää pakotettua ilmanvaihtoa ja raitisilman syöttöä sekä palamistuotteiden nopeaa poistamista ulos.
Seuraava vaihe on valaisimien asentaminenSeuraava vaihe on valaisimien asennus, joka on tehtävä turvallisuusnäkökohdat huomioon ottaen ja käyttöolosuhteiden mukaisesti. Älä unohda, että uima-altaat ovat hyvin kosteita. Kaikki johdot on asennettava aaltopahvilaatikkoon. Näin varmistetaan korkeatasoinen kosteussuojaus ja korkea turvallisuustaso huoneessa.
Yksittäistä suunnitelmaa laadittaessa on otettava huomioon seuraavat seikat vesihuolto ja viemäröinti. Se on riittävän yksinkertaista ja voidaan tehdä itse. Kaiva pieni kuilu, joka kuljettaa vettä. Aivan samalla tavalla asennetaan putki ulostuloa varten.
Yksi tärkeimmistä vaiheista on on ilmankuivaajan asentaminen.Tämä on ilmankuivain, joka mahdollistaa ylimääräisen kosteuden poistamisen ja ilmastoinnin. Jos kellarissa on ikkuna, on mahdollista asentaa seuraavat laitteet monobloc-ilmastointilaite, joka voi helposti poistaa ylimääräisen kosteuden.
Tämä menetelmä ei ole tehokas, mutta se ei vaadi pitkää asennusaikaa.
Kun viimeistelytyöt on tehty, voit aloittaa Kiuas voidaan nyt koota valmiiksi. Tässä on oltava erittäin huolellinen, ja rakennustekniset yksityiskohdat on sovitettava tarkasti huoneen suunnitteluun.
Sisustus
Viimeinen vaihe on saunan erilaisten lisävarusteiden asentaminen.. Tämä voi olla vesikauha, seinään kiinnitettävä lämpömittari, kello tai eteeristen öljyjen sarja, jonka avulla voidaan luoda erilaisia tuoksuja rentouttavia hetkiä varten.
Jos mökin kellarin koko sallii sen. voit järjestää virkistysalueen, jonka suunnitteluun kuuluu uima-allas, biljardipöydät, plasmatelevisio ja muita viihde-esineitä.
Saunahuone, jossa on kylpyamme, on helppo rakentaa olohuoneen kellariin. Tärkeintä on noudattaa selkeästi suunnittelua ja käyttää laadukkaita materiaaleja.
Kauniita esimerkkejä
- Kaunis luonnonpuusta valmistettu sauna, jossa on minimalistinen muotoilu.
- Ylellinen sauna suuressa kellarissa, joka tarjoaa rentoutumisalueen.
- Kylpylä, jossa on erillinen suihkuhuone ja koppi. Sisätilojen valaistus luo ainutlaatuisen mikroilmaston ja antaa sinulle mahdollisuuden rentoutua.
Katso alla oleva yleiskuva autotallin kellarissa olevasta saunasta.
