Kõik, mida peate teadma telliskivivannide kohta
Telliskivist vannimajad on vastupidavad, usaldusväärsed ja kauakestvad. Need ei ole mitte ainult praktilised, vaid ka atraktiivsed konstruktsioonid, mis võivad muutuda koha kaunistuseks. Järgnevalt tutvume lähemalt telliskivivannidega ja kaalume, kuidas saate sellise konstruktsiooni oma kätega ehitada.
Plussid ja miinused
Paljud inimesed ei suuda ette kujutada elu ilma hea saunata. Tänapäeval valmistatakse neid enamasti palkidest, hakitud puidust või muudest puuliikidest. Sauna võib ehitada mitte ainult puidust, vaid ka tellistest. See on populaarne ehitusmaterjal, millel on palju positiivseid omadusi. Vaatame, millised on tellishoonete eelised.
- Telliskivivannide peamine eelis on nende tuleohutus. Need struktuurid ei toeta põlemist ja ei süttida ise. Need on väga olulised omadused sauna puhul, kus valitseb kõrge temperatuur ja suur tuleoht.
- Telliskivivannid on keskkonnasõbralikud. Ehitusmaterjal ise on valmistatud ilma kahjulike kemikaalide lisamiseta, mis võivad kuumutamisel vabaneda. Sellise konstruktsiooni puhul ei ole ohtu kasutajate tervisele.
- Telliskivi ei mädanenud. Lisaks sellele ei teki sellest materjalist valmistatud vannid seente või hallituse allikaks. See on oluline eelis, sest enamik kaasaegseid saunu on ehitatud puidust, mis on vastuvõtlik kõikidele eespool loetletud haigustele.
- Telliskivist sauna ei pea regulaarselt töötlema antiseptikumide ja muude kaitselahustega, millest paljud on kallid. Ilma täiendava töötlemiseta ei hakka see materjal lagunema ja kaotab oma positiivseid omadusi.
- Vaatlusalused hooned ei kahane. Omanikud ei pea kuude kaupa ootama, kuni hoone settib, enne kui nad saavad jätkata kõiki sisetöid. Siin saab viimistlustöid teha kohe pärast ehitustööde lõpetamist.
- Seda tüüpi sauna peetakse lihtsasti ehitatavaks. Telliskivide paigaldamine on lihtne ja arusaadav, nii et kogenematud käsitöölised võtavad sageli sellise töö ette ja saavutavad väga häid tulemusi.
- Telliskivist sauna saab ehitada igas suuruses, vormis ja konfiguratsioonis. Tellistega töötades saab ehitaja lasta oma kujutlusvõimel vabalt tegutseda ja välja töötada oma huvitava saunakujunduse ning seejärel selle ellu viia.
- Kõnealused struktuurid on pika elueaga. Telliskivist hoone võib seista väga kaua (kuni 150 aastat), nii et omanikud ei pea muretsema selle eluea pärast.
- On võimatu mitte märgata telliskiviehitiste atraktiivset välimust. Kui vann on tehtud täpselt ja kõigi reeglite kohaselt, võib sellest saada koha kaunistus.
Nagu näete, on telliskivivannidel palju eeliseid.
Nad ei tule toime ei temperatuurikõikumiste, niiskuse ega sademetega. Kuid neil hoonetel on ka oma nõrkused, mida tuleb samuti arvesse võtta.
- Arvesse tuleb võtta tellise hügroskoopilisust. Aja jooksul imab see ehitusmaterjal oma konstruktsiooni niiskust, mistõttu ei tohiks unarusse jätta hüdroisolatsiooni ja aurutõkke paigaldamist.
- Seda materjali iseloomustab kõrge soojusjuhtivus. Seetõttu peavad omanikud hoolitsema ka hea soojusisolatsiooni eest. Kui see punkt on unarusse jäetud, kulub sauna soojendamiseks palju tarbetut kütust ja aega.
- Tugev ja kindel vundament on telliskivist hoone puhul väga oluline. Kui puithooned võivad olla võimalikult lihtsad või kerged, siis tellishoone nõuab tugevat ja tugevat vundamenti.
- Need hooned ei saa kiidelda hea veeauru läbilaskvusega. Liivakivist telliskivist saun ei anna auru nii hästi edasi kui puust hoone. Selliseid konstruktsioone on soovitatav enne kasutusele võtmist töödelda spetsiaalse hüdroisolatsioonimördiga ja tagada hea ventilatsioon.
- Telliskivist sauna ehitamine võib olla omanikule palju kallim Täpselt samade mõõtmetega puithoone ehitamine.
Võrdlus puidust vannidega
Nagu eespool mainitud, pöörduvad inimesed sagedamini puidust vannide ehitamise poole. Puidu kasutamine selliste hoonete ehitamisel on klassikaline lahendus. Kuid telliskivikonstruktsioonidel on ka palju positiivseid omadusi, mille tõttu neid valitakse. Milline variant on siis parem? Võrdleme puit- ja telliskivikonstruktsioone ja selgitame välja, milles seisnevad nende peamised erinevused.
- Telliskiviehitus meelitab kasutajaid oma tulekindlusega, kuid puusaun ei saa kiidelda selliste omadustega. Isegi kui puit on töödeldud spetsiaalsete kaitsevahenditega, on see ikkagi tuleohtlik, mida ei saa öelda tellise kohta.
- Puitvannituba ei vaja alati stabiilset ja sügavale kaevatud vundamenti. Raamkonstruktsioonide puhul ei ole see üldse vajalik. Telliskivist hooneid ei tohiks jätta ilma vundamendita. Lisaks peab see olema väga vastupidav ja võimalikult tugev.
- Tellistest hoone ei vaja kaitsematerjalidega töötlemist, sest see ei mädane, ei tekita hallitust ega hallitust ega muutu sihtmärgiks parasiitputukatele. Puitu tuleb perioodiliselt niisutada antiseptikumidega, et see ei mädaneks, ei rikneks kõrge niiskuse mõjul ja ei hävitaks kahjurite rünnakute tõttu.
- Tellistest ehitised on vastupidavamad ja kulumiskindlamad kui puithooned.
- Enamasti on telliskivist hooned palju kallimad kui puidust hooned, isegi kui nende mõõtmed ja põrandapind on samad.
- Telliskividest sauna kütmine võtab palju kauem aega kui puust sauna kütmine. Telliskivi ei ole väga kuumaintensiivne materjal; sama ei saa öelda puidu kohta.
- Puidul on hea veeauru läbilaskvus, mida tellishoonetel ei ole.
- Pole haruldane, et puitkonstruktsioonid ehitatakse palju kiiremini kui telliskiviehitised.
Igal materjalil on oma nõrkused ja tugevused. Oluline on kaaluda mõlemat. Iga kasutaja otsustab ise, milline konstruktsioon on praktilisem.
Materjalide valik
Hästi toimiva ja ohutu sauna ehitamiseks võib kasutada erinevaid telliseid. Vaatleme lähemalt kõige populaarsemaid ja praktilisemaid võimalusi.
- Punane. Punaseid keraamilisi telliseid peetakse keskkonnasõbralikuks. See on väga atraktiivne ja vastupidav konstruktsioon, millel on head soojus- ja heliisolatsiooniomadused. Punased tellised ei karda vihma ja lund ega temperatuurimuutusi ning seetõttu võib neid kasutada usaldusväärse sauna ehitamiseks.
- Valge (silikaat). Seda tüüpi tellis on ka keskkonnasõbralik. Seda saab kasutada nii üksikmüüritise kui ka fassaadi puhul. Materjal on suure tugevusega, ei karda külma ja omab suurepäraseid heliisolatsiooniomadusi. Siiski tuleb arvestada, et silikaattellisele on iseloomulik väike erikaal ja see ei talu kõrget niiskust, mis ei ole saunale hea. Seda tüüpi ehitusmaterjali puuduste tõttu ei soovitata saunahoone ehitamiseks.
- Kollane. See on tellis, mida iseloomustab selle atraktiivne välimus. Kollaste tellistega vooderdatud vann näeb välja kallis ja esinduslik. Selle ehitusmaterjaliga tuleks tööd teha soojal aastaajal. Kollaseid telliseid on keraamilisi, silikaat-, klinker- ja hüperpressitud telliseid.
Paljud kasutajad otsustavad ehitada kvaliteetse sauna plokkmaterjalist. Selle tulemusena on võimalik saada mitte vähem usaldusväärne ja atraktiivne konstruktsioon. Peamine on võtta arvesse kõiki valitud materjalidega töötamise nüansse.
Projektid
Vaatame mõningaid huvitavaid telliskivist saunaprojekte.
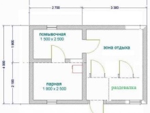
- See võib olla suhteliselt väike - 6x4 meetrit. Ruudukujuline konstruktsioon mahutab suure puhkeala, mis on eraldatud riietusruumist vaheseinaga. Vastasküljele saab ehitada sauna ja pesuruumi, mis on eraldatud põrandaplaadiga.
- Kui soovite, saate teha ilusa 8,90 x 12,40 meetri suuruse telliskivist saunamaja. Hoone paigutus hõlmab selliseid olulisi ruume: saun, duširuum koos vannitoa ja magamistoaga ühes pooles ning köök ja avar puhkeruum teises pooles. Majapidamine ei saa selles keskkonnas mitte ainult puhata, vaid ka elada, sest seal on kõik vajalik olemas.
- Telliskivist ehitatud saunast võib teha toreda 3m x 3m suuruse minivanni. Sellistes tingimustes saab majutada ainult puhkeruumi, mis on seinaga eraldatud pesuruumist ja aurusaunast.
Kõik ruumid on väikesed, nii et suure hulga inimeste majutamine on ebatõenäoline.
Kuidas ehitada?
Saate oma kätega ehitada hea tellisest venekeelse vannitoa. Peamine on hoida käepärast samm-sammult juhiseid ja tegutseda hoolikalt, siis saate väga häid tulemusi. Siin on samm-sammuline juhend, kuidas ehitada kvaliteetne vene vann tellisest.
Sihtasutus
Kui teil on tulevase ehitise lõplik projekt käes, peaksite alustama selle vundamendi ettevalmistamist. See peab olema turvaline ja tugev. Parim lahendus on ribafond.
- Ala, kus vundamenti valmistatakse, tuleb kõigepealt valida ja hoolikalt puhastada. See tuleks puhastada kogu prahist, umbrohust ja põõsastest.
- Märgistage vundamendi ala projekti alusel. Nurkadesse ja piki seinu paigutatakse vaiad. Pingutage nööri nende vahele.
- Seejärel kaevake 0,3-0,8 m sügavune ja 25-40 cm laiune kraav. Alusele tuleb panna 10-20 cm paksune liivakiht ja see tuleb tampida.
- Killustik valatakse liiva peale, niisutatakse ja tihendatakse.
- Saadud padjale laotakse paar kihti veekihti hüdroisolatsiooni. Paigaldatakse laudiseade.
- 1,2-1,6 cm läbimõõduga metallvarrastest valmistatud tugevdatud alus asetatakse müüritise sisse. Rid tuleb siduda traadiga.
- Šali sisemine pool peab olema niisutatud.
- Seejärel valatakse ettevalmistatud konstruktsiooni sisse tsementmört.
- Šali võib eemaldada 5-14 päeva pärast. Esimeste päevade jooksul on kõige parem värskelt rajatud vundamenti kasta umbes 3-4 korda päevas. Tasub valada 1 meetri paksune kiht savist ja killustikust. Tsement kõveneb umbes 28 päeva pärast.
Seinad
Pärast valmis vundamendi hüdroisolatsiooni saab ehitada seinad. Kõige populaarsem on ühe rea nöörisüsteem. See hõlmab telliskiviridade vaheldumist tagumise ja lusikaga telliskivide vahel.
Tellistest müüride paigaldamiseks on mitmeid viise.
- Soliidne. Selle meetodi puhul laotakse tellised 2 reas ilma vahekaugusteta. Müüritis on väga tugev.
- Ventilatsioonivahega 40-60 mm.
- Kerge. Müüritis koosneb 2 seinast, mille vahel on soojusisolatsioon.
Võib kasutada kergmüüritist. Alustage seinu nurkadest. Kõigepealt aseta esimesed 6 rida nurkadesse. Kõikide ridade äärde on pingutatud nöör. On vaja mässida naelad, mis pannakse telliskivide vahelistesse vuukidesse - nii määratakse müüritise tasasus. Sokkel peaks olema valmistatud täismassist, seinad õõnsatest tellistest.
Tellised tuleb paigaldada kiiresti, enne kui mördil on aega kõveneda.
Katus ja põrand
Katusel võib olla 1, 2 või rohkem katusekallet. Tellistest ehitatud konstruktsiooni kindlamaks ja usaldusväärsemaks muutmiseks on soovitav paigaldada selle peale tugevdatud akna. Selleks valmistage hoone ümber müüritis, asetage metallliistud ja valage seejärel betoonmört. 2 päeva pärast eemaldage lauad ja lööge kattuvused maha. Kui pealispind saavutab vajaliku tugevuse, laotage sellele kiht bituumenmastiksit ja seejärel katusepleki. Kinnitad mauerlati - 10x10 cm ristlõikega riba - esiplaadile.
Seejärel paigaldatakse katusekattematerjalide sarrusüsteem. Kinnitage see osa nii, et see toetub niidulauale. Kinnitage sarikad, hüdroisolatsioon ja katusekate. Saunapind tuleb katta laetalade abil laetalade jämedusega, seejärel paigaldatakse fooliumiga aurutõke. Pööningupoolele paigaldatakse membraaniga aurutõke ja talade vahele paigaldatakse mineraalvill. Seejärel kaetakse soojusisolatsioon aurutõkkega.
Telliskivist sauna sees olev ala peab olema kaetud liivaga ja hästi tihendatud. Sokli tasemele paigaldatakse puitplokid, mis on tulevase põranda aluspinnaks. Kõige parem on kasutada 25, 15 või 10 mm ristlõikega puitu. See tuleb ankurdada vundamendi külge ankurduspoltide või nurgapulkade abil sauna seina külge. Plaadid naelutatakse alumise osa külge, mis hoiab kinni soojusisolatsiooni. Pind kaetakse hüdroisolatsiooniga ja paigaldatakse mineraalvill. Tehke veel üks kiht niisket isolatsiooni peale ja seejärel pange põrandaplaat.
Lõpetamine
Kui soovite, et teie saun oleks ilus nii seest kui ka väljast, peate selle korralikult ja heade materjalidega viimistlema. Omanikud peavad eelnevalt mõtlema hoone tulevase kujunduse peale. Saunaruumis tuleb seinad katta aurutõkkena alumiiniumfooliumiga. Puukast (5x5) naelutatakse kasti peale. Elektrikaabel tuleb viia laineliini ja rajada valgustuse juhtmestik. Paigaldage liistude paigaldamine raamipõhiselt. Parimad materjalid on lehis või tamm. Pärast seda kinnitatakse riiulid.
Salong ja eesruum võivad olla ka vooderdatud või alternatiivselt plokkmajadega. Alati on vaja eelnevalt teha raami alus.
Pesuruumi lagi tuleks samuti vooderdada puitelementidega, kuid selle ruumi põrandale ja seintele sobib kõige paremini keraamiline või plaaditud põrandakate.
Kui vanni müüritud seinakonstruktsioonid on teostatud spetsiaalse kaevumeetodiga, mille sees on täiendav isolatsioon, siis ei ole vaja välisvooderdust, sest selle rolli mängib välisviimistlus tüüpi tellised. Kõigil muudel juhtudel paigaldatakse seintele soojustuskihid (tavaliselt mineraalvillast), mis kinnitatakse plasttulpade või liimiga. Pärast seda etappi paigaldatakse sarikad. See võib olla valmistatud metallist või puidust. Viimane on kaetud liistuga, seinakattega või plokkmaja.
Eelnevalt valmistatud näited
Telliskivist saun võib olla kõige erinevama kujunduse ja sisekujundusega. Asjatundlikult püstitatud hoone on võimeline kaunistama oma asukohta ja saama kõigi pereliikmete ja nende külaliste lemmikpuhkekohaks. Lisaks sellele, kui kõik on õigesti arvutatud, võite ehitada ilusa telliskivimaja ja elada selles nagu traditsioonilises majas.
Siin on mõned head näited telliskivist ehitatud saunast.
- Tumepunasest tellisest saun, millel on roheline kolmekandiline katus, on väga ilus ja rikkalik. Veelgi silmatorkavam on see konstruktsioon, kui seda kombineerida väikestest telliskivisammastest ja nende vahele paigutatud valgest piirdest koosneva pergooliga. Peahoone võib olla täiendatud haljastusega, nagu ka saunakonstruktsioonil.
- Kvaliteetsetest kollastest tellistest ehitatud hooned näevad välja moodsad ja stiilsed. Seda telliskivist saunamaja saab täiendada tumedat värvi katuse ja tumedate aknaraamidega. Tulemuseks on väga silmatorkav kontrast.
- Oranžide, kollaste ja burgundiapunaste telliskivide kombinatsioonist saab väikese, kuid hubase ja usaldusväärse sauna. Struktuur võib olla korrapärase ristkülikukujulise või ruudukujulise kujuga. Konstruktsioon võib olla varustatud tumedate metallist ustega, puitu imiteerivate plastist aknaraamidega ja tumeda ühekordse katusekattega.
- Kaasaegne, halltellisest telliskivist saun näeb efektne välja. Sissepääsuala peaks olema täiendatud suure kaetud verandaga, kuhu on paigaldatud telliskivist ahi. Siia tuleks paigutada ka puidust lauad ja toolid, mis on suurepärane koht lõõgastumiseks sõbralikus seltskonnas.
Hall tellis sobib kõige paremini kokku valgete aknaraamide ja valge katuse sisekülje katteplaadiga.
- Väike punasest tellisest vann näeb välja puhas ja esteetiliselt meeldiv.Kui see on varustatud bordoopunase viilkatuse ja tumepruuniga sissepääsuksega. See on lihtne, kuid atraktiivne.
Kui soovite teada, kumb maja on parem - kas tellis- või palkmajad - vaadake seda videot.
