Mis on saun ja mida see endast kujutab?
Paljud inimesed ei tea väga hästi, mis see on - suplusmaja, millised on suplusmajade variandid. Ometi on nende ajalugu ja kirjeldused üsna tähelepanuväärsed ja õpetlikud. Sama oluline on pöörata tähelepanu sellele, millest vannituba koosneb.
Mis see on?
Kui vaadata sõnaraamatuid ja entsüklopeedilisi allikaid, siis need näitavad selgelt, et sõna "vann" pärineb ladina keelest, mis pärineb Vana-Rooma ajast. Sõltuvalt konkreetsest tüübist mõjutab vee ja kuuma õhu või vee ja auru kombinatsioon seal suplevaid inimesi.
Erinevatel piirkondadel on oma suplustraditsioonid, mis sõltuvad looduslikest tingimustest ja mitmetest muudest teguritest. Vannide ümber on välja kujunenud traditsiooniliselt eriline etikett ja lähenemine hügieeniprotseduuridele. Sellegipoolest on igal pool see või teine hoone, kus vett soojendatakse ja kasutatakse suplemiseks.
Välimuse ajalugu
Kõige kuulsamad on Vana-Rooma "termae", mis toimisid tänu keerukale infrastruktuurile. Kuid ka teistel antiikaja juhtivatel tsivilisatsioonidel olid vannid. Sel ajal eristati juba selget ruumide struktuuri, millest igaühel oli oma kindel funktsioon. Rooma terrasside tähtsust peetakse suuremaks kui teistes kultuurides, sest need olid ka üks kultuurilise ja sotsiaalse elu keskusi.
Keskajal ei olnud selliseid suuri komplekse. - kuid vastupidiselt levinud arvamusele mitte niivõrd kristlike piirangute, vaid materiaalse kultuuri allakäigu tõttu. Vaid mõned vanad vannid olid veel kasutusel. Uued avalikud vannid hakkasid tekkima üheksandal ja kümnendal sajandil, kui dekadentsi mõjud olid suures osas ületatud.
Paradoksaalne, kuid tõsiasi on see, et 16. sajandil, materiaalse kultuuri kui terviku kasvu taustal, olid Euroopa vannid languses.
Puitu tarbiti aktiivselt kütusena metallurgias ja laevaehituse toorainena ning kütmine muutus väikese jääaja tingimustes keerulisemaks. Islamimaades oli suplus enam-vähem stabiilne, ilma dramaatiliste tõusude ja mõõnaperioodideta.
Kaasaegse SRÜ territooriumil olid üsna populaarsed ka suplusmajad.Vannid olid üsna populaarsed ka tänapäeva SRÜs, kuigi ilma fantastilise üleolekuta teiste riikide ees, millest sageli kirjutavad väheste teadmistega autorid. Kindel on see, et suplusviis ise oli põhimõtteliselt erinev.
Aja jooksul on vannid kõikjal edasi arenenud. Nende välimus muutus järsult 19. ja eriti 20. sajandil tänu uute kaasaegsete materjalide ja kütteseadmete tekkimisele. Kuid nagu sajandeid tagasi, saavutavad vannid ikka veel samu eesmärke ja rõhutavad samu olulisi osi.
Millest see koosneb?
See sõltub omanike rahalistest vahenditest ja sellest, kui palju ruumi on saadaval. Kui on võimalik ehitada suur ruum, siis on aurusaun selgelt eraldatud pesuruumist. Vastasel juhul tuleb neid kombineerida. Aurutsoon on tavaliselt varustatud eri kõrgusega riiulitega.
Lisaks võib esitada järgmist:
- eesruum;
- lõõgastumisruum;
- tuba ajutiseks majutuseks;
- katlaruum.
Tüüpide kirjeldus
Vannitüüpe on väga erinevaid, millest igaühel on teatud erinevused.
Vene
Kuigi on olemas palju muid vannitüüpe, on mõistlik alustada kõige tuttavlikumast ja kodustele traditsioonidele vastavast. Selle tüübi puhul kasutatakse tingimata kive, mis veega üle valades tekitavad kuuma auru. Teine tüüpiline tunnusjoon on kaselehtede luude kasutamine. Lisaks puhtalt hügieenilisele funktsioonile on vene vannil väga võimas tervist parandav funktsioon.
Kuid on oluline mõista, et selline intensiivne mõju organismile ei pruugi olla väga kasulik ja seetõttu on vaja olla ettevaatlik.
Soome saun
Skandinaavia "sõber" vene vannituba on nii sarnane kui ka erinev. Erinevus on nii märkimisväärne, et ükski asjatundja ei eksi nende valikute vahel. Kõige olulisem on see, et õhk on väga soe. Keegi ei ole üllatunud 130-kraadise temperatuuri üle.
Erinevatel "võistlustel" puutuvad saunakülastajad kokku kuni 200-kraadise temperatuuriga. On loogiline, et selline soojenemine on talutav ainult väga kuivas õhus (õhuniiskus max. 15% ja ideaalis max. 10%).
Roman
Kui vene ja skandinaavia vannid on viimistletud peamiselt puiduga, siis Rooma vannid on kaetud marmori või graniidiga. Temperatuur on seal märgatavalt madalam: 45-65 kraadi, sõltuvalt tsoonist.
Peamine mõju ei tulene mitte niivõrd kuumutamisest, vaid pigem niisutamisest. Eksperdid märgivad, et therma on suurepärase kosmeetilise mõjuga. Ruumid on varustatud erineva kõrgusega pinkidega ja tingimata kasutatakse purskkaevu.
Türgi
Kuigi nii vene kui ka soome vannid on auru tüüpi, on hamamil unikaalsed omadused, kuigi see on samamoodi moodsa rooma "caldariumi" kohandamine. Islami vannile on iseloomulikuks tunnuseks tšebek, st ümmargune kivi, mida hoitakse alati soojas.
Ka türgi lähenemisviis eeldab kurnide, st spetsiaalsete veega täidetud anumate kasutamist. Niiskus peaks olema kuni 80%. Temperatuur varieerub tavaliselt 50-55 kraadi, vastavalt traditsioonilistele religioossetele kaanonitele jagunevad hamamid meeste ja naiste hamamiteks.
Iiri
Selle hamami versiooni areng tuleneb ikka veel selle iidsest prototüübist. Juba kütte korralduses on sarnasus näha. Kütmine toimub traditsiooniliselt ümmarguse või neljakandilise võlvitud pliidi abil. Ehitus oli kavandatud nii, et telliskiviga kaetud ja marmoriga kaetud põrandal kuluks kaua aega, et soojeneda. Samuti võtab sauna jahtumine kaua aega.
Iiri lähenemisviis hõlmab kuuma õhu suunamist põranda alla. Sealt liigub see mööda seinu mööda spetsiaalseid torusid. Iiri vanni kõige külmem osa on mõeldud 25-27-kraadise temperatuuri jaoks. Kaks ülejäänud segmenti sisaldavad vastavalt 32-35 ja 50-60 kraadini soojendatud õhku.
Isegi kõige kuumemas ruumis on lihtne ja meeldiv hingata, sest värske välisõhu juurdevool on tingimata tagatud eraldi toru kaudu.
Jaapani
Siinkohal tuleb märkida kahte asja. Esiteks arenes Jaapani vann Euroopa lähenemisviisist sõltumatult. Teiseks kujutab see isegi visuaalselt väga erilist nähtust.
Traditsiooniliselt hindasid tõusva päikese maa elanikud korralikku värsket õhuvoolu. Auru- ja pesuruumi vahel puudub eraldusruum. Mõlemad on asendatud suure puust paagiga ja pärast suplust saab lõõgastuda spetsiaalsel diivanil.
Selle originaalse konstruktsiooni põhjus on ilmselge: Jaapani suplemine järgib sellele Aasia riigile iseloomulikku väga erilist filosoofiat. Seebi kasutamine on seal juba ammustest aegadest alates keelatud. Seda budistlikku keeldu oli võimalik kompenseerida ainult tugevalt kuumutatud vee kasutamisega.
Lisaks sundis Jaapani piiratud puidukogus ehitama õhukesi seinu ja ainult veetünn kindlustas hüpotermia ja tõmbetuule vastu.
Veel üks ainulaadne motiiv on see, et tünn simuleerib suplust termilises allikas, mida on üsna palju ja mida siiski ei leidu kõikjal.
Projektid
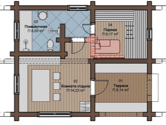
Vannitoa kujundus võib olla väga erinev. Korralik versioon hõlmab 6-meetrist duširuumi. Aurusauna pindala on 1,5 ruutmeetrit väiksem. Samas on 8,8 m2 vaba aja veetmise ruumi. Skeemi projekteerijad on hoolitsenud isegi suhteliselt väikese veranda eest.
Võib kasutada teistsugust lähenemisviisi. On kaks veranda, millest üks viib terrassile ja teine ooteruumi. Lisaks on olemas:
- pesuruum;
- aurusaun;
- vestibüül;
- suhteliselt väike vannituba.
Kuidas ehitada?
See sõltub eelkõige sauna tüübist. Jaapani, iiri või muude valikute kaalumisel on aga vähe mõtet. Vähemalt 95% juhtudest ehitatakse kas vene vannituba või saun - just need formaadid on need, mida tasub kõigepealt kaaluda.
Vene saunad on tavaliselt 2,5 x 4 või 3 x 5 meetri suurused. Hoone on püstitatud madalale sambavundamendile. Palkmaja on sageli valmistatud valitud metsapalkidest, ilma naelata. Palkide vahelised tühimikud on täidetud kanepi ja samblaga. Lagi on teki tüüpi. Põranda ja ülemise korruse soojustamiseks kasutatakse sambla ja turba kombinatsiooni.
Katus on valmistatud murust või katusekivist ning kaitse niiskuse sissetungi eest on tagatud vaigu ja kobestusvaha abil. Telliskivipliit on samuti iga vene sauna oluline osa.
Selle asendamine teiste kütteseadmetega ei ole soovitatav. Oluline: ruumi pindala ja üksikute tsoonide suurus tuleb valida teie äranägemise järgi ja need tuleb väga hoolikalt välja arvutada. Ühe alalise elaniku kohta peab olema vähemalt 1,8 ruutmeetrit eesruumi ja 1,5 ruutmeetrit aurusauna. Lae kõrgus 240-250 cm on piisavalt kõrge, et igas pikkuses inimesed saaksid vannis käia.
Tasub meeles pidada, et hea sauna ehitamine ei sobi kokku kasinusega. Sobib ainult esmaklassiline okaspuupuit. Palgid on halvemad kui puit, kuid puit ise tuleb valida väga hoolikalt.
Kogu saematerjal tuleb hoolikalt mõõta mõõdulindiga ja kontrollida igast küljest, et isegi väikesed vead oleks võimalik kohe avastada. Kui saun ehitatakse liistvundamendile, ei tohi betooni kokku hoida ja see peab olema esmaklassiline, samuti on väga kasulik vundamenti usaldusväärse armeerimisega tugevdada.
Kõik sauna puitelemendid peavad olema immutatud tule- ja bioloogiliste ohtude eest kaitsvate ainetega. Sellest hoolimata tuleb pliitide juures, korstnate ümber ja muudes sarnastes kohtades jälgida tulekatkestusi, samuti soovitatakse asbesti paigaldamist. Veetõkkematerjalid on täiendavalt töödeldud bituumenmastiksiga.
Vundamentide ja põrandate rajamisel tuleb meeles pidada, et tuleb säilitada teatav kalle.
Kivipõrandat parandatakse puitliistudega. Katuserennid tuleks katta rullitud veekihiga ja puidust laudisega. Lagi on ehitatud 2,5 m pikkustest laudadest. Venekeelse suplusmaja sisemus on valdavalt viimistletud klapiplaatidega. Väliskuju võib viimistleda:
- vinüül- või terasvooder;
- plastikust plaatimine;
- plokkmaja, mis jäljendab palkmaja välimust;
- saetud või saetamata puit.
Kõige lihtsam on sauna ehitada puitkarkassi meetodil. Sellisel konstruktsioonil on veel üks suur eelis: see soojeneb kiiresti ja ei nõua palju kütust ega energiat. Konstruktsiooni mõõtmed määratakse täpselt samamoodi nagu vene vanni puhul. Maapinna lõtvus või krundi paiknemine nõlval tingib tavaliselt vajaduse kasutada asbesttsementtorudel põhinevat vundamenti. Metallvundamentide funktsionaalsus ja ilu on vaieldamatu, kuid need on kallid ja neid on raske ehitada.
Enamik inimesi eelistab kasutada ribatugevdatud vundamente koos madalate vundamentidega. See lahendus ei sobi ilmselgelt ainult lahtisel pinnasel asuvate saunade jaoks. Tasub meeles pidada, et nii saunasid kui ka saunasid, mis tahes tüüpi ja igasuguse alusega, võib ehitada ainult loaga.
Kui projekti ei kiideta heaks, piisab naabrite kaebusest, et ehitis lammutatakse, tõenäoliselt õnnetute ehitajate kulul. Arvesse tuleb võtta mitte ainult tuleohutus- ja tervishoiueeskirju, vaid ka vajalikku elektrivarustust (viimane punkt on eriti oluline elektripliidi kasutamisel).
Saunaruumi või sauna äravool juhitakse eraldi drenaažikaevu. Selle suunamine ühisesse septikasse toob kaasa katastroofilise ülekoormuse. Kanalisatsioonisüsteemis kasutatakse 5 cm ristlõikega PVC-torusid. Torud asetatakse 15 cm paksusele liivakihile. Drenaažitoru kalle peab olema vähemalt 3 cm jooksva meetri kohta.
Rangelt lubamatu on lainehargnevus ja kanali paigutamine maapinna külmumispunktist kõrgemale.
Kõik vee- ja kanalisatsioonitorud on eriliselt isoleeritud vahtplastkattega. Alles pärast nende rajamist saab teha vundamenti. Soovitatav on mitte kasutada omatehtud betooni, vaid eritellimusel valmistatud betooni. See peab seisma täpselt 30 päeva, kusjuures seda tuleb regulaarselt niisutada - ainult nii saab tagada selle tugevuse. Erilist tähelepanu tuleb pöörata veekatte kvaliteedile ja sellele, et see ei oleks kuskil katki.
Saunad ja saunad isoleeritakse kõige paremini basaltvillaplaatidega. Alumiiniumfoolium asetatakse soojusisolatsiooni mõlemale küljele. Lihtsaim konstruktsioon hõlmab tavaliselt ühepöördelise katuse kasutamist. Kui sauna suurus on piiratud, võib selle ehitada isegi ilma katuserandita. Korstna ja toru vahelise soojusruumi ning ühenduskoha eest tuleb eelnevalt hoolitseda!
Kuidas korraldada?
Ükskõik kui hea on hoone "kast", vundament ja katus, ilma selleta ei saa te hakkama. Samuti tuleb hoolitseda viimistluse eest. Enamasti kasutatakse selleks puitu, kuid kasutada saab ainult 10% ulatuses kuivatatud laudu. Ideaalis tuleks eelistada soojuspuitu. Pesuruumi seinad on vooderdatud männipaneeliga või plaaditud.
Põrand on tavaliselt laotud taladega. See on tavaliselt kaetud lehtpuidust plankudega. Viimistlused on tavaliselt plaaditud harjatud või rullitud plaatidega. Kui teil on piisavalt vahendeid, võite kasutada luksusliku tammepuust abasi viimistlemiseks. Kuid enamik inimesi eelistab seedrit või isegi odavamaid puuliike, nagu lepp, lehis või haab.
Pliit on valitud eelkõige selle võimsuse tõttu. Kuid liiga tugevat kuumutamist ei soovitata vene vannis, kus kuumutada tuleks eelkõige kive, mitte õhku. Kõik kivid ei sobi teie suplusvajadusteks. Järgmised kivid sobivad optimaalselt nendeks eesmärkideks:
- gabbro;
- jadeiit;
- kvarts (karmiinpunane ja valge);
- basalt;
- porfüriit;
- talkokloriit.
Pesuruum on soovitatav viimistleda okaspuupuiduga. Aga kui teile see valik ei meeldi, siis on ka marmor ja plaat hea. Pesuruumi tuleks paigaldada ka hea ventilatsioonisüsteem.
Kuna saunades on ruum piiratud, kasutatakse ainult väikeseid või pinnale paigaldatavaid valgustid. Suured aknad ei ole mõistlikud.
Huvitavad faktid
Vene vann on kõigist võimalustest kõige niiskem. Üle 5 minuti aurusaunas viibimine ei ole ohutu isegi füüsiliselt tugevate inimeste jaoks. Kuid lühike visiit sinna aitab tugevdada südant ja hingamissüsteemi. Kuid jaapani lähenemisviisile on iseloomulik kasutada saepuruvanni - ofuro. Sa võid ennast 10 minutiks saepuru sisse uputada. Lisaks oma hügieenilisele kasulikkusele on furo tuntud ka oma võime poolest võidelda reumaatiliste kaebuste vastu ja leevendada stressi.
Kaheksateistkümnenda sajandi Saksamaal oli populaarne külastada supluspaiku kogu perega ja isegi koos koertega. Rooma ajal pidi iga uus keiser muu hulgas võimalikult kiiresti avama uue avaliku sauna. Arstide suhtumine suplusesse on vastuoluline: neid soovitatakse külmetushaiguste ennetamiseks, kuid akuutsel perioodil on need lubamatud.
Kõikide riikide seas on Soome suplemise poolest esikohal. Umbes 5 miljonit soomlast saab kasutada umbes 2 miljonit sauna.
Kuid meie riigis on ka palju entusiastlikke inimesi - küsitluste kohaselt külastab umbes 20% vähemalt kord kuus sauna või sauna. Et saada optimaalset kasu tervisele, ei tohiks seda teha rohkem kui 2 korda nädalas.
On veel mitu muud huvitavat punkti:
- Venemaal XV kuni XVIII sajandil olid avalikud vannid meeste ja naiste jaoks tavalised ja ainult erimäärus lõpetas selle tava;
- Ideaalsed luud on asjatundjate sõnul pärit veekogu kaldal kasvavatest kaskedest (veelgi parem, kui oksad on painutatud otse vee poole);
- vanad kreeklased kasutasid loorberiluudasid.
Järgnev video näitab teile õige sauna planeerimise põhitõdesid.
