Sifón de ducha
Las mamparas de ducha son muy populares en pisos y casas particulares. Son especialmente buenos en habitaciones pequeñas, donde es difícil poner una bañera. Cualquiera que sea el puesto, es necesario organizar el drenaje del agua de la bandeja hacia el desagüe, lo que requiere un sifón especial.
El funcionamiento de este dispositivo es bastante sencillo. Consiste en un tubo curvo, en cuyo fondo siempre hay agua. El sifón se instala no sólo en las duchas, sino también en todos los demás aparatos sanitarios que funcionan con agua.
Tipos de sifón para platos de ducha
El mercado de productos sanitarios ofrece una gran variedad de sifones en cuanto a material de producción, equipamiento, calidad y precio. Su elección también depende del propio plato de ducha, concretamente del orificio de desagüe. Hay varias opciones para clasificar estos dispositivos:
Según el principio de funcionamiento:
- Embotellado. El sifón recibió este nombre, ya que tiene la forma de una simple botella. Pero esto no impide que sea el más cómodo de usar y funcional;
- sifones de tuberías. Estos sifones son aún más sencillos en su construcción que los anteriores. Se fabrican en forma de tubo curvo y están hechos de plástico y metal, por lo que tienen diferentes propiedades y aplicaciones. Pero el tipo más común es el ondulado, que simplemente se puede estirar.
Por método de control:
- convencional. Una trampa convencional se controla con un simple tapón. Cuando se tira de él, el agua fluye hacia la tubería y desde ella hacia el desagüe;
- automático. El desagüe se abre automáticamente, una persona sólo tiene que pulsar una palanca especial. Esto es muy conveniente, porque no hay necesidad de agacharse;
- Dispositivo Click-Clack. Esta válvula de descarga está diseñada para que puedas empujarla con el pie y se abra automáticamente. Es el sistema más complejo y, por tanto, el más caro.
El diseño de las trampas de olor
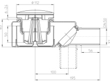
Como ya se ha mencionado, hay bastantes tipos de sifones de ducha en el mercado. Pero el tipo más popular son las trampas de plástico, que tienen la mejor combinación de precio y calidad. Este dispositivo tiene la siguiente configuración:
- Una rejilla que cierra el desagüe y evita que las partículas grandes entren en las tuberías;
- una tira de sellado para la rejilla. Se coloca una junta de goma entre la rejilla y la bandeja para evitar que entre el agua;
- la salida. La salida tiene un borde en el que se fija una junta de goma;
- junta para el tubo de salida hecha de goma;
- Un tornillo que se enrosca en la tuerca del tubo de derivación;
- La parte principal de la trampa, o la cubeta, donde siempre queda el agua;
- La toma o el tubo que conecta la cubeta con el sistema de alcantarillado.
Estos elementos deben incluirse en todas las trampas. Por ejemplo, las juntas y los sellos de goma evitan las fugas de agua. Deben estar en el exterior y en el interior del desagüe del plato de ducha. Todos los tornillos son de acero inoxidable, lo que garantizará la durabilidad de toda la trampa y su fijación.
Sifones para platos de ducha bajos y altos
Los platos de ducha bajos imponen ciertas restricciones al uso de diversos dispositivos de fontanería para su mantenimiento, incluidos los sifones. Un sifón de botella estándar no es adecuado para drenar una bandeja de este tipo. Por supuesto, el plato de ducha puede instalarse sobre un pequeño pedestal para disponer de más espacio debajo. Pero esto anula todos los beneficios de dicha ducha. Para resolver el problema del drenaje, los expertos recomiendan utilizar:
- Trampa ondulada. Gracias a su diseño flexible, dicho sifón puede colocarse en un espacio limitado, disponiendo la pendiente necesaria para el drenaje del agua. Pero la desventaja de la ondulación es su baja resistencia, así como que en su superficie interior se acumula rápidamente la suciedad. Es muy posible que pronto haya que sustituir ese sifón. Afortunadamente, su coste es bajo.
- Trampa de tuberías. Tiene la forma de un tubo en forma de S con un tapón de agua. Ocupa poco espacio y garantiza un drenaje fiable. El tubo es mucho más fácil de limpiar que un tubo corrugado.
Y absolutamente todos los tipos de sifones pueden utilizarse para los platos de ducha altos. Gracias a este diseño, la instalación y sustitución de las tuberías y otros elementos es mucho más fácil.
Conexión del sifón de olores
Es fácil instalar un nuevo sifón de olores o sustituir uno existente, ya que no se necesitan conocimientos ni herramientas especiales. Primero tienes que leer las instrucciones y asegurarte de que tienes todos los accesorios necesarios. Para que el sifón se conecte con éxito la primera vez, hay que seguir los siguientes consejos:
- Para garantizar un drenaje fiable, la bandeja debe estar siempre más alta que la entrada de aguas residuales.
- Los especialistas recomiendan el uso de tubos de plástico flexibles, ya que son mucho más fáciles de ajustar.
- La inclinación de la tubería debe ser aproximadamente de uno a dos centímetros por cada metro de longitud.
- Si la distancia entre la ducha y la entrada del desagüe es de varios metros o más, hay que instalar una bomba especial para bombear el agua fuera del plato.
El sifón en sí es fácil de instalar. En primer lugar, se introduce una rejilla con una junta en el desagüe, una salida de desagüe. El sifón está conectado a la cubeta del sifón en la parte inferior y la tubería que va al alcantarillado está conectada a él. En la tubería de desagüe se coloca una toma de corriente y a ella se conecta la tubería del sifón. Deben utilizarse juntas y sellos de goma para evitar fugas. El sistema se prueba durante unos 10-15 minutos. Si no se detecta ninguna fuga bajo alta presión de agua, la ducha es segura de usar.
Consejos para elegir un sifón
Para elegir el sifón adecuado para su ducha, hay que seguir los siguientes consejos:
- Uno de los principales criterios a la hora de elegir es el diámetro del desagüe del plato de ducha. La mayoría de los modelos tienen un diámetro de 52, 62 y 90 mm. Los datos sobre el tamaño deberían estar en el manual de la ducha, pero puedes medirlo tú mismo. Por supuesto, se puede tomar una trampa con un diámetro menor, pero esto hará que sea imposible garantizar un sellado fiable.
- La capacidad de flujo de la trampa también es importante. Se calcula en función de la altura del sumidero que puede contener un determinado volumen de agua. Por ejemplo, si el diámetro del sifón es de 52 o 62 mm, el nivel máximo de agua en la bandeja no debe superar los 12 cm para un drenaje normal, y los 15 cm para sifones más grandes.
- Para poder limpiar el sifón en el futuro sin tener que desmontar toda la ducha, es mejor comprar dispositivos de autolimpieza. Es obligatorio instalar una rejilla fina en el desagüe, que evitará que caigan pelos y otras partículas pequeñas.
Mantenimiento y cuidado del sifón
El mantenimiento consiste en la limpieza periódica de la unidad, en función de la frecuencia de uso de la ducha. Si se utilizan sifones de 52 o 62 mm de diámetro, deben ser fácilmente accesibles para su limpieza, ya que tienden a ensuciarse con bastante rapidez. Los sifones con un diámetro de 90 mm pueden limpiarse a través de la conexión de entrada. La mayoría de los modelos tienen cubetas especiales que atrapan todos los residuos. Simplemente se puede desenroscar del sifón y limpiarlo.
Es posible e incluso necesario utilizar productos químicos para la limpieza, pero hay que leer las instrucciones. Sin embargo, los sifones de plástico u ondulados pueden deformarse con ciertas sustancias, por lo que hay que tener cuidado al elegir los productos de limpieza.
Por lo tanto, no hay nada difícil de elegir e instalar una trampa con sus propias manos. Lo principal es seguir todas las recomendaciones y consejos expuestos en el artículo.
