Εγκατάσταση και σχεδιασμός καμινάδας
Στο παρελθόν οι άνθρωποι συνήθιζαν να θερμαίνουν τα λουτρά τους χωρίς καμινάδα - με τον "μαύρο τρόπο". Μετά από μια τέτοια καύση οι τοίχοι ήταν μαύροι, πράγμα που δεν είναι πολύ αισθητικά ευχάριστο. Επιπλέον, η μέθοδος αυτή δεν είναι πολύ αποτελεσματική. Σήμερα, τα λουτρά θερμαίνονται με καμινάδα. Το παρόν άρθρο ασχολείται με την κατασκευή και την εγκατάσταση της καμινάδας.
Διάταξη καμινάδας σε σάουνα
Ο κύριος σκοπός της καμινάδας είναι η απόρριψη των προϊόντων καύσης του ξύλου στην εστία. Έτσι κάθε είδους καμινάδα κατασκευάζεται πρώτα απ' όλα έτσι ώστε να επιτελεί το πρωταρχικό της καθήκον.
Υπάρχουν πολλοί τρόποι για να εγκαταστήσετε έξυπνα μια καμινάδα. Όλες θα είναι κατάλληλες σε ορισμένες περιπτώσεις.
Ωστόσο, υπάρχουν μερικοί τύποι εγκατάστασης καμινάδας που θεωρούνται βασικοί και αξίζει να τους ακολουθήσετε.
Μέσα από το ταβάνι
Αυτή η επιλογή περιλαμβάνει μια ευθεία καμινάδα που θα εκτείνεται μέσω της οροφής προς τα έξω. Είναι σημαντικό να σημειωθεί ότι η χρήση μιας τέτοιας ευθύγραμμης καμινάδας θα παρέχει υψηλό ρεύμα για τη διαφυγή ανεπιθύμητων αερίων. Επιπλέον, μια αξιοσημείωτη λεπτομέρεια είναι ο χώρος που καταλαμβάνει η καμινάδα στην αίθουσα σάουνας. Αυτό θα πάρει χώρο στο χαμάμ, αλλά από την άλλη πλευρά, θα θερμανθεί γρηγορότερα. Αυτή η μέθοδος είναι αρκετά επικίνδυνη από την άποψη της πρόκλησης πυρκαγιάς, καθώς θα είναι δύσκολο να δει κανείς τον απρογραμμάτιστο καπνό στη σοφίτα.
Το γενικό σχήμα μιας τέτοιας καμινάδας έχει ως εξής:
- Ένας σωλήνας εκκίνησης - το εσωτερικό μέρος του σωλήνα, το οποίο πρέπει να έχει μια ολίσθηση,
- Μπουλόνι, δηλαδή το τμήμα του σωλήνα που εισάγεται σε μια οπή ή ένα πέρασμα στην οροφή,
- Σωλήνας σάντουιτς - βρίσκεται στη σοφίτα με το ένα άκρο και το άλλο άκρο στην οροφή,
- κώνος και σπινθηροφράκτης στο τέλος,
- Το τμήμα της καμινάδας στο πατάρι πρέπει να είναι επενδεδυμένο με μη εύφλεκτο μαλλί για λόγους ασφαλείας.
Τα κύρια πλεονεκτήματα αυτού του τύπου εγκατάστασης είναι
- καλό βαρέλι,
- αδιατάρακτη θερμική μόνωση και, κατά συνέπεια, υψηλή θερμική απόδοση,
- σταθερή θέση, γεγονός που εξοικονομεί συνδετήρες,
- το συνολικό κόστος όλων των εξαρτημάτων είναι χαμηλότερο από ό,τι με άλλες μεθόδους.
Τα μειονεκτήματα, ωστόσο, είναι τα ακόλουθα χαρακτηριστικά:
- σχετικός κίνδυνος πυρκαγιάς,
- καταλαμβάνοντας δυνητικά ωφέλιμο εσωτερικό χώρο στη σάουνα.
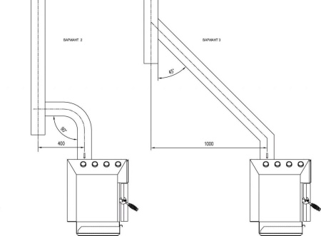
Εντός του τοίχου
Μια πιο αισθητική επιλογή. Για παράδειγμα, ο σωλήνας δεν περνάει από την οροφή, αλλά από τον τοίχο προς τα έξω. Στη συνέχεια σηκώνεται, ακουμπώντας στον τοίχο της σάουνας. Αυτό οδηγεί σε μια πιο δύσκολη και ακριβή εγκατάσταση. Το γεγονός είναι ότι αυτός ο τύπος είναι δύσκολο να κατασκευαστεί με επάρκεια. Επομένως, θα πρέπει να μετράτε περισσότερο. Τα ίδια τα εξαρτήματα θα κοστίζουν περισσότερο, επειδή η σταθερότητα ενός τέτοιου σωλήνα είναι μικρότερη, πράγμα που σημαίνει ότι πρέπει να αγκυρωθεί πιο σταθερά. Ο κίνδυνος πυρκαγιάς είναι χαμηλός, καθώς είναι πάντα δυνατό να δούμε τον καπνό που βγαίνει από την καμινάδα. Αυτή η καμινάδα εξοικονομεί επίσης χώρο στην αίθουσα σάουνας.
Αυτή η διάταξη καπνοδόχου θα έχει ένα σωλήνα εκκίνησης που εισάγεται στο άνοιγμα του τοίχου, ένα εξωτερικό τμήμα του σωλήνα, το κάτω μέρος του οποίου πρέπει να υποστηρίζεται με γωνία και το πάνω μέρος με συνδετήρες.
Στην κορυφή, όπως και στην πρώτη περίπτωση, θα πρέπει να υπάρχει κώνος και σπινθηροφράκτης.
Τα πλεονεκτήματα μιας τέτοιας συσκευής είναι:
- Δεν καταλαμβάνει χώρο μέσα στη σάουνα,
- χαμηλός κίνδυνος ανεξέλεγκτης καύσης,
- ευκολότερος έλεγχος της ακεραιότητας του συστήματος,
- πιο αισθητική εμφάνιση,
- δεν χρειάζεται να κάνετε άνοιγμα στη σοφίτα ή στην οροφή.
Ωστόσο, υπάρχουν και αδυναμίες, συγκεκριμένα:
- χαμηλή θερμική απόδοση,
- περίπλοκη και δαπανηρή εγκατάσταση,
- ελαφρώς χαμηλότερο ρεύμα καπνοδόχου.
Στον τοίχο και μέσα από την προεξοχή της οροφής
Η τρίτη μέθοδος είναι μια παραλλαγή της προηγούμενης. Η ουσία του είναι να οδηγεί την εξωτερική καμινάδα μέσα από την προεξοχή της οροφής. Σε ορισμένες περιπτώσεις αυτό είναι απαραίτητο. Για παράδειγμα, εάν δεν μπορεί κανείς να βγάλει τον σωλήνα πιο έξω.
Σε γενικές γραμμές, αυτή η επιλογή είναι πολύ παρόμοια με την προηγούμενη τόσο ως προς τη δομή όσο και ως προς τα χαρακτηριστικά. Η όδευση του σωλήνα μέσω της οροφής είναι μάλλον απαραίτητη. Ωστόσο, αν πρέπει να χρησιμοποιήσετε αυτή τη μέθοδο, πρέπει να περάσετε το σωλήνα μέσα από τη μαρκίζα σύμφωνα με τους ίδιους κανόνες όπως στην πρώτη περίπτωση.
Υλικά
Βέβαια, δεν μπορεί να μην υπήρχαν για τόσα χρόνια ύπαρξης των καμινάδων διαφορετικά είδη υλικών από τα οποία θα κατασκευάζονταν. Σήμερα, μπορείτε να βρείτε διαφορετικούς τρόπους για την κατασκευή μιας καμινάδας, που διαφέρουν ως προς την επιλογή των πρώτων υλών. Ωστόσο, οι πιο αξιόπιστες και δοκιμασμένες καμινάδες είναι αυτές που κατασκευάζονται από τα οικοδομικά υλικά που αναφέρονται παρακάτω.
Ανοξείδωτο ατσάλι
Μια αρκετά δημοφιλής επιλογή είναι η κατασκευή μιας σιδερένιας καμινάδας. Το υλικό αυτό χρησιμοποιείται κυρίως από εκείνους που κάνουν την εγκατάσταση του σωλήνα μέσα από τον τοίχο.
Τα πλεονεκτήματα του ανοξείδωτου χάλυβα είναι αρκετά. Για παράδειγμα, τα κυριότερα είναι η σχετικά χαμηλή τιμή και η εύκολη εγκατάσταση. Πράγματι, είναι πολύ πιο εύκολο να συναρμολογηθεί η καμινάδα σε μεμονωμένα μεταλλικά μέρη από το να χτιστεί πρώτα το θεμέλιο και στη συνέχεια να συναρμολογηθεί η καμινάδα από τούβλα για μεγάλο χρονικό διάστημα. Σε όλα αυτά προστίθεται η δυνατότητα αντικατάστασης ενός κατεστραμμένου εξαρτήματος. Για παράδειγμα, εάν εντοπιστεί καπνός σε μια μεταλλική καμινάδα, αρκεί να αντικατασταθεί το τμήμα όπου εντοπίζεται η βλάβη. Στην περίπτωση μιας καμινάδας από τούβλα, η καμινάδα θα πρέπει να καλωδιωθεί πλήρως εκ νέου.
Ωστόσο, υπάρχουν ορισμένες αδυναμίες. Το μέταλλο είναι πολύ καλός αγωγός της θερμότητας, οπότε μπορεί να σχηματιστεί συμπύκνωση στο εσωτερικό της καμινάδας όταν η εστία καίει.
Η λύση σε αυτό το πρόβλημα είναι οι ειδικοί σωλήνες σάντουιτς. Η ιδέα είναι ότι το εσωτερικό της καμινάδας μονώνεται με ένα ειδικό υλικό και το εξωτερικό τοποθετείται από πάνω. Αυτό δημιουργεί ένα "σάντουιτς" που μονώνει την καμινάδα και αποτρέπει τη συμπύκνωση. Μια φθηνότερη επιλογή είναι απλά να τυλίξετε λίγο ύφασμα ή βαμβάκι γύρω από τη μεταλλική καμινάδα.
Από τούβλα
Μια καμινάδα από τούβλα χρησιμοποιείται από τους ανθρώπους εδώ και πολύ καιρό. Τα τούβλα ήταν από τα πρώτα που χρησιμοποιήθηκαν στις κατασκευές, συμπεριλαμβανομένων των καμινάδων. Παρά την εμφάνιση ανταγωνιστικών υλικών, το τούβλο εξακολουθεί να είναι σημαντικό.
Ένα από τα μεγαλύτερα πλεονεκτήματα του τούβλου είναι η ανθεκτικότητά του. Σε αντίθεση με τους μεταλλικούς τύπους σωλήνων, οι επιλογές από τούβλα μπορούν να παραμορφωθούν μόνο με βαριοπούλα ή κάτι παρόμοιο. Αυτό δίνει την αίσθηση της αξιοπιστίας και της ανθεκτικότητας. Επιπλέον, οι σωλήνες από αυτό το υλικό φαίνονται όμορφοι και αυθεντικοί. Είναι ιδανικές για κουζίνες κατασκευασμένες επίσης από τούβλα. Αυτό το υλικό, σε αντίθεση με το σίδηρο ή άλλα μέταλλα, είναι κακός αγωγός της θερμότητας και τείνει να συσσωρεύει θερμότητα. Αυτός είναι ο λόγος για τον οποίο τα λουτρά με καμινάδα από τούβλα διατηρούν τη θερμότητα περισσότερο. Η αντοχή στη φωτιά είναι επίσης χαρακτηριστικό των σωλήνων από τούβλα.
Ιδιαίτερα ξεχωρίζουν τα ειδικά ανθεκτικά στη θερμότητα δείγματα, από τα οποία κατασκευάζονται συνήθως οι ίδιοι οι φούρνοι. Αυτό το οικοδομικό υλικό δεν επηρεάζεται από τις υψηλές θερμοκρασίες, σε αντίθεση με το μέταλλο, ιδίως κακής ποιότητας.
Το μειονέκτημα είναι ότι η επιφάνεια είναι τραχιά, με αποτέλεσμα το εσωτερικό του σωλήνα να γίνεται γρήγορα αιθάλη. Αυτό προκαλεί κάποια ταλαιπωρία όσον αφορά τον έγκαιρο καθαρισμό της καμινάδας. Ορισμένοι παρατηρούν επίσης ότι το ρεύμα της καμινάδας είναι ασθενέστερο. Αυτό οφείλεται στο σχήμα της καμινάδας. Οι κυλινδρικές μεταλλικές καμινάδες αφήνουν τον καπνό να περάσει καλύτερα. Η δύσκολη εγκατάσταση είναι ένα άλλο πρόβλημα με αυτές τις καμινάδες. Πρώτον, είναι η μεγάλη μάζα της τελικής κατασκευής, η οποία επιβάλλει την κατασκευή ξεχωριστού θεμελίου εάν ο σωλήνας οδηγείται μέσω τοίχου. Δεύτερον, υπάρχει η ίδια η τοιχοποιία, η οποία απαιτεί κάποιες οικοδομικές δεξιότητες. Ένα άλλο πρόβλημα που προκύπτει από τη δύσκολη εγκατάσταση είναι η ανάγκη να ξαναχτιστεί πλήρως η καμινάδα, εάν σπάσει σε ένα τουλάχιστον σημείο.
Από αυτό προκύπτει ότι Εάν η ίδια η καμινάδα είναι επίσης από τούβλο και η καπνοδόχος οδηγείται από την οροφή αντί από τον τοίχο, μια καμινάδα από τούβλο είναι η καλύτερη επιλογή.
Κεραμικό
Τέτοιες καμινάδες εμφανίστηκαν στα ρωσικά λουτρά πριν από λίγο καιρό. Από όλα τα υλικά που αναφέρονται σε αυτό το άρθρο, αυτό είναι το πιο ακριβό. Αυτός είναι ο λόγος για τον οποίο οι (κυρίως) κεραμικές καμινάδες είναι αρκετά σπάνιες.
Μια τέτοια κατασκευή αποτελείται από τρία στρώματα. Στο εσωτερικό υπάρχει ένας στρογγυλός κεραμικός σωλήνας. Καλύπτεται με ένα θερμομονωτικό στρώμα. Εξωτερικά, η δομή περιβάλλεται από πορώδες υλικό: τούβλα ή σκυρόδεμα.
Ένα προφανές πλεονέκτημα είναι το κυκλικό περίγραμμα του σωλήνα, το οποίο επιτρέπει στα αέρια να διαφεύγουν εύκολα χωρίς να αφήνουν πολύ αιθάλη στα τοιχώματα.
Μια καμινάδα είναι εύκολο να κατασκευαστεί, τουλάχιστον ευκολότερο από μια καμινάδα από τούβλα. Στα πλεονεκτήματα περιλαμβάνεται επίσης η ανθεκτικότητα της κατασκευής. Αυτό εξασφαλίζεται από την αντοχή των πρώτων υλών και την ανθεκτικότητά τους στις εξωτερικές επιδράσεις.
Τα μειονεκτήματα αυτής της παραλλαγής είναι το υψηλό κόστος και το βάρος. Λόγω του μεγάλου βάρους, σε περίπτωση εγκατάστασης μέσω του τοίχου, η θεμελίωση πρέπει να είναι χυτή. Η υψηλή τιμή αντισταθμίζεται από την ανθεκτικότητα του προϊόντος.
Υπολογισμός
Πολύ σημαντικά σημεία στην κατασκευή της καμινάδας δεν είναι μόνο το υλικό και ο τύπος της εγκατάστασης, αλλά και ορισμένες διαστάσεις.
Πρώτα απ' όλα είναι η διάμετρος της καμινάδας. Το πόσο μεγάλος ή μικρός είναι αυτός ο αριθμός εξαρτάται από τα σημαντικά χαρακτηριστικά της θερμάστρας σάουνας. Για παράδειγμα, αν κάνετε την καμινάδα πολύ στενή, δεν θα είναι σε θέση να παρέχει την απαραίτητη ροή αερίου. Ο καπνός που δεν θα έχει αρκετό χρόνο για να διαφύγει μέσω της καμινάδας θα πέσει στο εσωτερικό της σάουνας. Εάν η διάμετρος είναι πολύ μεγάλη, η θερμότητα από την καύση του ξύλου θα χαθεί μαζί με τα προϊόντα της καύσης. Αυτό θα σπαταλήσει περισσότερους πόρους από αυτούς που θα έπρεπε να χρησιμοποιηθούν για τη θέρμανση της σάουνας.
Η ελάχιστη διάμετρος της καμινάδας πρέπει να είναι 150 mm. Η μέγιστη διάμετρος μπορεί να φτάσει τα 270 mm, αλλά αυτά είναι μόνο κατά προσέγγιση στοιχεία. Στην πράξη, είναι προτιμότερο να ανατρέξετε στις οδηγίες.
Εάν έχετε αγοράσει κουζίνα, το εγχειρίδιο που συνοδεύει την κουζίνα πρέπει να αναφέρει το συνιστώμενο πλάτος της καπνοδόχου στο εσωτερικό της. Αυτή είναι η διάμετρος με την οποία πρέπει να γίνει το σχέδιο.
Για τις ηλεκτρικές κουζίνες (και μερικές φορές και για τις ξυλόσομπες), το δελτίο δεδομένων πρέπει να αναφέρει την ισχύ εξόδου. Εάν δεν αναγράφεται μαζί με αυτό η διάμετρος της κατασκευής για την έξοδο του αερίου, θα πρέπει να γίνουν οι ακόλουθοι υπολογισμοί: πολλαπλασιάστε την ισχύ (σε kW) επί 8, η τιμή που προκύπτει θα είναι το εμβαδόν του εσωτερικού τμήματος της καμινάδας σε τετραγωνικά εκατοστά. Γνωρίζοντας τον τύπο για το εμβαδόν του κύκλου για κυλινδρικές εκδόσεις και το εμβαδόν ενός ορθογωνίου, μπορεί να υπολογιστεί η διάμετρος ή οι διαστάσεις.
Εάν αυτές οι μέθοδοι δεν είναι δυνατές, μπορεί να χρησιμοποιηθεί η τελευταία επιλογή. Συνίσταται στη χρήση του συνιστώμενου λόγου επιφάνειας καμινάδας προς επιφάνεια εστίας. Αυτό είναι 1 έως 10 για κυλινδρικούς σωλήνες και 1 έως 1,5 για ορθογώνιους σωλήνες.
Το ύψος της καμινάδας είναι εξίσου σημαντικό. Όσο ψηλότερα είναι, τόσο ισχυρότερο θα είναι το ρεύμα. Αλλά είναι επίσης προτιμότερο να μην το κάνετε πολύ ψηλό, καθώς θα υπάρξουν μεγάλες απώλειες θερμότητας. Το συνολικό ύψος θα πρέπει να είναι περίπου 5 m - σε αυτή την περίπτωση θα εξασφαλιστεί το βέλτιστο ρεύμα.
Αλλά η απόσταση από την οροφή και την κορυφογραμμή είναι επίσης σημαντική. Η γειτνίαση με την κορυφογραμμή θα πρέπει να λαμβάνεται ως οδηγός:
- εάν η καπνοδόχος βρίσκεται πιο κοντά από 1,5 m στην κορυφογραμμή, θα πρέπει να είναι 50 cm ψηλότερα από την κορυφογραμμή,
- εάν είναι μεταξύ 1,5 και 3 μέτρων, ο καπναγωγός πρέπει να βρίσκεται στο επίπεδο της κορυφογραμμής της στέγης,
- Όταν ο σωλήνας βρίσκεται σε απόσταση μεγαλύτερη από 3 m από την κορυφογραμμή της στέγης, το ύψος από την κορυφογραμμή πρέπει να είναι χαμηλότερο.
Εγκατάσταση
Η επιλογή του σωστού υλικού και ο υπολογισμός όλων των διαστάσεων είναι μόνο ένα μέρος της εργασίας. Το τελικό στάδιο, η εγκατάσταση ολόκληρης της καπνοδόχου για την ξυλόσομπα, είναι πολύ σημαντικό. Για να κάνετε αυτή την κατασκευή σωστά, πρέπει να έχετε βασικές κατασκευαστικές δεξιότητες, ακόμη και στην περίπτωση του μεταλλικού τύπου. Οι ακόλουθες οδηγίες θα σας βοηθήσουν στην εγκατάσταση μιας μεταλλικής καπνοδόχου.
Το πρώτο πράγμα που πρέπει να κάνετε είναι να προετοιμάσετε τον χώρο. Αυτό θα γίνει κυρίως για την προστασία από την πυρκαγιά. Για παράδειγμα, ολόκληρη η επιφάνεια της εξωτερικής καμινάδας πρέπει να καλύπτεται με μη εύφλεκτο μαλλί.
Στα σημεία όπου η καμινάδα προβλέπεται να αερίζεται προς τα έξω, πρέπει να ανοίγονται οπές. Αυτά, με τη σειρά τους, πρέπει να μονωθούν και σε ορισμένες περιπτώσεις να καλυφθούν με άκαυστο υλικό.
Μετά την προετοιμασία, μπορούν να γίνουν εργασίες στην οροφή. Εκεί πρέπει να κοπεί το άνοιγμα της καμινάδας. Η διάμετρός του πρέπει να υπολογίζεται λαμβάνοντας υπόψη τη διάταξη. Για την ασφάλεια, χρησιμοποιείται ένα ειδικό στοιχείο, η κύρια φλάντζα. Τοποθετείται στον σωλήνα και στερεώνεται στην οροφή από το εξωτερικό, εμποδίζοντας έτσι τη διαρροή αυτού του περάσματος. Επιπλέον, οι άκρες θα πρέπει να σφραγίζονται με συγκολλητικό υλικό.
Δύο τύποι στοιχείων θα χρειαστούν για τα επόμενα βήματα: σωλήνες σάντουιτς και σωλήνες ενός τοιχώματος.
Τώρα, Ας δούμε την εγκατάσταση μέσω του τοίχου - ως το βαρύτερο. Πρώτα απ' όλα, ένας μονότοιχος σωλήνας μήκους τουλάχιστον 50 cm συνδέεται στο άνοιγμα του θερμαντήρα. Πρέπει να υπάρχει χώρος για το ρυθμιστή αέρα. Εάν δεν υπάρχει, πρέπει να τον κόψετε. Σε αυτόν τον σωλήνα προσαρτάται μια λεγόμενη καμπύλη, η οποία ανακατευθύνει τα αέρια υπό γωνία 90 μοιρών, μετά την οποία μπορεί να προσαρτηθεί ο σωλήνας σάντουιτς, ο οποίος ήδη διαπερνά τον τοίχο προς τα έξω. Εάν ο τοίχος δεν έχει μεγάλο πάχος, αρκεί ένα μήκος 0,5 m. Η χρήση σωλήνα σάντουιτς στο άνοιγμα είναι υποχρεωτική. Επιπλέον, η περιοχή αυτή πρέπει να επενδυθεί με καολίνη ή ορυκτοβάμβακα.
Μια παγίδα συμπυκνώματος πρέπει να τοποθετηθεί εξωτερικά στο κάτω μέρος για να συλλέγει τη συμπυκνωμένη υγρασία. Συνδέεται με το τεμάχιο Τ. Ο υπόλοιπος χώρος σε αυτό το στοιχείο καταλαμβάνεται από ένα σωλήνα σάντουιτς, ο οποίος θα ανεβαίνει και θα οδηγεί έξω τα ίδια τα προϊόντα καύσης. Πρέπει να υπάρχει ένα στήριγμα στο κάτω μέρος που θα συγκρατεί όλη τη δομή μαζί. Εάν ο σωλήνας είναι ψηλός, είναι επιπλέον απαραίτητο να τοποθετήσετε έναν ειδικό σιδερένιο σφιγκτήρα στη μέση του σωλήνα για να στερεώσετε την καπνοδόχο στον τοίχο.
Εάν η εγκατάσταση γίνεται μέσω της οροφής, όλα είναι πολύ πιο εύκολα. Το μόνο που πρέπει να ληφθεί μέριμνα είναι η προστασία και η διευθέτηση των διαδρόμων.
Τα μεταλλικά μέρη του σωλήνα πρέπει να στερεώνονται μεταξύ τους "συμπύκνωση από συμπύκνωση". Η άλλη επιλογή είναι η συναρμολόγηση "καπνός προς καπνό", αλλά αυτή θεωρείται εσφαλμένη. Στην πρώτη παραλλαγή, ο άνω σωλήνας εισάγεται μέσα στον κάτω σωλήνα, ενώ στη δεύτερη γίνεται το αντίστροφο. Έτσι, στην πρώτη περίπτωση, η εγκατάσταση δεν εμποδίζει τη ροή του συμπυκνώματος προς τα κάτω, εμποδίζοντας έτσι την παραμονή του στην κορυφή και την αντίδρασή του με το μέταλλο, και στη δεύτερη περίπτωση, δεν εμποδίζει τη διέλευση του καπνού. Η αιθάλη μπορεί να καθαριστεί, αλλά θα είναι πιο δύσκολο να απαλλαγείτε από τη διάβρωση.
Εάν η καμινάδα είναι κατασκευασμένη από τούβλα, πρέπει να εγκατασταθεί σύμφωνα με τις ειδικές οδηγίες.
- Τοποθετήστε τον αρχικό σωλήνα που θα συνδέσει τη σόμπα με την οροφή. Περίπου στη δεύτερη στρώση, ανοίξτε ένα άνοιγμα για τον αποσβεστήρα αέρα. Η τοιχοποιία πρέπει να είναι ψηφιδωτού τύπου.
- Κοντά στη δίοδο που περνάει από την οροφή, τοποθετήστε ένα ερπυστριοφόρο που είναι ελαφρώς φαρδύτερο από το κάτω μέρος.
- Η ίδια η δίοδος πρέπει να είναι μονωμένη από τη θέρμανση του τούβλου.
- Το υπόλοιπο τμήμα τοποθετείται σε ύψος που έχει υπολογιστεί εκ των προτέρων ανάλογα με τη θέση του σωλήνα και της κορυφογραμμής.
- Για εξωτερική εγκατάσταση, θα πρέπει να χυθεί ένα μικρό θεμέλιο και να στηριχθεί σε αυτό ολόκληρη η καμινάδα.
Συστάσεις
Κατά την εγκατάσταση ενός σωλήνα καυσαερίων σε μια θερμάστρα σάουνας, μπορείτε να χρησιμοποιήσετε τις συμβουλές των ειδικών.
- Για διάφορους λόγους, σπίθες μπορεί να πετάξουν από την καμινάδα (από πάνω). Αυτό δημιουργεί κίνδυνο πυρκαγιάς, ειδικά το ζεστό καλοκαίρι. Ένας απαγωγέας σπινθήρων μπορεί να λύσει αυτό το πρόβλημα. Εγκαθίσταται στην κορυφή της καμινάδας και εμποδίζει τη διαφυγή πιθανών σπινθήρων έξω από την καμινάδα.
- Κατά την εγκατάσταση καπνοδόχου μέσω τοίχου, πρέπει να χρησιμοποιείται αποχέτευση συμπυκνωμάτων. Εγκαθίσταται στο κάτω μέρος ολόκληρης της κατασκευής και χρησιμεύει ως ένα είδος συλλέκτη όλης της παραγόμενης υγρασίας. Χωρίς αυτό, υπάρχει κίνδυνος προβλημάτων διάβρωσης των μετάλλων.
- Εάν η καμινάδα είναι κατασκευασμένη από τούβλα, η φάση της τοιχοποιίας πρέπει να προσεγγιστεί με υπευθυνότητα. Το ίδιο το τούβλο δεν είναι εύφλεκτο, αλλά τα λάθη στην τοιχοποιία μπορεί να οδηγήσουν σε διαρροή καπνού από την καμινάδα και μαζί με αυτόν σε σπινθήρες.
- Καθώς μιλάμε για σάουνα, πολύ συχνά το εσωτερικό της καμινάδας θερμαίνεται σε υψηλή θερμοκρασία. Επομένως, μην χρησιμοποιείτε υλικά χαμηλής ποιότητας κατά την κατασκευή της καμινάδας.
- Μια μεταλλική καμινάδα πρέπει να συναρμολογείται "από τη συμπύκνωση" και όχι "από τον καπνό".
- Κάθε δίοδος μέσα από τον τοίχο, την οροφή ή την οροφή πρέπει όχι μόνο να μονώνεται, αλλά και να επενδύεται με ειδικά υλικά για την προστασία από τη φωτιά.
Η καμινάδα είναι ένα πολύ σημαντικό μέρος ολόκληρης της σάουνας. Η εξοικείωση με την κατασκευή και τη λειτουργία αυτού του στοιχείου δεν θα σας δυσκολέψει να το κατασκευάσετε μόνοι σας. Για να το κάνετε αυτό, πρέπει να αγοράσετε το απαραίτητο υλικό, να κάνετε υπολογισμούς και να συναρμολογήσετε σύμφωνα με τις οδηγίες. Πρέπει να ακολουθήσετε τις βασικές συστάσεις για την εγκατάσταση.
Μάθετε πώς να φτιάξετε μια καμινάδα στη σάουνα παρακάτω.
