Σάουνα στο σπίτι: σχεδιασμός και διάταξη
Η σάουνα είναι ένας αποτελεσματικός και προσιτός τρόπος για την πρόληψη των αναπνευστικών ασθενειών - γεγονός που έχει αποδειχθεί επανειλημμένα. Μια ερευνητική εργασία του Πανεπιστημίου του Μπρίστολ σε συνεργασία με ένα φινλανδικό πανεπιστήμιο αναφέρει τα εξής: αν πηγαίνετε στο χαμάμ 2-3 φορές την εβδομάδα, έχετε 27% λιγότερες πιθανότητες να αναπτύξετε χρόνιες πνευμονικές παθήσεις. Αυτό από μόνο του είναι αρκετό για να σας κάνει να σκεφτείτε το ενδεχόμενο να έχετε σάουνα στο σπίτι. Και δεν υπάρχει έλλειψη επιχειρημάτων σαν κι αυτό.
πλεονεκτήματα και μειονεκτήματα
Ο σχεδιασμός ενός σπιτιού με σάουνα έχει γίνει δημοφιλής για πολλούς λόγους. Πρώτον, δεν απαιτείται ξεχωριστός χώρος, ο οποίος είναι συχνά ο σημαντικότερος λόγος για να πείτε ναι στην κατασκευή μιας σάουνας.
Μπορούν επίσης να σημειωθούν και άλλα οφέλη της οικιακής σάουνας.
- Εάν το συνδυάσετε με το σπίτι σας, το κόστος εγκατάστασης μειώνεται σημαντικά. Ακόμη και αν κατασκευαστεί χωριστά, το κόστος μόνο για τη θερμομόνωση θα ήταν τεράστιο. Ένα αυτόνομο κτίριο με σάουνα είναι ένα διαφορετικό είδος εκτίμησης, αλλά μια σάουνα ενσωματωμένη σε μια μονοκατοικία θα είναι μια συμφωνία.
- Ένα άλλο πλεονέκτημα είναι η πλεονάζουσα θερμότητα που παράγεται κατά τη διάρκεια της διαδικασίας ψησίματος- αυτό βοηθά στη θέρμανση της δομής.
- Η άνετη χρήση είναι προφανής, επειδή μπορείτε να θερμάνετε τη σάουνα χωρίς να βγείτε από το σπίτι.
Σε μια εξοχική κατοικία, η σάουνα γίνεται μια γωνιά τακτικής χρήσης προς τέρψη του νοικοκυριού και των καλεσμένων του.
Ωστόσο, τα πιθανά μειονεκτήματα δεν παραλείπονται.
- Ο κίνδυνος πυρκαγιάς είναι το κύριο μειονέκτημα μιας τέτοιας κατασκευής. Ένα σπίτι με σάουνα στο εσωτερικό του θα εμπίπτει αυτόματα στην κατηγορία αυτών των κατασκευών. Εάν παραβιαστούν οι κανόνες της καύσης της κουζίνας, δεν μπορεί να αποκλειστεί η ξύλινη κατασκευή και το σπίτι στο σύνολό του. Μια ξεχωριστή σάουνα, φυσικά, θα καεί μόνη της χωρίς να καταστρέψει το σπίτι.
- Υπερβολική υγρασία στο δωμάτιο. Εάν το σύστημα εξαερισμού δεν έχει σχεδιαστεί σωστά, η υγρασία θα εξαπλωθεί σε άλλα δωμάτια του σπιτιού και η υγρασία και η σήψη είναι προβλέψιμες.
Αλλά αυτά τα μειονεκτήματα ελαχιστοποιούνται όταν η σάουνα σχεδιάζεται από έναν τεχνίτη. Επειδή οι επαγγελματίες έχουν υπό έλεγχο όλους τους πιθανούς κινδύνους και η κατασκευή πραγματοποιείται σύμφωνα με τα κατάλληλα σχέδια και τους κανόνες ασφαλείας.
Σχεδιασμός του έργου
Πριν από την εκπόνηση ενός έργου, πρέπει να απαντήσετε σε διάφορες ερωτήσεις, καθώς σας καθοδηγούν στις κύριες αποφάσεις του έργου.
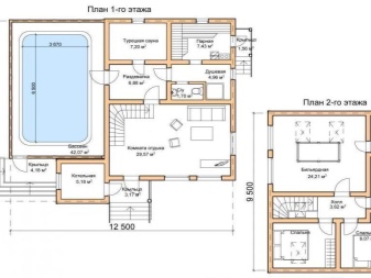
Τοποθεσία της σάουνας
Τα ερωτήματα είναι: πόσο συχνά και για ποιο σκοπό θα χρησιμοποιείται η σάουνα, θα υπάρχει δίπλα της χώρος χαλάρωσης ή γυμναστήριο και θα προσκαλούνται μεγάλες ομάδες φίλων;
Σε αυτή τη βάση μπορούν να σχεδιαστούν διάφορες επιλογές.
- Σάουνα δίπλα σε ένα οικιακό γυμναστήριο, μια περιοχή μασάζ. Είναι ένας τόπος αναψυχής, οπότε είναι σκόπιμο να ολοκληρωθεί το σύστημα της οικιακής ανάκαμψης σε ένα τμήμα της περιοχής του σπιτιού.
- Εάν η σάουνα πρόκειται να γίνει χώρος συνάντησης φίλων, μια θορυβώδης ομάδα ανθρώπων, θα πρέπει να διατεθεί περισσότερος χώρος γι' αυτό. Στην περίπτωση αυτή, η σάουνα βρίσκεται συνήθως στο ισόγειο. Εάν το συγκρότημα πρόκειται να είναι μεγάλο, ένα υπόγειο δωμάτιο, κατά προτίμηση με ξεχωριστή έξοδο προς τον εξωτερικό χώρο, είναι καλύτερο για πάρτι.
- Αν η σάουνα δεν είναι τίποτα περισσότερο από ένα μέρος για να αποφορτιστείτε μετά από μια μέρα στη δουλειάΙδανική για μια σάουνα που χρησιμοποιείται αποκλειστικά από την οικογένεια, θα πρέπει να βρίσκεται δίπλα στο υπνοδωμάτιο.
Αν ο χώρος το επιτρέπει, μπορείτε να εγκαταστήσετε μια μικρή πισίνα ή μια κολυμβήθρα μέσα στο σπίτι σας και ένα βαρέλι ή μια δεξαμενή εμβάπτισης έξω.
Διαστάσεις
Εξαρτώνται από τον τύπο της σάουνας. Εάν πρόκειται για φινλανδική σάουνα, το μικρότερο τυπικό μοντέλο χωράει σε 1-2 τετραγωνικά μέτρα. Ωστόσο, οι ίδιοι οι Φινλανδοί δεν θεωρούν ότι ένα τέτοιο μοντέλο είναι μια ολοκληρωμένη σάουνα. Για να γίνει ένα μικρό, αλλά ακόμα ένα πλήρες μπάνιο, το μήκος των τοίχων του πρέπει να είναι 1,8 μέτρα, η περιοχή - από 2 τετραγωνικά μέτρα. Αλλά σε ιδιωτικές κατοικίες καταφεύγει κανείς στην κατασκευή σάουνας τυποποιημένων διαστάσεων - από 2,5 m επί 2,4 m. Όσο ψηλότερη είναι η οροφή σε μια τέτοια σάουνα, τόσο περισσότερο χρόνο χρειάζεται για να θερμανθεί, τόσο πιο ισχυρή θα πρέπει να είναι η σόμπα.
Το κύριο ράφι μιας συμπαγούς οικιακής σάουνας βρίσκεται συνήθως 1 m πάνω από το ανώτερο επίπεδο της σόμπας σάουνας και το ανώτερο ράφι πρέπει να απέχει 1,1 m από την οροφή. Αυτή η απόσταση σας επιτρέπει να ξαπλώνετε άνετα και να χειρίζεστε το σύρμα.
Εάν πρόκειται για μικρή σάουνα σε διαμέρισμα, το ελάχιστο ύψος είναι 2,1 μέτρα. Το βέλτιστο ύψος για μια σάουνα 4 ατόμων είναι 2,8 μέτρα.
Και όμως Διατίθενται επίσης σάουνες υπέρυθρης ακτινοβολίας, οι οποίες θερμαίνονται με υπέρυθρα θερμαντικά σώματα. Είναι επίσης ιδανικά για διαμερίσματα της πόλης. Οι μικρές υπέρυθρες σάουνες κατασκευάζονται σε σειρά και έχουν ύψος περίπου 195 cm και μέγεθος 100 x 100 cm. Μπορεί να μην χωράνε πολλά ράφια, αλλά προσφέρουν άφθονο χώρο για να καθίσουν και να χαλαρώσουν οι άνθρωποι.
Επιλογή του τύπου κατασκευής
Υπάρχουν τουλάχιστον μερικές καλές λύσεις για όσους το μέγεθος του σπιτιού τους δεν τους επιτρέπει να ονειρεύονται μια ευρύχωρη και άνετη σάουνα για μια όχι αμελητέα εταιρεία.
Δημοφιλείς τύποι σάουνας:
- το οικιακό υπέρυθρο χαμάμ,
- μια συμπαγή μετατρέψιμη σάουνα, αλλά αυτή η κινητή συσκευή κοστίζει όσο ένα διαμέρισμα δύο δωματίων στην επαρχία.
Η σάουνα πλαισίου είναι μια πιο προσιτή επιλογή. Αυτή η κατασκευή έχει πολλά πλεονεκτήματα: το τελικό έργο βοηθά στην επιλογή του σχεδιασμού για συγκεκριμένες διαστάσεις και απαιτήσεις. Οι αποχρώσεις της συναρμολόγησης των στοιχείων και των μονάδων της κατασκευής βοηθούν στη συναρμολόγησή της στον περιορισμένο χώρο για μετακίνηση. Ελκυστικά, υπάρχουν επίσης πολλές πιθανές τοποθεσίες. Για παράδειγμα, μια σάουνα με ξύλινο σκελετό είναι ιδανική αν η σάουνα βρίσκεται στο κελάρι ή στο υπόγειο.
Οποιοδήποτε δωμάτιο είναι κατάλληλο για σάουνα από ξύλο, αρκεί να μπορεί να αερίζεται και να έχει δάπεδο με πλακάκια. Τέλος, η σάουνα πλαισίου είναι επίσης η φθηνότερη επιλογή. Μπορείτε να αγοράσετε ένα προκατασκευασμένο σετ καμπίνας σάουνας ή να παραγγείλετε ένα σχέδιο κατά παραγγελία από μια εταιρεία.
Οι τύποι κατασκευής πλαισίου είναι οι εξής: χωρίς εξωτερική επένδυση, με εξωτερική επένδυση, μικτού τύπου κατασκευή. Εάν δεν υπάρχει διαθέσιμος ξεχωριστός χώρος, μπορεί να αγοραστεί και να εγκατασταθεί μια γωνιακή έκδοση.
Εσωτερική διάταξη
Οι σάουνες παρουσιάζονται συνήθως ως μικρά δωμάτια με επένδυση στους τοίχους, πέτρινο φούρνο και πάγκους κατά μήκος των τοίχων. Αλλά αν υπάρχει η δυνατότητα, η σάουνα γίνεται ένα συγκρότημα με αποδυτήρια, μικρή πισίνα ή/και ντους και εγκαταστάσεις υγιεινής. Μπορεί επίσης να διαθέτει γυμναστήριο, αίθουσα χαλάρωσης ή αίθουσα μπιλιάρδου.
Κατά την εκπόνηση του σχεδίου είναι δυνατόν να αναφέρετε για πόσους ανθρώπους θα σχεδιαστεί η σάουνα. Αλλά ακόμη και τα ατμόλουτρα ενός ατόμου είναι κατασκευασμένα για ένα άτομο, και δεν είναι η χειρότερη επιλογή για μια οικογένεια, εάν το ατμόλουτρο θεωρείται ως χώρος ξεκούρασης και χαλάρωσης.
Η πιο επιτυχημένη, ή για να είμαστε πιο ακριβείς, η πιο δημοφιλής διάταξη είναι όταν η σάουνα έχει διαστάσεις 2 x 1,8 m και η ξαπλώστρα μπορεί να τοποθετηθεί σε οποιονδήποτε τοίχο. Εάν ο χώρος της σάουνας είναι μεγάλος, τότε χρησιμοποιείται διάταξη σχήματος Γ ή σχήματος U. Μην κάνετε το δωμάτιο πολύ μεγάλο, γιατί η σάουνα χρειάζεται πολύ χρόνο για να ζεσταθεί. Είναι επίσης πολύ ακριβή από άποψη ενεργειακού κόστους.
Στάδια κατασκευής
Για να καταλάβετε τι πρέπει να αντιμετωπίσετε αν κατασκευάσετε τη δική σας σάουνα, πρέπει να διαβάσετε το σχέδιο κατασκευής βήμα προς βήμα.
Συναρμολόγηση του πλαισίου
Η τοποθέτηση του κάθετου πλαισίου είναι το σημείο όπου όλα ξεκινούν. Εάν οι διαστάσεις του χώρου το επιτρέπουν, τοποθετήστε πρώτα τα επίπεδα του πλαισίου στο δάπεδο. Στη συνέχεια συνδέονται κάθετα. Οι διαστάσεις καθορίζονται ξεχωριστά, αλλά συνήθως η οροφή δεν υψώνεται πάνω από 2,2 μέτρα. Η κάτω δοκός σύνδεσης δεν τοποθετείται στο δάπεδο, αλλά πάνω από αυτό, και για το σκοπό αυτό χρησιμοποιείται προφίλ αλουμινίου. Η απόσταση μεταξύ των στοιχείων του πλαισίου θα είναι η ίδια με το μέγεθος της θερμομόνωσης (μείον 1 cm).
Στους κύριους τοίχους του δωματίου μπορεί να κατασκευαστεί ένα διπλό πλαίσιο, το οποίο θα δημιουργήσει ένα κενό εξαερισμού για να εξασφαλιστεί η ασφάλεια της κατασκευής. Αυτό μπορεί να γίνει σωστά στερεώνοντας πρώτα ένα ξύλο κάθετα στον τοίχο και προσαρτώντας σε αυτό τη μόνωση μεμβράνης. Κατά τη συναρμολόγηση του πλαισίου, θυμηθείτε την ηλεκτρική εγκατάσταση και τη σήμανση των ανοιγμάτων εξαερισμού.
Μόνωση κατά του ατμού και του νερού
Αυτό το βήμα έρχεται δεύτερο στις οδηγίες βήμα προς βήμα. Η κύρια απαίτηση για τη μόνωση είναι να είναι άκαμπτη, π.χ. μαλλί βασάλτη. Ένα ομοιόμορφο (είναι πολύ σημαντικό) στρώμα μόνωσης τοποθετείται μεταξύ των πάνελ. Στη συνέχεια καλύπτεται με ειδικό φύλλο αλουμινίου ή αλουμινόχαρτο. Η οροφή πρέπει να είναι μονωμένη, αλλά πρέπει να αποφεύγονται τα ύποπτα φτηνά υλικά, καθώς μπορούν να απελευθερώσουν τοξικά στοιχεία όταν θερμανθούν.
Θερμομόνωση τοποθετείται επίσης στην οροφή. Ανάλογα με το πάχος και τα χαρακτηριστικά του, επιλέγεται ο κατάλληλος αριθμός στρώσεων. Συνήθως χρησιμοποιούνται τουλάχιστον δύο στρώματα. Το φράγμα υδρατμών πρέπει να τοποθετείται ιδιαίτερα προσεκτικά στις γωνίες. Εάν η επένδυση του τοίχου ανεβαίνει προς τα πάνω, προστίθεται απόθεμα μόνωσης 10-15 cm. Το πλαίσιο της πόρτας και τα γωνιακά στοιχεία είναι επενδεδυμένα με σανίδες και επιστύλια.
Το μονωτικό υλικό στερεώνεται στην ξυλεία με πηχάκια, τα οποία παρέχουν ένα κενό αέρα μεταξύ των πηχιών και του φύλλου. Στην οροφή, η θερμομόνωση είναι εφοδιασμένη με τη συνήθη μεταλλική ταινία, η οποία χρησιμοποιείται για την τοποθέτηση της τσόχας στέγης. Οι αρμοί σφραγίζονται με ειδική ταινία για τη συγκόλληση μονωτικών φύλλων.
Εσωτερικό και εξωτερικό φινίρισμα
Οι τοίχοι και η οροφή είναι επενδυμένοι με πηχάκια. Το μέγεθος της γλώσσας είναι 1 cm, αυτό εξαλείφει τη φυσική συρρίκνωση που συμβαίνει κατά τη λειτουργία της σάουνας. Η οροφή είναι επενδεδυμένη είτε με πηχάκια είτε με πλανισμένες σανίδες. Το πάχος της πλανισμένης σανίδας είναι 20 mm. Οι σανίδες πρέπει να τοποθετούνται με ιδιαίτερη προσοχή κατά την επένδυση. Στερεώστε τις σανίδες μόνο οριζόντια, κάθε δοκός πρέπει να στηρίζεται με τουλάχιστον δύο συνδετήρες.
Δεν επιτρέπεται η βαφή ή το βερνίκωμα των επενδύσεων, καθώς η επίδραση της υψηλής θερμοκρασίας καθιστά αυτό το φινίρισμα μη ασφαλές. Όταν ολοκληρωθούν οι εργασίες, τοποθετούνται τα σοβατεπί στις γωνίες και τοποθετούνται τα πέλματα στην πόρτα.
Εγκατάσταση εξοπλισμού θέρμανσης
Τα ηλεκτρικά θερμαντικά σώματα είναι σήμερα πολύ συμπαγή και είναι σημαντικό να επιλέξετε σωστά την ισχύ αυτής της συσκευής θέρμανσης. Απαιτείται 1 kW ανά τετραγωνικό μέτρο επιφάνειας δαπέδου, οπότε είναι εύκολο να υπολογιστούν οι πραγματικές ανάγκες. Εάν η θερμάστρα είναι λιγότερο ισχυρή από ό,τι απαιτεί το μέγεθος της αίθουσας σάουνας, θα χρειαστεί πολύς χρόνος για να θερμάνει την αίθουσα σάουνας.
Υπάρχουν επίσης επιλογές για τη θέρμανση της σάουνας σας με αέριο, αλλά υπάρχουν μειονεκτήματα και μειονεκτήματα - δεν είναι ιδιαίτερα δημοφιλής επιλογή σήμερα. Με την αγορά ενός ηλεκτρικού θερμαντήρα σάουνας, όλα γίνονται ευκολότερα και ασφαλέστερα, ενώ είναι εύκολη η εγκατάστασή του σε μια σάουνα (ακόμη και σε χωνευτή). Το δύσκολο κομμάτι είναι να κάνετε τους σωστούς υπολογισμούς.
Εσωτερικά εξαρτήματα
Οι πάγκοι σάουνας πρέπει να είναι ανθεκτικοί και σχεδιασμένοι ώστε να ταιριάζουν με το συνολικό σχεδιασμό του χώρου. Μπορεί, για παράδειγμα, να είναι αρθρωτό, και παρόλο που αυτό μπορεί να φαίνεται αναξιόπιστο σε πολλούς ανθρώπους, απλοί υπολογισμοί θα σας πείσουν γι' αυτό. Ιδανικά ξύλα είναι η φλαμουριά, ο κέδρος και η λεύκη. Το αποξηραμένο πεύκο αποτελεί επίσης εξαιρετική επιλογή.
Τα φώτα σάουνας μπορεί να είναι ιδιαίτερα ανθεκτικά στη θερμότητα. Στο εσωτερικό της σάουνας τα ξύλινα ανοιγμένα αμπαζούρ φαίνονται υπέροχα, κάνουν το χώρο της σάουνας πιο άνετο και κομψό. Η σάουνα είναι επίσης μια εξαιρετική επιλογή για το εσωτερικό της σάουνας, με ανοιχτά ξύλινα αμπαζούρ που κάνουν τον χώρο να αισθάνεται άνετος και κομψός.
Με μεγάλο ενδιαφέρον επιλέγονται επίσης οι κατά παραγγελία κουτάλες, κουτάλες, κουτάλες (όλες από την ίδια συλλογή), προσκέφαλα και πάγκοι. Τα χρώματα και το γενικό ύφος πρέπει να είναι σε αρμονία μεταξύ τους.
Όμορφα παραδείγματα
Μερικά εμπνευσμένα φωτογραφικά παραδείγματα για να ολοκληρώσουμε την ημέρα.
- Μια μικρή, ζεστή σάουνα με έναν ενδιαφέροντα σχεδιασμένο χώρο κοντά στη σόμπα. Η διακόσμηση αποσπά το βλέμμα σας από το μικρό μέγεθος της σάουνας.
- Ένας πολύ μοντέρνος, οπτικά ευχάριστος σχεδιασμός με ελκυστική διάταξη των στοιχείων της καμπίνας.
- Ένα παράδειγμα για το πώς θα μπορούσε να μοιάζει ένα συγκρότημα σάουνας στο κελάρι. Μια έξυπνη διευθέτηση των περιοχών.
- Με τον κατάλληλο φωτισμό και έναν βελτιωμένο σχεδιασμό, μια μικρή σάουνα θα φαίνεται πολυτελής.
- Και αυτό το παράδειγμα μιας ρουστίκ σάουνας θα μπορούσε να αποτελέσει πηγή έμπνευσης για κάποιους - φαίνεται βίαιο.
- Ένα κομψό χαμάμ με μια πολυτελή εγκατάσταση στον τοίχο, και καθόλου μικρό, σχεδιασμένο για μεγάλες παρέες.
- Ο σχεδιασμός μιας σάουνας σε ένα σπίτι μπορεί επίσης να είναι τέτοιος - ένας απροσδόκητος συνδυασμός για κάποιους, αλλά πολύ ενδιαφέρων.
- Ο τρόπος με τον οποίο φαίνεται μια στενή σάουνα: Όλα είναι συμπαγή και ξεκάθαρα, και ο σχεδιασμός σε αντίθεση κάνει τη διαφορά.
- Έτσι μπορεί να μοιάζει μια μικρή φινλανδική σάουνα μέσα σε ένα συγκρότημα χαλάρωσης και ευεξίας μέσα στο σπίτι.
- Μια γωνιακή κατασκευή μέσα σε ένα ευρύχωρο δωμάτιο, και δίπλα σε αυτό - μια γραμματοσειρά και, ενδεχομένως, μια πισίνα, ένα γυμναστήριο κ.λπ.
Συνολικά, απολαύστε τη σάουνα σας!
Δείτε το παρακάτω βίντεο για το πώς να φτιάξετε μια σάουνα στο σπίτι.
