Alles über 6x4 Blockhütten
Der traditionelle Blockhausbau wird auch angesichts neuerer Materialien nicht aufgeben. Es ist also wichtig, alles über Blockhäuser in der Größe von 6 x 4 m zu wissen. Sie können eine solche Website auf fast jeder Website erstellen - vorausgesetzt, Sie wählen Ihr Design sorgfältig aus und beachten alle anderen Regeln.
Eigenschaften
Durch die Verwendung von Naturholz besteht kein Zweifel, dass das Gebäude ökologisch sauber und hygienisch ist. Darüber hinaus ist das Material bequem und sicher in der Anwendung.
Es ist eine jahrhunderterprobte Lösung, die Konstruktionsfehler nahezu ausschließt. Mit einer Größe von 6x4 m bietet es ein optimales Gleichgewicht zwischen Kompaktheit und Fülle des Innenraums.
Ebenfalls erwähnenswert:
-
die Fülle an vorgefertigten Entwürfen;
-
die Möglichkeit, sie nach Ihren Wünschen zu ändern;
-
vergleichsweise billig;
-
die Möglichkeit, alle üblicherweise benötigten Räume zu vergeben.
Materialien
Blockhütten sind beliebt. Diese Lösung ermöglicht es, im Gegensatz zu kegelförmigen Exemplaren, ohne großen Aufwand eine flachere und glattere Wand herzustellen. Die empfohlenen Arten sind Fichte und Kiefer. Aber nicht von der Winterernte! Im Gegensatz zu Birkenholz ist dieses Holz in der kalten Jahreszeit stark mit Feuchtigkeit gesättigt.
Natürlich ist es am besten, im Winter zu bauen. Dies beugt Pilzbefall vor, der den Bauherren viele Probleme bereiten kann. Ein weiterer wichtiger Punkt, der bei der Auswahl von Rundholz zu beachten ist, ist der Typ des Blockhauses. Die älteren Holzhütten wurden meist in eine Schale aus Holz gehackt. Eine solche Lösung ist kälteresistent und hält auch starken Winden perfekt stand.
In letzter Zeit ist die Beliebtheit der Schale jedoch zurückgegangen. Der Grund dafür ist, dass eine solche Verbindung unverhältnismäßig viel Platz in Anspruch nimmt.
Seine Abwandlung, die "abgeschrägte Schale", wird nur selten von Hand hergestellt. Die Schwierigkeiten werden jedoch durch die noch engere Verbindung zwischen den bearbeiteten Teilen ausgeglichen. Aber die schwierigste Variante - das Schneiden "in einem Fuß"; es wird nur verwendet, weil es die Möglichkeit gibt, eine maximale Nutzfläche des Stammes zu speichern.
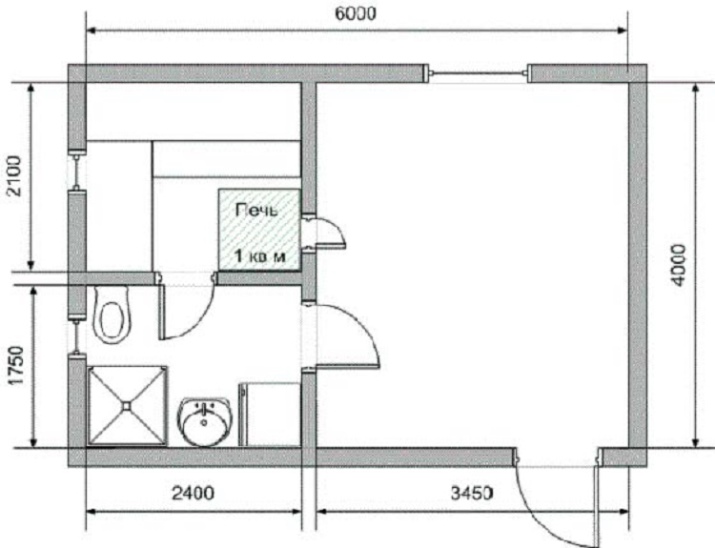
Projekte
Für die Planung eines 6x4-Blockbades muss man mehr als eine Stunde einplanen. Es ist nicht nachhaltig, sich auf beengte und unscheinbare Gebäude zu beschränken, wie sie aus dem vorletzten Jahrhundert stammen. Das Foto zeigt eine Variante des Grundrisses, einschließlich:
-
Dampfbad;
-
Dusche und Waschraum;
-
Vorraum;
-
Ein separater Entspannungsbereich, der komfortabel eingerichtet werden kann.
Noch mehr Perspektiven bietet die 4 x 6 große Sauna mit Dachboden. Je nach persönlichem Geschmack und Möglichkeiten steht das Obergeschoss als Ruheraum zur Verfügung, z.B. für die Nutzung als Schwimmbad oder zur Aufbewahrung von Dingen. Auf dem Lande ist es sogar möglich, ein fast vollwertiges Wohnzimmer zu schaffen. Es ist nur geringfügig weniger funktional als ein "privates Zimmer" in einem traditionellen Haus. Und ein "einfacher Aufenthaltsraum" ist auch nicht wirklich so einfach.
Hier können ein Sofa, ein paar Sessel, ein Tisch, ein Schrank und ein Fernseher auf einem Regal stehen. Manche Leute stellen ein Gestell mit dekorativen Pflanzen in eine der Ecken des Raumes. Aber manchmal ist es auch mehr als das.
Im Winter ist ein Innenraum gut, aber bei warmem Wetter ist es besser, nicht in einem 6 x 4 großen Badehaus zu sitzen, so angenehm es auch sein mag, sondern eine Veranda oder Terrasse zu nutzen. Der gesamte Bau kann in einer einzigen Saison abgeschlossen werden.
Eine offene Terrasse mit einer Fläche von 6 bis 8 m2 ist die häufigste. Der Boden besteht aus antiseptisch imprägnierten Platten. Spezielle Sägemehlplatten für Terrassen sind jetzt erhältlich. Sie sind preiswerter als herkömmliches Holz und in der Praxis genauso gut wie dieses. Tipp: Wenn der Platz nicht ausreicht, können Sie das Vorbad mit dem Ruheraum kombinieren.
Konstruktionsschritte
Eine vernünftige Grundlage ist ein logischer erster Schritt. Es ist besser, in dieser Phase etwas mehr Geld und Mühe zu investieren, als später mit Problemen zu kämpfen. Auf instabilem Untergrund wird die Verlegung von Platten empfohlen. In den meisten Fällen wird eine Betonplatte jedoch einfach gegossen. Wenn die Fundamente fertig sind, müssen die Stämme selbst vorbereitet werden (oder komplett fertig bestellt werden).
Wichtig: zuerst das Blockhaus formen (zukünftige Verbindungen) und erst dann die Stämme von Rinde und Ästen befreien. Wenn das fertig ist, machen Sie die Hülle.
Die folgenden Kränze sind einfacher zu legen, man muss nur die bewährte Technik beachten. Nach dem Aufstellen des Rahmens werden die nächsten Schritte durchgeführt:
-
die Installation des Wasser- und Abwassersystems;
-
Verlegung elektrischer Leitungen;
-
die Bildung des Daches;
-
Installation von Herden und zugehörigen Geräten;
-
Einbau von Türen und Fenstern;
-
Fertigstellung innen und, falls gewünscht, außen.
Schöne Beispiele
So sieht eine der 6x4 m großen Blockhütten aus. Die betonte Grobheit des Blockhauses dient in diesem Fall nur dem Nutzen - das Erscheinungsbild wird ausdrucksstärker. Dieser Eindruck wird durch das blaue Giebeldach, das einen starken Kontrast bildet, noch verstärkt.
Es können auch leichtere Holzscheite verwendet werden. Das Ergebnis (in Kombination mit einem rötlichen Dach) ist auf dem Foto zu sehen.
Einen Überblick über ein 6x4-Blockhaus finden Sie unten.
