Tout sur les bains angulaires
Lorsque les fermes collectives ont été formées, puis transformées en fermes d'État, les bains privés ont commencé à disparaître, même dans les villages et les hameaux - des installations publiques sont apparues dans les campagnes. Puis, l'exode massif des paysans du village vers la ville, plus proche des bienfaits de la civilisation, et le rôle des bains sont finalement passés au second plan. Les gens avaient l'habitude d'apprécier l'eau chaude du robinet et d'avoir leur propre baignoire.
Aujourd'hui, les choses changent et les gens se tournent à nouveau vers la terre. Il est désormais aussi prestigieux de posséder une maison de campagne que d'avoir un appartement décent. Une maison sur le terrain n'est pas considérée comme une maison si elle n'a pas de bain. C'est le saint des saints de l'homme russe. Autrefois, même le plus méchant des propriétaires avait un banya, même s'il s'était enfoncé dans le sol jusqu'au toit.
Le bain public - est la santé, la beauté, la jeunesse et la force. La chaleur ouvre les pores et le balai élimine les épidermes morts. Dans le hammam, votre corps transpire abondamment et élimine les toxines. Les liquides de bain aromatiques ont un effet positif sur le corps en combinaison avec tous ces traitements. La douche de contraste agit comme un booster d'énergie sur un corps chauffé.
Après un bon sauna, on se sent renaître et se renouveler.
En règle générale, l'emplacement principal ou le meilleur emplacement d'un terrain est réservé à la construction d'une maison. En fonction de la taille du terrain, l'emplacement du sauna est déterminé après la construction de la maison.. Parfois, la taille du terrain rend nécessaire l'utilisation d'un coin inutilisé à cette fin.
Avantages et inconvénients
Un trait distinctif des bains d'angle est leur forme non standard. Le complexe de bain est situé à un angle de 90 degrés par rapport à l'espace de relaxation. Il s'agit également d'un bain en plein air qui présente d'autres caractéristiques distinctives.
- Il est situé au centre du bâtiment et chauffe toutes les pièces adjacentes.Cela permet de chauffer toutes les pièces voisines. Sa position centrale réduit les pertes de chaleur, de sorte qu'il reste beaucoup plus chaud que d'habitude, même pendant les hivers rigoureux.
- position angulaire économise de l'espace sur le site, ne perturbe pas la conception du paysage, ennoblit le coin de l'espace. Cette conception de structure est utilisée avec succès dans les zones où il y a des problèmes avec la topographie, ou le propriétaire veut sauver les arbres.
- Il faut parfois contourner les services publics : des centrales de chauffage, d'eau et d'électricité traversant le site.
- L'apparence d'un tel bâtiment toujours une surprise et une admiration, parce qu'il est élégant et inhabituel.
- La possibilité de deux sorties facilite le nettoyage, le chauffage et les autres besoins domestiques et ménagers.
- Un tel bâtiment peut devenir au fil du temps lieu de loisirs central pour toute la famille, que le sauna soit chauffé ou non. Un emplacement d'angle implique un grand espace intérieur, ce qui vous permet de faire du sauna un complexe multifonctionnel, en le transformant en maison d'hôtes.
Malgré leurs avantages évidents, les solutions d'angle ne sont pas sans inconvénients.
- Contrairement aux solutions de bain traditionnelles, la version d'angle coûte 15 à 20 % plus cher car elle nécessite plus de matériaux pour être construite.
- Difficultés de conception et de construction. Le concepteur doit relier les deux espaces de manière organique, et les constructeurs doivent non seulement donner vie au projet, mais aussi le faire bien. Le toit est particulièrement difficile à travailler.
- Un grand nombre de portes et de fenêtres risque de provoquer d'importantes pertes de chaleur, ce qui implique des coûts pour des fenêtres et des systèmes de portes à double vitrage de haute qualité ou des vestibules supplémentaires.
- L'emplacement central de la cuisinière a déjà été noté comme un avantage important. Toutefois, il faut dire que c'est aussi un inconvénient de taille. Dans ce cas, la cuisinière ne doit pas seulement bien chauffer, elle doit aussi donner un haut degré d'efficacité, sinon le bâtiment ne pourra pas être chauffé complètement et certaines parties resteront froides. Afin d'exploiter le potentiel prévu, un long tunnel de chauffage est nécessaire et tous les constructeurs de poêles ne peuvent pas le fabriquer - il est assez difficile de trouver un véritable artisan de nos jours. Vous aurez besoin de beaucoup de bonnes briques réfractaires. Des variantes métalliques sous forme soudée et moulée sont également disponibles, mais leurs prix sont également "mordants".
Projets
La construction de baignoires d'angle ou triangulaires se justifie à bien des égards et fait l'objet d'une demande sans cesse croissante. Les parcelles de terrain pour la construction de logements sont petites. Cela est dû à la rareté des terrains à proximité des villes et à leur coût élevé. Aujourd'hui, les gens rêvent d'avoir une propriété à la campagne, tout comme à l'époque de la construction massive des "maisons Khrouchtchev", où chacun voulait se débarrasser de son terrain et emménager dans un appartement bien équipé.
Sur une petite parcelle, il faut économiser chaque mètre pour en faire un bien immobilier, avec tous les bâtiments nécessaires. L'aménagement d'un sauna d'angle est une telle solution. Mais, En plus d'économiser de l'argent, c'est aussi une astuce de design inhabituelle. En plaçant le complexe de bain dans un coin, vous pouvez le rendre plus spacieux en y ajoutant une terrasse, une véranda ou une pergola.
Un sauna d'angle peut être grand ou très petit. Mais même la plus compacte peut accueillir un petit groupe et fournir chaleur, vapeur et santé. La complexité de la conception peut être simplifiée en utilisant l'internet. Les sites web spécialisés proposent de nombreux schémas prêts à l'emploi avec des résultats finaux, où vous pouvez voir ce qu'un projet particulier a donné.
Particulièrement populaires sont des variantes, combinant plusieurs zones sous un même toit. Le complexe balnéaire comprend un hammam, une salle de lavage, une salle de douche et une salle de bain. Elle est reliée d'un côté à une zone de loisirs avec véranda ou piscine et de l'autre côté à un barbecue avec terrasse.
Petit bain peut être de plain-pied ou avec un grenier, où se trouve la partie réservée aux invités avec une chambre. Le plan prévoit la construction d'un structure à deux étages. Parfois, le complexe comprend une piscine, une fontaine ou un tonneau japonais d'Ofuro. Les possibilités sont infinies, ce n'est qu'une question de budget et d'imagination.
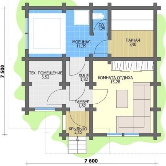
Pour une petite famille, il est conseillé d'avoir un sauna d'angle d'une taille minimale de 6x6 mètres. Une taille plus petite réduira les dimensions linéaires, ce qui aura un impact négatif sur l'espace intérieur, ou plus précisément, sur la quantité d'espace utilisable. Une structure de 6x6 mètres offre 28 m2 d'espace libre qui peut accueillir confortablement une famille de quatre personnes.
Avec une telle taille, vous devez tenir compte de l'utilité des cloisons intérieures. Leur disposition doit être soigneusement étudiée afin de ne pas occuper l'espace libre. La conception optimale nécessite les surfaces suivantes :
- le salon occupera 16 m2 ;
- le hammam occupera 4 m2 ;
- l'évier occupera également 4 m2 ;
- l'antichambre occupera la même surface que l'évier et le hammam, soit 4 m2.
La zone supérieure sous le toit peut être utilisée comme zone de stockage pour le sauna et les fournitures utilitaires. C'est un bon endroit pour faire sécher les balais que vous avez préparés.
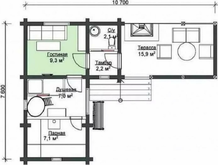
Mesurant 10,7 x 7,6 mètres, il peut déjà accueillir une petite piscine ou des fonts baptismaux sous le toit. Cette structure peut accueillir un grand groupe, car la surface est de 44 m2. Cela permettra de distribuer l'espace intérieur avec plus de confort et de liberté :
- le hammam peut occuper 7 m2 ;
- la salle d'eau peut accueillir de grands fonts baptismaux ou une petite piscine - 7 m2 ;
- 2,1 m2 pour la salle de bains et 2,2 m2 pour la zone auxiliaire.
- l'espace disponible pour la salle de détente totalise un peu plus de 9,5 m2.
Option avec piscine
Si la famille a un budget, vous pouvez une piscine peut être prévue, ce qui en fait plus qu'un simple complexe de baignade - vous pouvez vous baigner à tout moment s'il n'y a pas de plan d'eau sur le terrain ou à proximité. Avec une taille de 7,5 x 7,5 m, c'est déjà un projet réalisable. Dans cette version du sauna, il y a une salle de vapeur avec une sortie menant à la salle de lavage. Dans la salle d'eau, il y a une salle de bain, une cabine de douche et une petite piscine de la taille du hammam.
La sortie de la salle de bains mène au reste des pièces, qui sont équipées d'une salle de loisirs spacieuse, d'un couloir, d'un local technique, d'un vestibule et d'une sortie vers le porche. Dans ce projet, il n'y a qu'une seule sortie sur la rue, mais toutes les chambres sont suffisamment spacieuses pour un séjour confortable. Il y a de la place pour une petite cuisine dans la salle d'entretien - il est beaucoup plus agréable de cuisiner sous le toit quand il fait froid.
Maison d'angle avec une terrasse de 13,9x11,5 mètres
Une propriété vraiment de haut niveau, où une partie du bâtiment dispose d'une terrasse reliée à la piscine et comprenant un espace barbecue et un espace de vie ouvert combiné à la cuisine. Les shashlik et autres délices sont cuits sous le toit, de sorte que le mauvais temps ne peut pas vous empêcher de profiter de votre repas. En fait, il s'agit d'une maison d'hôtes à part entière avec un sauna et une piscine. Des chaises ou des chaises longues sont disponibles sur la terrasse.
Un sauna avec une pergola et un loft
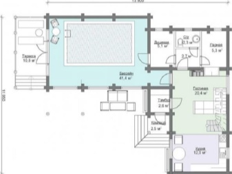
Large Projet de 129 m2 n'est qu'un sauna. À l'intérieur, il y a une piscine spacieuse de 40 m2. Il vous permet non seulement de vous baigner après le bain, mais aussi de nager librement. Le bâtiment a deux sorties : une sortie sur la terrasse, l'autre sur le complexe de sauna avec le hammam, la salle de douche, la salle de bain séparée, le salon, la cuisine et le grenier. L'aile de la piscine est jouxtée par une pergola accueillante.
Dans le grenier, il y a une pièce qui pourrait être utilisée comme une chambre ou une salle de billard.
Un sauna à deux étages
Ce projet peut être considéré comme une maison individuelle. Il y a une pièce séparée pour la chaufferie, et l'ensemble du bâtiment rappelle les robustes maisons de marchands que P. I. Melnikov a décrites avec tant d'amour dans son roman "Dans les bois". Le rez-de-chaussée abrite toutes les pièces principales : le hammam, la salle de douche, la salle de bain, la cuisine, le salon et la chaufferie. Au premier étage salle de bain, salon, chambre à coucher et accès au balcon.
Matériaux
Le matériau de construction idéal pour un sauna est bois massif, bois profilé ou bois lamellé-collé. La vitesse de construction d'un bâtiment avec ces matériaux est élevée, ce qui permet de commencer à utiliser la pièce peu de temps après le début de la construction.
Bûches cylindriques est beaucoup plus durable que les rondins conventionnels. Cela peut s'expliquer par la façon dont il est travaillé : Après l'écorçage, l'aubier - la partie humide du tronc située sous l'écorce - est retiré du tronc. Le cœur dur de l'arbre reste, il est imprégné de résines ou de tanins, presque dépourvu d'humidité et dure beaucoup plus longtemps qu'une bûche ordinaire. Le bois présente une encoche sur un côté de la grume qui est parfaitement alignée avec la partie convexe de l'autre côté. En outre, un tel bâtiment a un très bel aspect et ne nécessite pas de finition extérieure et intérieure.
poutres profilées rend la construction si facile qu'il faut parfois un à deux jours pour assembler une petite structure. Ce type de bois a une surface profilée qui relie le matériau dans un verrou. Il n'est pas nécessaire de passer du temps à réparer les joints. La pression sur les murs finira par serrer les bois ensemble pour former un monolithe. La finition de tous les côtés ne nécessite pas de revêtement mural, ne serait-ce qu'à des fins décoratives.
Les cabanes en bois rond en bois lamellé-collé sont de plus en plus populaires. Les cabanes en rondins gagnent en popularité. Ce matériau se distingue par sa grande résistance à l'exposition agressive à l'atmosphère. Son coût est assez démocratique, les murs ne nécessitent pas d'isolation supplémentaire. La construction en blocs de bois massif collé n'est pas sujette au rétrécissement, vous pouvez donc utiliser le sauna immédiatement après sa construction.
Un sauna à cadre est la solution la plus économique. La construction de ce type est beaucoup moins chère que celle d'un rondin ou d'une barre. Les spécialistes conseillent d'utiliser des matériaux ayant subi un séchage en chambre dans la construction d'un sauna à cadre - cela minimise les effets du rétrécissement, qui peut affecter l'intégrité des parois. La construction nécessitera un traitement antiseptique approfondi et une bonne isolation. De plus, une structure à ossature en bois est très résistante au feu.
Des briques et des blocs de mousse sont également utilisés dans la construction, mais le sauna classique est, bien entendu, une structure en bois.
De beaux exemples
- Un joli petit bain angulaire fait de rondins.
- Un sauna avec une terrasse et une pergola.
- Un coin sauna avec une terrasse fermée et un barbecue.
- Une autre variante d'un espace fermé.
- Un bâtiment splendide - un sauna d'angle à deux étages.
Dans la vidéo suivante, vous découvrirez quel est le meilleur matériau pour construire une maison de bain.
